Titel Logo
Amtskurier des Amtes Treptower Tollensewinkel
Ausgabe 5/2023
Amtliche Bekanntmachungen
Zurück zur vorigen Seite
Zurück zur ersten Seite der aktuellen Ausgabe

-Amtliche Bekanntmachung- Betr.: →  vorhabenbezogener Bebauungsplan Nr. 7 „Südliche Ergänzung der Wohnbebauung in Schmiedenfelde“

Amtliche Bekanntmachung

Betr.: vorhabenbezogener Bebauungsplan Nr. 7 „Südliche Ergänzung der Wohnbebauung in Schmiedenfelde“

hier:

Bekanntmachung des Aufstellungsbeschlusses gemäß § 2 Abs. 1 BauGB sowie der frühzeitigen Öffentlichkeitsbeteiligung gemäß § 3 Abs. 1 BauGB

Die Gemeindevertretung der Gemeinde Wolde hat in der Sitzung am 29.03.2023 die Aufstellung des vorhabenbezogenen Bebauungsplans Nr. 7 „Südliche Ergänzung der Wohnbebauung in Schmiedenfelde“ beschlossen. Der Aufstellungsbeschluss wird hiermit gemäß § 2 Abs. 1 BauGB ortsüblich bekannt gemacht.

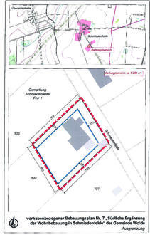
Der räumliche Geltungsbereich des vorhabenbezogenen Bebauungsplans beläuft sich auf eine Fläche von insgesamt 1.284 m² und ist dem als Anlage 1 beigefügten flurstücksbezogenen Lageplan zu entnehmen. Er erstreckt sich auf eine Teilfläche des Flurstücks 102 in der Flur 1 der Gemarkung Schmiedenfelde.

Die gemäß § 3 Abs. 1 BauGB frühzeitige Unterrichtung der Öffentlichkeit soll in Form einer öffentlichen Auslegung durchgeführt werden. Dazu liegt der Vorentwurf des vorhabenbezogenen Bebauungsplans Nr. 7 „Südliche Ergänzung der Wohnbebauung in Schmiedenfelde“ mit Stand März 2023 mit der Begründung in der Zeit vom

15.05.2023 - 19.06.2023

im Amt Treptower Tollensewinkel, Bauamt, Rathausstraße 1, 17087 Altentreptow während folgender Zeiten öffentlich aus:

montags

von 9:00 - 16:00 Uhr

dienstags

von 9:00 - 18:00 Uhr

mittwochs

von 9:00 - 16:00 Uhr

donnerstags

von 9:00 - 16:00 Uhr

freitags

von 9.00 - 12:00 Uhr

(außerhalb dieser Zeiten nach Vereinbarung)

Zusätzlich können die Planunterlagen des Vorentwurfes auf der Homepage des Amtes Treptower Tollensewinkel https://www.altentreptow.de/Amt-Gemeinden/Gemeinden-von-H-Z/Wolde/Bekanntmachungen-br-Ortsrecht/ eingesehen werden.

Während des Auslegungszeitraumes können von jedermann Stellungnahmen zum vorhabenbezogenen Bebauungsplan Nr. 7 „Südliche Ergänzung der Wohnbebauung in Schmiedenfelde“ vorgebracht werden. Diese werden in die weitere Planung einfließen. Es wird darauf hingewiesen, dass nicht innerhalb der Auslegungsfrist abgegebene Stellungnahmen bei der Beschlussfassung über den vorhabenbezogenen Bebauungsplan unberücksichtigt bleiben können.

Mit Ihrer Stellungnahme beteiligen Sie sich am Verfahren zur Aufstellung eines Bauleitplans. Soweit es für die Bearbeitung Ihrer Stellungnahme erforderlich ist, verarbeiten wir Ihre personenbezogenen Daten. Dazu sind wir nach den §§ 4 Abs. 1, 19 DSG M-V i. V. m. Art. 6 Abs. 1 lit. b, c, e und 57 DSGVO befugt. Ihre personenbezogenen Daten, die Sie uns zur Bearbeitung Ihrer Stellungnahme zur Verfügung stellen oder von denen wir bei der Bearbeitung Kenntnis erlangen, werden zu keinem anderen Zweck als der Bearbeitung Ihrer Stellungnahme verwendet. Ihre personenbezogenen Daten werden Bestandteil der Originalakte der Satzung. Für die Behandlung der Beschlussvorlage (Abwägungsbeschluss) im öffentlichen Teil der Sitzung der Gemeinde werden Ihre personengebundenen Daten anonymisiert.

Wolde, 04.04.2023