Titel Logo
Barther Boddenblick
Ausgabe 11/2023
Amtlicher Teil
Zurück zur vorigen Seite
Zurück zur ersten Seite der aktuellen Ausgabe

Amtliche Bekanntmachung der Stadt Barth

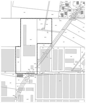
Lageplan (Abbildungsgrundlage: © OpenStreetMap contributors, o. M.)

Grenze des räumlichen Geltungsbereiches der 1. Änderung und Ergänzung des Bebauungsplanes Nr. 34 der Stadt Barth (o. M.)

Auszug aus der Planzeichnung zum Bebauungsplan Nr. 34 „Eingeschränktes Gewerbegebiet an der Nelkenstraße“

Auszug aus dem Liegenschaftskataster der Stadt Barth i.V.m. dem Bebauungsplan Nr. 34 sowie der 1. Änderung und Ergänzung

Bebauungsplan Nr. 34 „Eingeschränktes Gewerbegebiet an der Nelkenstraße“

1. Änderung und Ergänzung

Bekanntmachung des Aufstellungsbeschlusses gemäß § 2 Abs. 1 Satz 2 BauGB sowie Bekanntmachung der öffentlichen Auslegung des Entwurfes gemäß § 3 Abs. 2 BauGB

Die Stadtvertretung der Stadt Barth hat am 09.03.2023 den Aufstellungsbeschluss für die 1. Änderung und Ergänzung des Bebauungsplanes Nr. 34 „Eingeschränktes Gewerbegebiet an der Nelkenstraße“ beschlossen. Die 1. Änderung und Ergänzung des Bebauungsplanes Nr. 34 wird im beschleunigten Verfahren nach § 13a BauGB aufgestellt. Der Aufstellungsbeschluss wird hiermit gemäß § 2 Abs. 1 Satz 2 Baugesetzbuch (BauGB) ortsüblich bekannt gemacht. Von der frühzeitigen Unterrichtung und Erörterung nach § 3 Abs. 1 und § 4 Abs. 1 BauGB wird nach § 13 Abs. 2 Nr. 1 BauGB i.V.m. § 13a Abs. 2 Nr. 1 BauGB abgesehen. Im beschleunigten Verfahren wird von der Umweltprüfung nach § 2 Abs. 4 BauGB, von dem Umweltbericht nach § 2a BauGB sowie von der zusammenfassenden Erklärung nach § 10a Abs. 1 BauGB abgesehen. Eine Überwachung erheblicher Umweltauswirkungen gemäß § 4c BauGB ist ebenfalls nicht anzuwenden.

Das Plangebiet der 1. Änderung und Ergänzung des Bebauungsplanes Nr. 34 liegt im südwestlichen Siedlungsbereich der Stadt Barth, im nördlichen Bereich der ehemaligen Großgärtnerei, nördlich der Nelkenstraße.

Das Plangebiet umfasst eine Fläche von rd. 2,7 haaufund wird wie folgt begrenzt:

nördlich:

durch offene Vegetationsflächen mit vereinzelten Baum- und Strauchstrukturen in unterschiedlichen Wachstumsstadien

östlich:

durch gewerbliche Hallenkomplexe sowie ungenutzte Frei- bzw. Wiesenflächen

südlich:

durch die Nelkenstraße und einem daran angrenzenden Gewerbebetrieb

westlich:

durch Hallenkomplexe sowie ungenutzte Frei- bzw. Wiesenflächen

Hintergrund für die Aufstellung der 1. Änderung und Ergänzung des Bebauungsplanes Nr. 34 „Eingeschränktes Gewerbegebiet an der Nelkenstraße“ ist der, dass die bestehenden Gewerbebetriebe im Bereich der ehemaligen VEG-Saatzucht bis auf wenige Bauten baurechtlich nicht genehmigt waren. Die Flächen und Gebäude wurden damals von der Treuhandanstalt verkauft. Baurechtlich waren sie jedoch als Werkstätten oder Betriebseinrichtungen einer Großgärtnerei genehmigt. Eine Umnutzungsgenehmigung zu den damals vorhandenen Gewerbebetrieben existierte nicht. Rein rechtlich wären für alle damaligen Gewerbebetriebe, die nicht gartenbaulich tätig sind, Nutzungsuntersagungen durch den Landkreis auszusprechen. Der vorhandene Zustand wurde von den Behörden geduldet. In einem Gespräch mit dem Landkreis Vorpommern - Rügen ist damals deutlich geworden, dass die einzige Lösung zu einer rechtmäßigen Fortnutzung der Gebäude in der Aufstellung eines Bebauungsplans für den betroffenen Bereich liegt.

Der Bebauungsplan Nr. 34 „Eingeschränktes Gewerbegebiet an der Nelkenstraße“ ist am 06.09.2012 in Kraft getreten. Die Stadt Barth verfolgt weiterhin das Ziel, eine effiziente Nachnutzung der Werkstätten, Betriebseinrichtungen sowie brachgefallenen Freiflächen der ehemaligen Großgärtnerei und der umliegenden Flächen voranzutreiben. In diesem Zusammenhang beabsichtigt die Stadt Barth, den rechtskräftigen Bebauungsplan Nr. 34 „Eingeschränktes Gewerbegebiet an der Nelkenstraße“ durch eine Änderung entsprechend zu ergänzen. Die zu ergänzende Fläche grenzt unmittelbar im westlichen Bereich an.

Innerhalb des Plangebietes der 1. Änderung und Ergänzung des Bebauungsplanes Nr. 34 wird von dem Grundstückseigentümer eine Umnutzung und Nutzungsoptimierung des ehemaligen Geländes der Firma Nordflor Blumenhandel GmbH & Co.KG angestrebt. Das ursprünglich zur Herstellung von Samen, Zucht und Zierpflanzen genutzte Grundstück soll nunmehr der Vermietung mehrerer Büroflächen, sowie einer öffentlichen Kantine mit Stellplätzen dienen.

Mit der 1. Änderung und Ergänzung des Bebauungsplanes Nr. 34 sollen die planungsrechtlichen Voraussetzungen geschaffen werden, eine gesteuerte Nachverdichtung zu gewerbebaulichen Zwecken gezielt zu entwickeln.

Der Entwurf der 1. Änderung und Ergänzung des Bebauungsplanes Nr. 34 „Eingeschränktes Gewerbegebiet an der Nelkenstraße“ einschließlich des Entwurfes der Begründung liegen in der Zeit vom

24.11.2023 bis zum 29.12.2023

im Amt für Bauen, Kommunalentwicklung und Ordnung der Stadt Barth, Teergang 2, 18356 Barth während der Öffnungszeiten des Rathauses bzw. der Bürgerinformation

Montag

9:00 Uhr bis 16:00 Uhr

Dienstag

9:00 Uhr bis 18:00 Uhr

Mittwoch

9:00 Uhr bis 16:00 Uhr

Donnerstag

9:00 Uhr bis 16:00 Uhr

Freitag

9:00 Uhr bis 12:00 Uhr

zu jedermanns Einsicht öffentlich aus. Die Entwurfsunterlagen können während des Auslegungszeitraumes auch auf der Internetseite des Amtes Barth eingesehen werden. Während der Öffentlichkeitsbeteiligung gemäß § 3 Abs. 2 BauGB können von jedermann Stellungnahmen zum Entwurf schriftlich oder während der o.g. Dienststunden zur Niederschrift abgegeben werden. Stellungnahmen können auch per Email an piest@stadt-barth.de gesandt werden. Die Verarbeitung personenbezogener Daten erfolgt auf der Grundlage der Artikel 6 Absatz 1 Buchstabe e der Datenschutzgrundverordnung in Verbindung mit § 3 BauGB und dem Landesdatenschutzgesetz. Sofern Sie Ihre Stellungnahme ohne Absenderangaben abgeben, erhalten Sie keine Mitteilung über das Ergebnis der Prüfung. Es wird darauf hingewiesen, dass nicht fristgerecht abgegebene Stellungnahmen bei der Beschlussfassung über den Bauleitplan unberücksichtigt bleiben können.

Die Bekanntmachung ist auch im Internet auf der Seite des Amtes Barth unter www.amt-barth.de/bekanntmachungen/oeffentliche-bekanntmachungen-der-amtsangehoerigen-gemeinden einsehbar.

Barth, den 23.10.2023

gez. F.-C. Hellwig
Bürgermeister