Titel Logo
Dummerstorfer Amtsanzeiger
Ausgabe 6/2024
Amtliche Bekanntmachungen
Zurück zur vorigen Seite
Zurück zur ersten Seite der aktuellen Ausgabe

Satzung der Gemeinde Dummerstorf über den Bebauungsplan Nr. 28 mit der Gebietsbezeichnung „An der kleinen Zarnow“

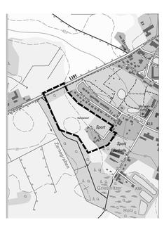
Auszug aus der topographischen Karte

Bekanntmachung des Aufstellungsbeschlusses

Die Gemeindevertretung der Gemeinde Dummerstorf hat in ihrer Sitzung am 28.05.2024 die Aufstellung des Bebauungsplanes Nr. 28 mit der Gebietsbezeichnung „An der kleinen Zarnow“ beschlossen.

Die Gemeinde Dummerstorf plant die Entwicklung der im wirksamen Flächennutzungsplan dargestellten Wohnbaufläche W 10 im Südwesten von Dummerstorf. Neben den Wohnbauflächen sind für den Geltungsbereich im Flächennutzungsplan Grünflächen als Siedlungsgrün, als Abstandflächen zum Wald und untergeordnet Sonstige Sondergebiete (Nr. 9 „Reitanlage und Tourismus“) ausgewiesen.

Die Plangebietsflächen mit einer Größe von etwa 7 ha erstrecken sich zwischen dem Wohngebiet am Parkweg und den Waldflächen, die die Ortslage im Südwesten zum freien Landschaftsraum begrenzen. Begrenzt wird das Plangebiet im Nordwesten durch die L 191.

Der Geltungsbereich ist auf dem Übersichtsplan in der Anlage dargestellt.

Mit der Aufstellung des Bebauungsplanes Nr. 28 sollen die planungsrechtlichen Voraussetzungen zur Entwicklung eines Wohngebietes geschaffen werden. Dazu sollen überwiegend Allgemeine Wohngebiete nach § 4 Baunutzungsverordnung für die Errichtung von Mehrfamilien-, Reihen- und Einfamilienhäusern festgesetzt werden. Die verkehrliche Haupterschließung ist durch die Anbindung an den neu ausgebauten Kreisverkehr an der L191 vorgesehen. Im Rahmen des Aufstellungsverfahrens sind insbesondere die forstrechtlichen sowie die naturschutzrechtlichen Belange zu berücksichtigen.

Der Aufstellungsbeschluss wird hiermit bekannt gemacht.

Diese Bekanntmachung ist auch auf der Internetseite der Gemeinde Dummerstorf unter http://www.dummerstorf.de/index.php verfügbar.

Dummerstorf, den 30.05.2024

Anlage: Übersichtsplan zur Lage des Geltungsbereiches des Bebauungsplanes Nr. 28 der Gemeinde Dummerstorf