Titel Logo
Crivitzer Amtsbote
Ausgabe 5/2023
Öffentliche Bekanntmachungen
Zurück zur vorigen Seite
Zurück zur ersten Seite der aktuellen Ausgabe

Bekanntmachung der Stadt Crivitz

Öffentliche Auslegung des Bebauungsplans Nr. 9 der Stadt Crivitz gemäß § 3Absatz 2 Baugesetzbuch (BauGB)

Die Stadtvertretung der Stadt Crivitz hat am 24.04.2023 in öffentlicher Sitzung den Entwurf des Bebauungsplans Nr. 9 Ausweichsportplatz am Geschwister-Scholl-Platz" und den Entwurf der dazugehörigen Begründung einschließlich Umweltbericht gebilligt und beschlossen, diese nach § 3 Absatz 2 BauGB in Verbindung mit § 214 Absatz 4 BauGB erneut öffentlich auszulegen.

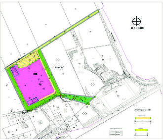
Lage des Plangebietes:

Der Geltungsbereich umfasst eine Fläche von ca. 3,3 ha und befindet sich am westlichen Rand des Stadtgebietes, nördlich des Geschwister-Scholl-Platzes und nordwestlich der vorhandenen Sportanlage.

Es werden in der Gemarkung Crivitz, Flur 27, die Flurstücke 40/5, 38/1 und Teilflächen der Flurstücke 39, 46/31, 46/22 und 46/27 einbezogen (siehe Übersichtsplan).

Planungsziel und -zweck:

Es sollen die planungsrechtlichen Voraussetzungen für weitere Spiel- und Sportflächen zur Entlastung der bestehenden Sportanlage für den Schul- und Breitensport sowie für den Fußballpunktspielbetrieb und zur Absicherung der infrastrukturellen Grundversorgung geschaffen werden.

Der Entwurf des Bebauungsplans Nr. 9 Ausweichsportplatz am Geschwister-Scholl-Platz" der Stadt Crivitz und die dazugehörige Begründung mit Umweltbericht liegen in der Zeit

vom 05.06.2023 bis zum 10.07.2023

zu folgenden Öffnungszeiten:

Montag

9.00 -12.00 Uhr

Dienstag

9.00 - 12.00 Uhr und 14.00 - 16.00 Uhr

Donnerstag

9.00 - 12.00 Uhr und 14.00 - 18.00 Uhr

Freitag

9.00 -12.00 Uhr

sowie nach vorheriger Vereinbarung zu anderen Zeiten im Amt Crivitz, Amtsstraße 5 in 19089 Crivitz, Zimmer 126 zu jedermanns Einsicht aus. Die Unterlagen können ebenso auf der Homepage des Amtes Crivitz (www.amt-crivitz.de) eingesehen werden.

Mit dem Entwurf des Bebauungsplanes sind folgende umweltrelevanten Informationen und Stellungnahmen verfügbar und liegen ebenfalls aus:

I.

umweltrelevanten Informationen

1.

Umweltbericht

Schutzgut Fauna und Flora

Schutzgut Wasser

Schutzgut Klima und Luft

Schutzgut Boden

Schutzgut Landschaft

Schutzgut Schutzgebiete, u.a. Schutzgebietssystem Natura 2000

Schutzgut Mensch und Gesundheit

Schutzgut Kulturgüter und sonstige Sachgüter

Prognose der Entwicklung des Plangebiets

Maßnahmen zur Vermeidung und Minderung des Eingriffs

Eingriffs-Ausgleichs-Bilanzierung

2.

Artenschutzrechtlicher Fachbeitrag mit Informationen zu:

relevanten Säugetieren, Reptilien, Amphibien und Insekten

europäischen Vogelarten

Maßnahmen zur Vermeidung und vorgezogene Ausgleichsmaßnahmen

3.

Horstkartierung

4.

Erfassung und Bewertung der Brutvögel

5.

Schalltechnisches Gutachten für den B-Plan Ausweichsportplatz am Geschwister-Scholl-Platz" in Crivitz

6.

Schalltechnisches Gutachten Messung der Schießgeräuschimmissionen in der Nachbarschaft der Schießstätte in Crivitz

II.

vorliegende umweltbezogene Stellungnahmen von Behörden und sonstigen Trägern öffentlicher Belange aus der Beteiligung gemäß § 4 Absatz 1 BauGB:

2.1

Stellungnahme des Landkreis Ludwigslust-Parchim vom 04.09.2013 mit Anregungen und Hinweisen zu

Anbindung des Plangebiets an das öffentliche Straßennetz

Ausführung der Erschließungsstraßen und Tore für die Feuerwehr

Löschwasserbereitstellung und Pflege des Bewuchses an den PV-Modulen

Trinkwasserschutzzone III

Eventuellen Bodendenkmalen

Wassergefährdenden Stoffe

Immissionsschutz bezüglich Lärm und Blendung

Elektromagnetische Felder an Trafostationen

2.2

Stellungnahme des Landkreis Ludwigslust-Parchim vom 11.09.2013, FG Naturschutz und Landschaftspflege mit Anregungen und Hinweisen zu

Eingriffs-Ausgleichs-Bilanzierung

Artenschutz im Umwelt- und Artenschutzfachbericht

Pflegezeitpunkte der Modulzwischenflächen

Bodenfreiheit der Einzäunung

Bauzeitenregelung

2.3

Stellungnahme des Landkreis Ludwigslust-Parchim vom 01.03.2013, FG Naturschutz und Landschaftspflege mit Anregungen und Hinweisen zu

Artenschutzrechtlichem Fachbeitrag

Relevanzprüfung und Potenzialabschätzung

Artenschutz, notwendige Maßnahmen, Bauzeitenregelung

Eingriffs- Ausgleichsbilanzierung

Entwicklungspflege

2.4

Stellungnahmen des Amtes für Raumordnung und Landesplanung Westmecklenburg vom 09.02.2013, 13.02.2013 und 20.08.2013 mit Anregungen und Hinweisen zu Zielen der Raumordnung und Landesplanung

2.5

Stellungnahmen des Staatlichen Amtes für Landwirtschaft und Umwelt Westmecklenburg vom 27.02.2023 und 30.08.2013

Hinweise zum Verhalten beim Feststellen von Altlasten

Hinweise auf bestehende Anlagen nach Bundesimmissionsschutzgesetz (BlmSchG) in immissionsrelevanter Umgebung

2.6

Stellungnahmen des Forstamtes Gädebehn vom 25.09.2013 mit Anregungen und Hinweisen zu Waldflächen und Waldabstand

2.7

Stellungnahmen des Forstamtes Friedrichsmoor vom 23.08.2013 mit Anregungen und Hinweisen zu Waldflächen

2.8

Stellungnahmen des Bergamtes Stralsund vom 18.02.2013 und 09.06.2013 mit der Aussage zu bergbaulichen Belangen nach Bundesberggesetz (BbergG)

2.9

Stellungnahmen des Landesamtes für Kultur und Denkmalpflege vom 27.03.2013 und 01.10.2013 mit Anregungen und Hinweisen zu Bau- und Bodendenkmalpflege

2.10

Stellungnahmen des Landesamtes für Umwelt, Natur und Geologie vom 18.02.2013 und 19.08.2013 mit Anregungen und Hinweisen zu Lärmimmissionen

2.11

Stellungnahmen eines Bürgers mit Anregungen und Hinweisen zu

benachbarter Wohnbebauung

Lärmimmissionen

Die o. g. Unterlagen enthalten die folgenden Arten umweltbezogener Informationen. Es werden Aussagen getroffen bzw. Hinweise gegeben zu:

Schutzgut Tiere, Pflanzen und biologische Vielfalt

Biotopausstattung und Geschützte Biotope nach § 20 NatSchAG M-V, FFH-Gebiete und Europäische Vogelschutzgebiete, Rastplatzfunktion, Beschreibung des Vorhabengebietes, Artenschutzrechtliche Auswirkungen des Vorhabens, Bestand und Relevanzprüfung, Wertung des Artenschutzes nach Bundesnaturschutzgesetz und Naturschutzausführungsgesetz M- V, Betroffenheit von Waldbeständen

Schutzgut Boden

Bodenart, Bodenfunktionsbewertung, Betroffenheit geschützter Geotope nach § 20 NatSchAG, Auswirkungen von Versiegelungen

Schutzgut Wasser

Oberflächengewässer, Kleingewässer, Grundwasser, Betroffenheit von Trinkwasserschutzgebieten und Überschwemmungsgebieten, Aussagen zur Hydrogeologie und Oberflächenwasser

Schutzgut Landschaftsbild

Schutzwürdigkeit Landschaftsbild, Strukturierende Landschaftselemente, Landschaftsschutzgebiete, Charakteristik der Landschaft, Auswirkungen der optischen Wirkungen

Schutzgut Klima und Luft

Auswirkungen auf das Schutzgut Klima und Luft, Maßnahmen zur Minderung

Schutzgut Menschliche Gesundheit und Wohlbefinden

Schutzabstände, Bewertung der Beeinträchtigung von Funktionen des Schutzgutes

Schutzgut Kultur- und sonstige Sachgüter

Umgebungsschutz kulturlandschaftsprägender Denkmäler, Umgebungsschutz von Bodendenkmalen, Bewertung potenzieller Beeinträchtigungen der Schutzgüter

Während der Auslegungsfrist können von jedermann Anregungen zum Vorentwurf schriftlich, per E-Mail (bauleitplanung@amt-crivitz.de) oder während der Öffnungszeiten zur Niederschrift vorgebracht werden.

Die Verarbeitung personenbezogener Daten erfolgt auf Grundlage des § 3 BauGB in Verbindung mit Artikel 6 Absatz 1 Buchstabe e DSGVO und dem Landesdatenschutzgesetz (DSG M-V). Sofern Sie Ihre Stellungnahme ohne Absenderangaben abgeben, erhalten Sie keine Mitteilung über das Ergebnis der Prüfung.

Es wird darauf hingewiesen, dass nicht innerhalb der Auslegungsfrist abgegebene Stellungnahmen bei der Beschlussfassung über den Bebauungsplan Nr. 9 der Stadt Crivitz gemäß § 4a Absatz 6 BauGB unberücksichtigt bleiben können, sofern die Stadt Crivitz deren Inhalt nicht kannte und nicht hätte kennen müssen und deren Inhalt für die Rechtmäßigkeit des Bebauungsplanes nicht von Bedeutung ist.

Crivitz, 10.05.2023

Im Original gezeichnet

B. Brusch-Gamm
Die Bürgermeisterin
Übersichtsplan

Planauszug