Titel Logo
Crivitzer Amtsbote
Ausgabe 6/2025
Öffentliche Bekanntmachungen
Zurück zur vorigen Seite
Zurück zur ersten Seite der aktuellen Ausgabe

Bekanntmachung der Gemeinde Sukow Satzung über die 1. Änderung des vorhabenbezogenen Bebauungsplans Nr. 4 „Errichtung von Biogasanlagen" der Gemeinde Sukow

Die Gemeindevertretung der Gemeinde Sukow hat am 30.04.2025 die Satzung über die 1. Änderung des vorhabenbezogenen Bebauungsplans Nr. 4 „Errichtung von Biogasanlagen" bestehend aus der Planzeichnung (Teil A) und dem Text (Teil B) beschlossen. Der Vorhaben- und Erschließungsplan ist Bestandteil der Planung.

Das Bauleitplanverfahren wurde im vereinfachten Verfahren nach § 13 Baugesetzbuch (BauGB) durchgeführt. Von einer Umweltprüfung nach § 2 Absatz 4 des BauGB, von einem Umweltbericht nach § 2a BauGB, von der Angabe nach § 3 Absatz 2 Satz 2 BauGB welche Arten umweltbezogener Informationen verfügbar sind, von der zusammenfassenden Erklärung nach § 10a Absatz 1 BauGB sowie von der frühzeitigen Unterrichtung und Erörterung nach § 3 Absatz 1 und § 4 Absatz 1 BauGB wurde abgesehen.

Die 1. Änderung des vorhabenbezogenen Bebauungsplans Nr. 4 wurde gemäß § 8 Absatz 2 Satz 1 BauGB aus dem rechtswirksamen Flächennutzungsplan der Gemeinde Sukow entwickelt und bedarf daher keiner Genehmigung der höheren Verwaltungsbehörde.

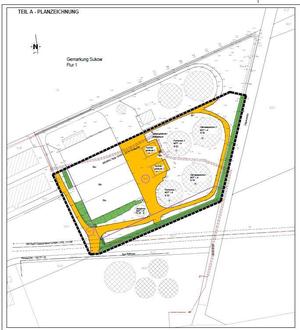
Lage des Plangebietes:

Der Geltungsbereich umfasst ca. 1,79 ha in der Gemarkung Sukow, Flur 1, Flurstücke 79/4 und 79/13. Er liegt nördlich der Ortschaft Sukow.

Die Fläche des Geltungsbereiches wird begrenzt im Norden durch eine vorhandene Biogasanlage (Modul 3), im Westen durch den bestehenden landwirtschaftlichen Betrieb, im Osten durch die öffentliche Straße „Ziegenstraße“ und im Süden durch die öffentliche Straße „Zum Bültmoor“ und Ackerflächen.

Planungsziel:

Ziel ist die Schaffung der planungsrechtlichen Voraussetzungen zur Modernisierung und Nachrüstung der vorhandenen Biogasanlage über eine Anpassung der maximalen Höhe (für die Gärrestbehälter und Fermenter), die Berücksichtigung von Flächen für die Erschließung sowie die Abgeltung der Ausgleichsmaßnahmen über ein Ökokonto anstelle einer Ausgleichs-bepflanzung auf dem Betriebsgelände.

Der Satzungsbeschluss wird hiermit gemäß § 10 Absatz 3 BauGB bekannt gemacht.

Mit der Bekanntmachung tritt die Satzung über die 1. Änderung des vorhabenbezogenen Bebauungsplans Nr. 4 „Errichtung von Biogasanlagen" der Gemeinde Sukow in Kraft.

Jedermann kann die Satzung über die 1. Änderung des vorhabenbezogenen Bebauungsplans Nr. 4 „Errichtung von Biogasanlagen" der Gemeinde Sukow und die Begründung dazu ab diesem Tag im Amt Crivitz, Amtsstraße 5 in 19089 Crivitz während der Öffnungszeiten einsehen und über den Inhalt Auskunft verlangen. Die Unterlagen können ebenso auf der Homepage des Amtes Crivitz (www.amt-crivitz.de) eingesehen werden. Weiterhin werden die Unterlagen im Bau- und Planungsportal M-V unter https://bplan.geodaten-mv.de zur Verfügung gestellt.

Soweit beim Erlass der Satzung gegen Verfahrens- und Formvorschriften verstoßen wurde, die in der Kommunalverfassung des Landes Mecklenburg-Vorpommern (KV M-V) enthalten oder auf Grund der KV M-V erlassen worden sind, können diese entsprechend § 5 KV M-V nur innerhalb eines Jahres schriftlich unter Bezeichnung der verletzten Vorschrift und der Tatsache, aus der sich der Verstoß ergibt, gegenüber der Gemeinde geltend gemacht werden. Diese Einschränkung gilt nicht für die Verletzung von Anzeige-, Genehmigungs- und Bekanntmachungsvorschriften.

Auf die Vorschriften des § 44 BauGB über die fristgemäße Geltendmachung etwaiger Entschädigungsansprüche für Eingriffe in eine bisher zulässige Nutzung durch diese Satzung und über das Erlöschen von Entschädigungsansprüchen bei nicht fristgemäßer Geltendmachung wird hingewiesen. Ein Entschädigungsanspruch erlischt, wenn nicht innerhalb von drei Jahren nach Ablauf des Kalenderjahres, in dem die in den §§ 39 bis 42 BauGB bezeichneten Vermögensnachteile eingetreten sind, die Fälligkeit des Anspruchs durch schriftlichen Antrag bei den Entschädigungspflichtigen herbeigeführt wird.

Es wird gemäß § 215 Absatz 1 BauGB darauf hingewiesen, dass

1)

eine nach § 214 Absatz 1 Satz 1 Nr. 1 bis 3 BauGB beachtliche Verletzung der dort bezeichneten Verfahrens- und Formvorschriften,

2)

eine unter Berücksichtigung des § 214 Absatz 2 BauGB beachtliche Verletzung der Vorschriften über das Verhältnis des Bebauungsplanes und des Flächennutzungsplanes und

3)

nach § 214 Absatz 3 Satz 2 BauGB beachtliche Mängel des Abwägungsvorganges dann unbeachtlich werden, wenn sie nicht innerhalb eines Jahres seit der Bekanntmachung des Bebauungsplanes schriftlich gegenüber der Gemeinde Sukow unter Darlegung des die Verletzung begründenden Sachverhalts geltend gemacht worden sind. Dies gilt entsprechend, wenn Fehler nach § 214 Absatz 2a BauGB beachtlich sind.

Sukow, 16.06.2025

Im Original gezeichnet

H.-D. Keding
Bürgermeister Gemeinde Sukow

Abbildung 1