Titel Logo
Demminer Nachrichten
Ausgabe 4/2023
Aktuelles / Blickpunkte
Zurück zur vorigen Seite
Zurück zur ersten Seite der aktuellen Ausgabe

Mehrfamilienhaus mit 24 Wohneinheiten zu verkaufen

Ausblick Wohnzimmer Küche

Blick vom Schlafzimmer in Kinderzimmer, 3-Raum WE

1-Raum WE

2-Raum WE

3-Raum WE

Meyenkrebs 24a-c in 17109 Demmin

Besichtigungstermine nur nach telefonischer Vereinbarung unter der Rufnummer 03998 28 35 33 oder 03998 28 35 17.

Interessenten können ihr Angebot schriftlich in einem verschlossenen Briefumschlag unter dem Kennwort „Meyenkrebs 24a-c - Bitte nicht öffnen“ bis zum 31.03.2023 an die Wohnungsbau- und Verwaltungsgesellschaft GmbH, Am Markt 5 in 17109 Demmin richten. Es liegt ein Verkehrswertgutachten vor.

Mindestgebot:

206.000,00 Euro

Die Auswahl erfolgt nach dem Höchstgebot.

Das Objekt

Lage

Das hier angebotene Objekt befindet sich in der Hansestadt Demmin - eine Kleinstadt in Mecklenburg-Vorpommern. Demmin liegt im Dreistromland der drei Flüsse Peene, Tollense und Trebel, auch als Amazonas des Nordens bekannt. Durch seine gewässerreiche Umgebung ist die Region Demmin ein beliebtes Urlaubsziel. Die Umgebung wird besonders durch das größte Niedermoorgebiet Deutschlands gekennzeichnet. Durch die zentrale Lage im Herzen Mecklenburg-Vorpommern, bietet sich die Stadt Demmin für Tagestouren an. Die Region ist speziell für Angler und Wassersportler interessant, da Demmin einer der fischreichsten Städte Mecklenburg- Vorpommerns ist. Weiterhin gibt es in Demmin und Umgebung ein weitverzweigtes Rad- und Wanderwegenetz. In Demmin leben aktuell 10.747 (Stand 15.09.2021) Einwohner. Der nächste Autobahnanschluss zur A20 bei Jarmen ist nur 20 Minuten von hier entfernt. Die Ostseeküste ist in allen Richtungen sehr gut erreichbar.

Weitere Informationen

Das Objekt ist bei Verkauf teilweise vermietet und kann unmittelbar nach Kauf übergeben werden.

Auf dem Dach des Gebäudes befindet sich eine Photovoltaikanlage. Die Dienstbarkeit ist in Abteilung II des Grundbuches an rangbereiter Stelle, jedoch im Vorrang der Eintragung in Abteilung III, eingetragen. Diese Dienstbarkeit wird durch den Käufer mit übernommen.

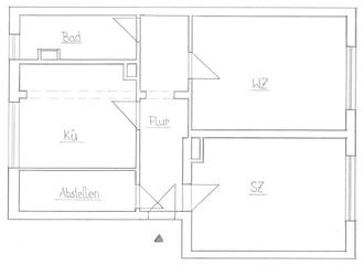
Grundriss der Wohnungen

Eckdaten der Immobilie

Wohnungsbau- und Verwaltungsgesellschaft Demmin GmbH