Titel Logo
Neue Friedländer Zeitung
Ausgabe 4/2023
Amtliche Bekanntmachungen
Zurück zur vorigen Seite
Zurück zur ersten Seite der aktuellen Ausgabe

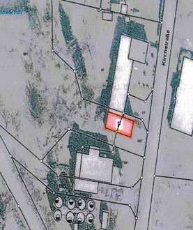
Öffentliche Ausschreibung Vermietung AZ: Kl-2-62/2-65/1

Die Gemeinde Galenbeck schreibt folgendes gemeindliche Objekt zur Vermietung aus:

ehemaliges Feuerwehrgebäude in Klockow, Lindenstr.

Gemarkung

Flur

Flurstück

Klockow

2

62/2

Klockow

2

65/1

Bei dem Gebäude handelt es sich um eine ehemalige Feuerwehrgarage mit zwei getrennten Räumen mit jeweils einem Tor. Die Nutzfläche beträgt insgesamt ca. 100 m².

Eine Nutzung als Garage oder Lager ist möglich. Das Gebäude hat zurzeit noch einen Stromanschluss.

Für die rechte Seite des Gebäudes beträgt die monatliche Miete 75,00 EUR.

Für die linke Seite des Gebäudes beträgt die monatliche Miete 25,00 EUR (ohne Strom).

Neben dem Mietzins trägt der Mieter die auf dem Gebäude ruhenden Abgaben, Steuern und öffentlichen Lasten sowie die Kosten für die Elementarversicherung und die Stromkosten.

Das Gebäude befindet sich in einem altersbedingten schlechten Zustand.

Die Gemeinde behält sich vor, von einer Vermietung des Gebäudes abzusehen, zu Nachgeboten aufzufordern oder das Gebäude neu anzubieten.

Interessenten werden gebeten ihr Angebot unter „Öffentliche Ausschreibung Vermietung AZ: Kl-2-62/2-65/1“ bei der Stadt Friedland, Riemannstraße 42, 17098 Friedland bis zum 10.05.2023 einzureichen.

Kontakt:

Ellen Salow

Tel.: 039601 277-76

Fax: 039601 27794-76

E-Mail: e.salow@friedland-mecklenburg.de