Titel Logo
Amtskurier Güstrow-Land
Ausgabe 12/2024
Amtliche Bekanntmachungen
Zurück zur vorigen Seite
Zurück zur ersten Seite der aktuellen Ausgabe

Öffentliche Bekanntmachung der Gemeinde Glasewitz über die Genehmigung zum Bebauungsplan Nr. 2 „Photovoltaikanlage Glasewitz“

Der von der Gemeindevertretung Glasewitz in der Sitzung am 26.03.2024 (DS-Nr. 07/24) als Satzung beschlossene Bebauungsplan Nr. 2 „Photovoltaikanlage Glasewitz“ wurde mit Verfügung vom 16.07.2024 vom Landrat des Landkreises Rostock genehmigt. Die Genehmigung wird hiermit öffentlich bekannt gemacht. Der Bebauungsplan tritt mit Ablauf des Tages dieser Bekanntmachung in Kraft (§ 10 Abs. 3 BauGB i.V.m. § 8 Abs. 3 Hauptsatzung der Gemeinde Glasewitz).

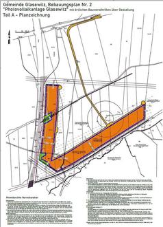
Das Plangebiet entlang der Bundesautobahn BAB 19 und des Schienenweges Güstrow - Plaaz (Eisenbahnstrecke 6926) ist dem nachfolgenden Planausschnitt zu entnehmen:

Jedermann kann die Satzung der Gemeinde Glasewitz über den Bebauungsplan Nr. 2 „Photovoltaikanlage Glasewitz“ mit der Begründung sowie der zusammenfassenden Erklärung ab diesem Tag im Amt Güstrow-Land, Haselstraße 4, 18273 Güstrow, Raum 205, während der Öffnungszeiten:

montags und freitags

von 09:00 bis 12:00 Uhr,

dienstags

von 09:00 bis 12:00 Uhr und

von 14:00 bis 18:00 Uhr und

donnerstags

von 09:00 bis 12:00 Uhr und

von 14:00 bis 16:00 Uhr

einsehen und über den Inhalt Auskunft verlangen.

Darüber hinaus ist die Einsichtnahme der Satzung mit der Begründung und der zusammenfassenden Erklärung im Internet auf der Homepage des Amtes Güstrow-Land unter dem Pfad www.amt-guestrow-land.de/ortsrecht/bauleitplanungen sowie auf dem zentralen Internetportal des Landes Mecklenburg-Vorpommern unter dem Pfad www.bauportal-mv.de/bauportal/Bauleitplaene möglich.

Auf die Voraussetzungen für die Geltendmachung der Verletzung von Verfahrens- und Formvorschriften und von Mangeln der Abwägung sowie die Rechtsfolgen des § 215 Abs. 1 BauGB wird hingewiesen. Unbeachtlich werden demnach

  1. eine nach § 214 Abs. 1 Satz 1 Nr. 1 bis 3 BauGB beachtliche Verletzung der dort bezeichneten Verfahrens- und Formvorschriften,
  2. eine unter Berücksichtigung des § 214 Abs. 2 BauGB beachtliche Verletzung der Vorschriften über das Verhältnis des Bebauungsplans und des Flächennutzungsplans und
  3. nach § 214 Abs. 3 Satz 2 BauGB beachtliche Mängel des Abwägungsvorgangs,

wenn sie nicht innerhalb eines Jahres seit Bekanntmachung des Bebauungsplans schriftlich gegenüber der Gemeinde Glasewitz über das Amt Güstrow-Land, -Der Amtsvorsteher-, Haselstraße 4, 18273 Güstrow geltend gemacht worden sind; der Sachverhalt, der die Verletzung oder den Mangel begründen soll, ist darzulegen. Dies gilt entsprechend, wenn Fehler nach § 214 Absatz 2a BauGB beachtlich sind.

Ein Verstoß gegen Verfahrens- und Formvorschriften, die in der Kommunalverfassung für das Land Mecklenburg-Vorpommern enthalten oder aufgrund dieser Kommunalverfassung erlassen worden sind, ist nach Ablauf eines Jahres seit dieser Bekanntmachung unbeachtlich, wenn der Verstoß nicht innerhalb der Jahresfrist schriftlich unter Bezeichnung der verletzten Vorschrift und der Tatsache, aus der sich der Verstoß ergibt, gegenüber der Gemeinde Glasewitz geltend gemacht wird (§ 5 Abs. 5 Kommunalverfassung für das Land Mecklenburg-Vorpommern). Eine Verletzung von Anzeige-, Genehmigungs- oder Bekanntmachungsvorschriften kann stets geltend gemacht werden (§ 5 Abs. 5 Kommunalverfassung für das Land Mecklenburg-Vorpommern).

Außerdem wird auf die Vorschriften des § 44 Abs. 3 Satz 1 und 2 sowie Abs. 4 BauGB hingewiesen. Danach erlöschen Entschädigungsansprüche für nach den §§ 39 bis 42 BauGB eingetretene Vermögensnachteile, wenn nicht innerhalb von drei Jahren nach Ablauf des Kalenderjahres, in dem die Vermögensnachteile eingetreten sind, die Fälligkeit des Anspruches herbeigeführt wird.

Glasewitz, 04.12.2024

Gert-Michael Kayatz
Siegel
Bürgermeister