Titel Logo
Amtskurier Güstrow-Land
Ausgabe 2/2024
Amtliche Bekanntmachungen
Zurück zur vorigen Seite
Zurück zur ersten Seite der aktuellen Ausgabe

Öffentliche Bekanntmachung der Gemeinde Reimershagen

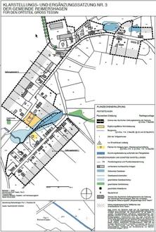
Bekannt gemacht wird gemäß § 10 Abs. 3 Baugesetzbuch (BauGB) die Klarstellungs- und Ergänzungssatzung Nr. 3 der Gemeinde Reimershagen für den Ortsteil Groß Tessin, die von der Gemeindevertretung Reimershagen in der Sitzung am 19.12.2023 beschlossen wurde (DS-Nr. 24/23).

Die Satzung der Gemeinde Reimershagen gemäß § 34 Abs. 4 Satz 1 Nr. 1 und 3 BauGB für den Ortsteil Groß Tessin tritt mit Ablauf des 07.02.2024 in Kraft.

Jedermann kann die Klarstellungs- und Ergänzungssatzung Nr. 3 der Gemeinde Reimershagen für den Ortsteil Groß Tessin und die Begründung ab diesem Tag im Amt Güstrow-Land, Haselstraße 4, 18273 Güstrow, Raum 205, während der Öffnungszeiten:

montags und freitags

von 09:00 bis 12:00 Uhr,

dienstags

von 09:00 bis 12:00 Uhr und

von 14:00 bis 18:00 Uhr und

donnerstags

von 09:00 bis 12:00 Uhr und

von 14:00 bis 16:00 Uhr

einsehen und über den Inhalt Auskunft verlangen.

Darüber hinaus ist die Einsichtnahme der Satzung mit der Begründung im Internet auf der Homepage des Amtes Güstrow-Land unter dem Pfad www.amt-guestrow-land.de/ortsrecht/bauleitplanungen sowie

auf dem Bau- und Planungsportal M-V unter dem Pfad https://bplan.geodaten-mv.de/Bauleitplaene/Interaktive_Karte möglich.

Auf die Voraussetzungen für die Geltendmachung der Verletzung von Verfahrens- und Formvorschriften und von Mängeln der Abwägung sowie die Rechtsfolgen des § 215 Abs. 1 BauGB wird hingewiesen. Unbeachtlich werden demnach

  1. eine nach § 214 Absatz 1 Satz 1 Nummer 1 bis 3 BauGB beachtliche Verletzung der dort bezeichneten Verfahrens- und Formvorschriften,
  2. eine unter Berücksichtigung des § 214 Absatz 2 BauGB beachtliche Verletzung der Vorschriften über das Verhältnis des Bebauungsplans und des Flächennutzungsplans und
  3. nach § 214 Absatz 3 Satz 2 BauGB beachtliche Mängel des Abwägungsvorgangs, wenn sie nicht innerhalb eines Jahres seit Bekanntmachung der Satzung schriftlich gegenüber der Gemeinde Reimershagen über das Amt Güstrow-Land, -Der Amtsvorsteher-, Haselstraße 4, 18273 Güstrow geltend gemacht worden sind; der Sachverhalt, der die Verletzung oder den Mangel begründen soll, ist darzulegen. Dies gilt entsprechend, wenn Fehler nach § 214 Absatz 2a BauGB beachtlich sind.

Soweit beim Erlass dieser Satzung gegen Verfahrens- und Formvorschriften verstoßen wurde, können diese nach § 5 Abs. 5 der Kommunalverfassung für das Land Mecklenburg-Vorpommern geltend gemacht werden. Diese Einschränkung gilt nicht für die Verletzung von Anzeige-, Genehmigungs- und Bekanntmachungsvorschriften. Außerdem wird auf die Vorschriften des § 44 Abs. 3 Satz 1 und 2 sowie Abs. 4 BauGB hingewiesen. Danach erlöschen Entschädigungsansprüche für nach den §§ 39 bis 42 BauGB eingetretene Vermögensnachteile, wenn nicht innerhalb von drei Jahren nach Ablauf des Kalenderjahres, in dem die Vermögensnachteile eingetreten sind, die Fälligkeit des Anspruches herbeigeführt wird.

Reimershagen, 07.02.2024
Siegel
Jens Kupfer
Bürgermeister