Titel Logo
Amtskurier Güstrow-Land
Ausgabe 3/2023
Amtliche Bekanntmachungen
Zurück zur vorigen Seite
Zurück zur ersten Seite der aktuellen Ausgabe

Ausschreibung

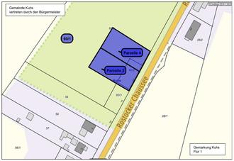
Baugrundstücke in 18276 Kuhs, Rostocker Chaussee

Das Amt Güstrow-Land schreibt für die Gemeinde Kuhs zwei Baugrundstücke zur Wohnbebauung zum Verkauf aus.

Entsprechend der Klarstellungs- und Ergänzungssatzung der Gemeinde Kuhs für den Ortsteil Kuhs liegen die betreffenden Grundstücksteilflächen im Innenbereich gemäß § 34 BauGB. Die Grundstücke sind ortsüblich erschlossen.

Auf Folgendes wird hingewiesen:

-

die Festlegungen der Satzung sind entsprechend einzuhalten (Einsichtnahme der Satzung im Amt, unter vorheriger Terminabsprache, möglich!)

-

es gilt eine Bauverpflichtung innerhalb von 3 Jahren nach Übergabe des Grundstücks

-

Dienstbarkeit für ein Trinkwasserleitungsrecht in Abt. II des Grundbuchs ist zu übernehmen

-

alle Vertragsdurchführungskosten (Notar u. a.) trägt der Käufer

-

es wird eine Beleihungsvollmacht von maximal 500.000 € gewährt

-

die Ausschreibung stellt keine Ausschreibung nach VOB/UVgO dar

Die Ausschreibung wird am 01.02.2023 eröffnet. Gebote können innerhalb einer Frist bis zum 30.04.2023 abgegeben werden. Ausschlaggebend für die Fristwahrung ist der Poststempel. Anträge sind mit einem Gebot, welches mindestens für

Parzelle 3 (ca. 1.268 m²)

=

45,00 €/m² (Mindestgebot)

Parzelle 4 (ca. 1.267 m²)

=

45,00 €/m² (Mindestgebot)

betragen muss, in einem verschlossenen Umschlag mit dem Vermerk „Nicht öffnen! Ausschreibung Baugrundstück in Kuhs + Parzellenangabe“ an das Amt Güstrow-Land, SB Liegenschaften, Haselstraße 4 in 18273 Güstrow, zu richten. Werden mehrere Gebote abgegeben, behält sich die Gemeinde Kuhs die Durchführung eines Bieterverfahrens vor. Angebotsklauseln, die eine automatische Steigerung des Kaufpreises beinhalten, sofern ein anderer Kaufinteressent einen höheren Kaufpreis bietet, werden nicht gewertet. Die Vergabe steht unter Vorbehalt der Zustimmung der politischen Gremien.

Die Gemeinde Kuhs behält sich das Recht vor, die Ausschreibung ohne Angaben von Gründen jederzeit für ungültig zu erklären.

Güstrow, 01.02.2023

Kontakt:

Amt Güstrow-Land, Bau- und Ordnungsamt - Abt. Liegenschaften, Haselstraße 4, 18273 Güstrow

Ansprechpartner:

Frau Schießl, Telefon: 03843 693333,

E-Mail: b.schiessl@amt-guestrow-land.de

Die Ausschreibung ist auf der Homepage des Amtes Güstrow-Land: www.amt-guestrow-land.de/Bekanntmachungen/Liegenschaften einsehbar!