Titel Logo
KAISERBÄDER-BOTE
Ausgabe 6/2024
Amtliche Bekanntmachungen
Zurück zur vorigen Seite
Zurück zur ersten Seite der aktuellen Ausgabe

Amtliche Bekanntmachungen

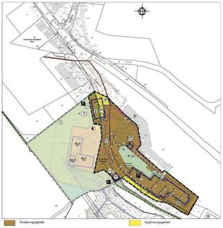
Unmaßstäblicher Auszug aus der Planzeichnung mit Kennzeichnung des Änderungsgebietes und des Ergänzungsgebietes

Geltungsbereich des Bebauungsplanes

Das Plangebiet befindet sich im Ortsteil Heringsdorf.

Der Geltungsbereich des Bebauungsplanes Nr. 69 umfasst die Verkehrsflächen im Bereich des Bahnhofsumfeldes Heringsdorf mit einer Gesamtfläche von rd. 12.835 m².

Das Änderungsgebiet mit den Teilflächen der Flurstücke 33/20, 37 und 38/4 der Flur 1 sowie Flurstück 124/4 und Teilflächen des Flurstückes 126/4 der Flur 2, jeweils Gemarkung Heringsdorf weist eine Gesamtfläche von rd. 11.885 m² auf. Das Ergänzungsgebiet umfasst Teilflächen des Flurstückes 126/4 der Flur 2 der Gemarkung Heringsdorf mit einer Gesamtfläche von rd. 950 m².

Aufgrund des § 13 i.V.m. § 10 des Baugesetzbuches in der Fassung der

Bekanntmachung vom 03.11.2017 (BGBl. I S. 3634), zuletzt geändert durch Artikel 3 des Gesetzes vom 20.12.2023 (BGBl. I Nr. 394), des § 86 der Landesbauordnung Mecklenburg-Vorpommern (LBauO M-V) in der Fassung der Bekanntmachung vom 15.10.2015 (GVOBl. M-V, S. 344), zuletzt geändert durch Gesetz vom 26.06.2021 (GVOBl. M-V S. 1033), und des § 11 Abs. 3 des Gesetzes über Naturschutz und Landschaftspflege (Bundesnaturschutzgesetz -BNatSchG) vom 29.07.2009 (BGBl. I S. 2542), zuletzt geändert durch Artikel 3 des Gesetzes vom 08.12.2022 (BGBl. I S. 2240), wird entsprechend der Beschlussfassung durch die Gemeindevertretung des Ostseebades Heringsdorf vom 25.04.2024 die Satzung über den Bebauungsplan Nr. 69

„1. Änderung und 1. Ergänzung des Bebauungsplanes Nr. 63 Baumwipfelpfad im Seebad Heringsdorf südlich des Heringsdorfer Bahnhofs“, bestehend aus der Planzeichnung (Teil A) und dem Text (Teil B), erlassen.

Der Satzungsbeschluss zum Bebauungsplan Nr. 69 „1. Änderung und 1. Ergänzung des Bebauungsplanes Nr. 63 Baumwipfelpfad im Seebad Heringsdorf südlich des Heringsdorfer Bahnhofs“ der Gemeinde Ostseebad Heringsdorf wird hiermit bekanntgemacht.

Die Satzung zum Bebauungsplan Nr. 69 „1. Änderung und 1. Ergänzung des Bebauungsplanes Nr. 63 Baumwipfelpfad im Seebad Heringsdorf südlich des Heringsdorfer Bahnhofs“ der Gemeinde Ostseebad Heringsdorf, tritt mit Ablauf des 19.06.2024 in Kraft.

Die Bekanntmachung und die Satzung zum Bebauungsplan Nr. 69 „1. Änderung und 1. Ergänzung des Bebauungsplanes Nr. 63 Baumwipfelpfad im Seebad Heringsdorf südlich des Heringsdorfer Bahnhofs“ der Gemeinde Ostseebad Heringsdorf mit Planzeichnung (Teil A), Text (Teil B) und Begründung ist im Internet unter https://gemeinde-ostseebad-heringsdorf.de/Aktuelles/Bekanntmachungen-

Ausschreibungen und im Internetportal des Landes M-V, auf dem Bauleitplanserver M-V unter https://bplan.geodaten-mv.de/Bauleitplaene einsehbar.

Jedermann kann die Satzung über den Bebauungsplan Nr. 69 „1. Änderung und 1. Ergänzung des Bebauungsplanes Nr. 63 Baumwipfelpfad im Seebad Heringsdorf südlich des Heringsdorfer Bahnhofs“ der Gemeinde Ostseebad Heringsdorf und die Begründung dazu ab diesem Tag im Rathaus der Gemeinde Ostseebad Heringsdorf, Amt für Bau- und Gemeindeentwicklung, Kurparkstraße 4 in 17419 Ahlbeck, Zimmer 107, während folgender Zeiten einsehen und über den Inhalt Auskunft verlangen:

Montag, Mittwoch, Donnerstag

von 8.00 Uhr bis 12.00 Uhr

von 13.00 Uhr bis 16.00 Uhr

Dienstag

von 8.00 Uhr bis 12.00 Uhr

von 13.00 Uhr bis 18.00 Uhr

Freitag

von 8.00 Uhr bis 12.00 Uhr

Eine Verletzung der in § 214 Abs. 1 Satz 1 Nr. 1-3 und § 214 Abs. 3 Satz 2 BauGB bezeichneten Verfahrens- und Formvorschriften und Mängel der Abwägung sind unbeachtlich, wenn sie nicht innerhalb eines Jahres seit dieser Bekanntmachung schriftlich gegenüber der Gemeinde geltend gemacht worden sind.

Dabei ist der Sachverhalt, der die Verletzung oder den Mangel begründen soll, darzulegen. (§ 215 Abs. 1 BauGB)

Auf die Vorschriften des § 44 Abs. 3 Satz 1 und 2 sowie Abs. 4 BauGB und auf die Bestimmungen des § 5 Abs. 5 der Kommunalverfassung Mecklenburg-Vorpommern vom 13.07.2011 (GVOBI. M-V, S. 777), geändert durch Artikel 1 des Gesetzes vom 23.07.2019 (GVOBl. M-V, S. 467), GS Meckl.-Vorp. Gl. Nr. 2020 - 9, über die fristgemäße Geltendmachung etwaiger Entschädigungsansprüche für Eingriffe in eine bisher zulässige Nutzung durch diese Bebauungsplansatzung und über das Erlöschen von Entschädigungsansprüchen wird hingewiesen.

Ostseebad Heringsdorf, den 28.05.2024