Titel Logo
Der Usedomer Norden
Ausgabe 3/2024
Informationen der Amtsverwaltung
Zurück zur vorigen Seite
Zurück zur ersten Seite der aktuellen Ausgabe

Ausschreibung „Alte Schule"

„Altes Schulgebäude“ mit Nebengelass,

Hauptstraße 36 in der Gemeinde Ostseebad Karlshagen

im Gebotsverfahren zum Verkauf oder zur Vermietung als Gewerbeobjekt

Mindestkaufpreis/- Mietzins

Es wird auf den Bodenrichtwert verwiesen.

Lageadresse:

besonders zentrale Lage (L 264, Busanbindung)

17449 Ostseebad Karlshagen

Hauptstraße 36

Katasterangaben:

Gemarkung Karlshagen, Flur 3

Flurstücke 18/3,19/6 und 31/519

Geltungsbereich insg.:

2.818 m²

Grundbuchangaben/Baulastenverzeichnis:

Grundbuch von Karlshagen des Amtsgerichtes Greifswald Blatt 633

Bestandsverzeichnis: lfd. Nr. 12:

Gemarkung Karlshagen, Flur 3, Flurstück 18/3

Wirtschaftsart und Lage:

Fläche besonderer funktionaler Prägung, Hauptstraße 36, 17449 Ostseebad Karlshagen

Größe:

2.522 m²

Abteilung 2:

keine Eintragungen

Abteilung 3:

keine Eintragungen

Grundbuch von Karlshagen des Amtsgerichtes Greifswald Blatt 633

Bestandsverzeichnis: lfd. Nr. 4:

Gemarkung Karlshagen, Flur 3, Flurstück 19/6

Wirtschaftsart und Lage:

Fläche besonderer funktionaler Prägung, Hauptstraße 36, 17449 Ostseebad Karlshagen

Größe:

169 m²

Abteilung 2:

keine Eintragungen

Abteilung 3:

keine Eintragungen

Grundbuch von Karlshagen des Amtsgerichtes Greifswald Blatt 509

Bestandsverzeichnis: lfd. Nr. 3:

Gemarkung Karlshagen, Flur 3, Flurstück 31/519

Wirtschaftsart und Lage:

Fläche besonderer funktionaler Prägung, Hauptstraße 36, 17449 Ostseebad Karlshagen

Größe:

127 m²

Abteilung 2:

keine Eintragungen

Abteilung 3:

keine Eintragungen

Die Flurstücke 19/6 und 31/519 wurden aufgrund einzuhaltender Abstandsflächen neu vermessen.

Die Vermessung ist abgeschlossen. Die Vermessungskosten werden auf den Erwerber umgelegt.

Die Auskunft aus dem Baulastenverzeichnis des Landkreises Vorpommern-Greifswald bescheinigt folgende eingetragene Baulasten, welche der Anlage entnommen werden können:

(Haupt)Gebäude:

Bei dem (Haupt)Gebäude handelt es sich um ein eingeschossiges, teilunterkellertes Gebäude mit ausgebautem Dachgeschoss. Es wurde 1953 als Schulgebäude errichtet und diente später auch der Nutzung als solches. Das ursprüngliche traufständige Schulgebäude wurde 1977 durch einen Anbau zum Hof hin erweitert. 1990 wurde das gesamte Dach mit Betondachpfannen neu eingedeckt. Das (Haupt)Gebäude wurde zwischenzeitlich als Sitz der Gemeindeverwaltung bzw. als Amtsgebäude des Amtes „An der Peenemündung“ genutzt.

Später (2010 - 2021) wurde das (Haupt)Gebäude im Zuge eines Umbaus als Hort genutzt. Hierfür mussten funktionelle Änderungen entsprechend der Hortnutzung vorgenommen werden, wie die teilweise Erneuerung der Elektroanlage sowie Erweiterung der Sanitäranlage.

Aktuell ist es leerstehend und wird nur im Erdgeschoss vorrübergehend, etwa als „Testzentrum (COVID-19)“ genutzt.

Das Gebäude wird in der Denkmalliste des Landkreises Vorpommern-Greifswald geführt und stellt

ein Baudenkmal i. S. der §§ 2 ff. Denkmalschutzgesetz (DSchG M-V) dar.

Diverse Unterlagen (alte Brandschutzkonzepte, Grundrisse, etc.) können eingesehen werden bzw. werden auf Nachfrage übersandt.

Bruttogrund- Nutzfläche:

Die Abmaße des (Haupt)Gebäudes sowie der vorhandenen Räume wurden den Grundrisszeichnungen entnommen. Ein Aufmaß wurde nicht durchgeführt.

Bruttogrundfläche:

Erdgeschoss

ca. 211 m²

Dachgeschoss

ca. 189 m²

Heizung:

-

zentrale Gasheizungsanlage, Warmwasser über zentrale Gasheizungsanlage, Bäder

Dachgeschoss Elektroboiler zur Warmwasserversorgung

Auf dem Grundstück befinden sich zwei Nebengebäude, welche noch genutzt werden. Die Nutzung endet mit Abschluss des Grundstückskaufvertrages.

Außenanlage:

Auf dem Grundstück befinden sich diverse Parkmöglichkeiten (Parkplätze).

Die Wege und Parkmöglichkeiten auf dem Grundstück sind befestigt.

Auf dem rechtsseitig an das Grundstück angrenzenden Grundstück befindet sich das Feuerwehrgebäude der Gemeinde Ostseebad Karlshagen.

Baurecht:

Das Grundstück befindet sich nicht im Geltungsbereich eines bestandskräftigen Bebauungsplanes. Für die Gemeinde Ostseebad Karlshagen wurde eine Klarstellungssatzung aufgestellt, nach der Vorhaben auf dem Grundstück nach § 34 BauGB (Zulässigkeit von Vorhaben innerhalb der im Zusammenhang bebauten Ortsteile) zu beurteilen sind. Im rechtswirksamen Flächennutzungsplan der Gemeinde Ostseebad Karlshagen ist das Grundstück als „gemischte Baufläche“ gemäß § 1 Abs. 1 Nr. 2 BauNVO dargestellt.“

Das Verkehrswertgutachten (Stichtag 03.05.2022) kann nach Vereinbarung eingesehen werden.
Erschließung:

Die Zuwegung zum Grundstück/Objekt erfolgt über die Straße „Hauptstraße“. Dabei handelt es sich um eine ausgebaute Hauptverkehrsstraße mit Gehweg.

Anschlüsse für Trink- und Abwasser, Elektroenergie und Telefon liegen am Grundstück/Objekt aus zentralen Netzen an.

Der Glasfaseranschluss ist vorhanden.

Bedingungen und Hinweise zum Grundstück/Objekt und späteren Vertragsabschluss:

Der Erwerber/Mieter hat das Grundstück/ Objekt zu übernehmen, wie es steht und liegt. Er hat die Möglichkeit es ausführlich zu besichtigen. Termine für die Besichtigung des Grundstückes/ Objektes sind mit dem Amt Usedom-Nord, Möwenstraße 1, 17454 Ostseebad Zinnowitz

Frau Nisser

038377 / 73 146 oder f.nisser@amtusedomnord.de

zu vereinbaren.

Wiederkaufsrecht / Rückauflassungsvormerkung (bei Verkauf)

Das Grundstück ist entsprechend unter Einhaltung der bau- und sonstigen rechtlichen Vorschriften durch den Erwerber zu nutzen. Für die Durchführbarkeit des Vorhabens ist allein der Erwerber verantwortlich. Zur Sicherung der vorgenannten Verpflichtung ist der Gemeinde ein Wiederkaufsrecht einzuräumen, dass durch die Eintragung einer Rückauflassungsvormerkung im Grundbuch gesichert werden soll.

Kaufpreisfälligkeit / Übergabe und Übergang (bei Verkauf)

Der Kaufpreis ist innerhalb von 4 Wochen nach Eintragung der Auflassungsvormerkung im Grundbuch fällig.

Besitz und Nutzen gehen am Tag der vollständigen Kaufpreiszahlung, öffentliche und private Lasten, Haftung und Verkehrssicherungspflichten gehen ab Eintritt der Fälligkeit auf den Käufer über.

Rechtsmängel (bei Verkauf):

Den Beteiligten ist bekannt, dass der Vertragsgegenstand für nichtbezahlte Beiträge und andere öffentliche Lasten haftet und dass derartige Bescheide auch für umlegungsfähigen Aufwand aus früherer Zeit ergehen können.

Zur Kostentragung wird vereinbart:

Der Verkauf erfolgt im Hinblick auf die vorhandene straßen-/ wegemäßige Erschließung (Erschließungsanlagen i. S. d. § 127 Abs. 2 BauGB) erschließungskostenbeitragsfrei. Dies gilt jedoch nicht im Hinblick auf die leitungsmäßige Versorgung/ Anbindung an die Leitungsnetze (Elektrizität, Gas, Wärme, Wasser und Abwasser u. a. m.).

Das Recht gem. § 127 Abs. 4 BauGB, Abgaben für Anlagen zu erheben, die nicht Erschließungsanlagen im Sinne von § 154 Abs. 1 S 3, 4 BauGB sind, insbesondere für Anschluss der Anlagen zur Versorgung mit Elektrizität, Gas, Wärme und Wasser sowie Ableitung von Abwasser, bleibt unberührt. Bescheide für Maßnahmen dieser Art trägt mit Abschluss dieses Vertrages der Käufer, auch, soweit derartige Bescheide für bereits durchgeführte Maßnahmen noch ergehen und/ oder dem Verkäufer als noch eingetragenem Eigentümer zugestellt werden sollten. Der Verkäufer garantiert, dass ihm keine unbezahlten Bescheide vorliegen.

Sämtliche Kosten, welche im Zusammenhang mit der Veräußerung des Grundstückes/Objektes entstehen, trägt der Erwerber.

Die vorher genannten Angaben sind teilweise analog bei Mietinteresse zu betrachten. Es wird darauf hingewiesen, dass etwaige Sanierungskosten durch den Mieter getragen werden.

Hinweise zur Antragstellung / Angebotseröffnung und Vergabe:

Der Erwerbsantrag/ Der Mietantrag ist mit entsprechendem Kaufpreisangebot/ Mietzinsangebot in einem geschlossenen Umschlag mit der Aufschrift „Angebot - Altes Schulgebäude - Karlshagen“ an die Gemeinde Ostseebad Karlshagen über das Amt Usedom-Nord, Möwenstraße 1, 17454 Ostseebad Zinnowitz

bis zum 01.04.2024 (bis 12:00 Uhr)

zu richten.

Der Antrag ist unter Nennung des Erwerbs- bzw. Mietinteressenten mit vollständigem Vor- und Nachnamen und Anschrift zu stellen. Bei Firmen ist ein beglaubigter Handelsregisterauszug beizufügen.

Dem Antrag ist ein umsetzbares zeitliches Realisierungskonzept mit Investitions- und Finanzierungsplanung beizulegen.

Sollte eine Vorwegbeleihung des Grundstücks (also die Belastung des Grundbuches vor Eigentumsumschreibung) notwendig werden, ist die Höhe der aufzunehmenden Fremdmittel im Angebot mit anzugeben.

Die Entscheidung über den Verkauf/ die Vermietung trifft die Gemeindevertretung der Gemeinde Ostseebad Karlshagen. Die Gemeinde ist nicht verpflichtet an den Höchstbietenden oder überhaupt zu verkaufen/ vermieten. Die Gemeinde bleibt in ihrer Vergabeentscheidung frei.

Die Angebotseröffnung ist nicht öffentlich.

Die am Gebotsverfahren beteiligten Erwerbsinteressenten/ Mietinteressenten werden über den Ausgang des Verfahrens benachrichtigt. Entstandene Kosten werden nicht erstattet.

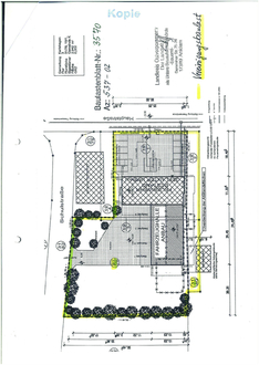
Anlage

1 Lageplan

2 Eintragungen Baulastenverzeichnis