Titel Logo
Der Usedomer Norden
Ausgabe 9/2023
Amtliche Bekanntmachungen
Zurück zur vorigen Seite
Zurück zur ersten Seite der aktuellen Ausgabe

Bekanntmachung der Gemeinde Peenemünde über die Auslegung des Vorentwurfes der 7. Änderung des Flächennutzungsplanes i.V.m. B-Plan Nr. 14 „Photovoltaik-Freiflächenanlage Flugplatz Peenemünde“

Frühzeitige Beteiligung der Öffentlichkeit gem. § 3 Abs. 1 Baugesetzbuch (BauGB)

Die Gemeinde Peenemünde hat auf ihrer Sitzung am 27.07.2023 den Vorentwurf der 7. Änderung des Flächennutzungsplanes i.V.m. B-Plan Nr. 14 „Photovoltaik-Freiflächenanlage Flugplatz Peenemünde“ sowie die zugehörige Begründung in der Fassung von Juni 2023 gebilligt und zur öffentlichen Auslegung bestimmt.

Gemäß § 8 Abs. 2 BauGB sind Bebauungspläne aus dem Flächennutzungsplan zu entwickeln. Das Plangebiet im Flächennutzungsplan der Gemeinde Peenemünde ist nicht als Sondergebiet „Photovoltaik“ sondern als „Konversionsfläche“ bzw. teilweise als „Grünfläche“ ausgewiesen.

Daher besteht die Notwendigkeit, den Flächennutzungsplan für diese beiden Planungsgebiete im Parallelverfahren zu ändern. Mit dem 7. Änderungsverfahren zum Flächennutzungsplan sollen nun mehr vier Sondergebiete „Photovoltaik“ und ein Sondergebiet „Lager“ anstelle von „Konversionsfläche“ bzw. „Grünfläche“ ausgewiesen werden. In diesem Zusammenhang erfolgen zudem Korrekturen der ausgewiesenen Grenzen des Naturschutzgebietes zur Anpassung an den tatsächlichen Bestand.

Erforderliche Ausgleichsmaßnahmen sowie die dafür notwendigen Flächen werden festgesetzt. Im Zuge des Bauleitplanverfahrens ist zu klären, inwieweit Einwirkungen auf die Schutzgüter bestehen.

Aufgrund des Änderungsgegenstands werden die Grundzüge der bisherigen Flächennutzungsplanung berührt, sodass kein vereinfachtes Verfahren gemäß § 13 BauGB durchgeführt werden kann.

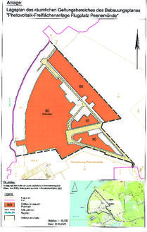
Der Geltungsbereich ist auf beigefügtem Übersichtplan ersichtlich, hat eine Größe von rd. 120 ha und beinhaltet die Flurstücke 9/1, 9/2 und 1/71 der Flur 4 der Gemarkung Peenemünde.

Die erforderliche frühzeitige Unterrichtung der Öffentlichkeit gemäß § 3 Abs. 1 BauGB wird hiermit durchgeführt.

Die frühzeitige Beteiligung der Behörden und sonstigen Träger öffentlicher Belange gemäß § 4 Abs. 1 BauGB und die Abstimmung mit den Nachbargemeinden gemäß § 2 Abs. 2 BauGB wird gleichzeitig durchgeführt.

Der Vorentwurf der 7. Änderung des Flächennutzungsplanes für den Bereich des B-Planes Nr. 14 „Photovoltaik-Freiflächenanlage Flugplatz Peenemünde“, bestehend aus der Planzeichnung und der Begründung in der Fassung von Juni 2023 liegt gemäß § 3 Abs. 1 BauGB in der Zeit

von Montag, den 02.10.2023 bis Montag, den 06.11.2023

(jeweils einschließlich)

im Bauamt des Amtes Usedom-Nord in 17454 Zinnowitz, Möwenstraße 01 in Zimmer Nr. 103/105 während folgender Zeiten:

Montag bis Freitag

von 8.30 Uhr bis 12.00 Uhr und

Montag und Mittwoch

von 13.30 Uhr bis 15.00 Uhr und

Dienstag

von 13.30 Uhr bis 16.00 Uhr und

Donnerstag

von 13.30 Uhr bis 18.00 Uhr

zu jedermanns Einsicht öffentlich aus.

Während dieser Auslegungsfrist kann jedermann Auskunft über die Inhalte des Vorentwurfs erhalten und Anregungen und Hinweise schriftlich oder während der Dienststunden zur Niederschrift vorbringen. Darüber hinaus können innerhalb der Auslegungsfrist Stellungnahmen auch per Post (Bauamt des Amtes Usedom-Nord in 17454 Zinnowitz, Möwenstraße 01) eingereicht werden.

Nicht fristgerecht abgegebene Stellungnahmen können bei der Beschlussfassung über die 7. Änderung des Flächennutzungsplanes unberücksichtigt bleiben.

Ergänzend sind die Bekanntmachung sowie die Auslegungs- und Beteiligungs-unterlagen im Internet auf der Homepage des Amtes Usedom-Nord unter https://amtusedomnord.de unter dem Link „Bekanntmachungen“, „Peenemünde“ eingestellt. Zusätzlich sind die Unterlagen im lnternetportal des Landes M-V unter https://blan.geodaten-mv.de/Bauleitplaene einsehbar.

Die Behörden und sonstigen Träger öffentlicher Belange werden von der Auslegung unterrichtet. Es liegen noch keine umweltbezogenen Informationen und Stellungnahmen vor.

Es wird darauf hingewiesen, dass eine Vereinigung im Sinne des § 4 Absatz 3 Satz 1 Nummer 2 des Umwelt-Rechtsbehelfsgesetzes in einem Rechtsbehelfsverfahren nach § 7 Absatz 2 des Umwelt-Rechtsbehelfsgesetzes gemäß § 7 Absatz 3 Satz 1 des Umwelt-Rechtsbehelfsgesetzes mit allen Einwendungen ausgeschlossen ist, die sie im Rahmen der Auslegungsfrist nicht oder nicht rechtzeitig geltend gemacht hat, aber hätte geltend machen können. (§ 3 Abs. 3 BauGB)

Peenemünde, den 29.08.2023

Anlage

Übersichtsplan mit Abgrenzung des Geltungsbereichs