Titel Logo
Mitteilungsblatt des Amtes Landhagen
Ausgabe 5/2023
Amtliche Bekanntmachungen
Zurück zur vorigen Seite
Zurück zur ersten Seite der aktuellen Ausgabe

Bekanntmachung der Gemeinde Hinrichshagen

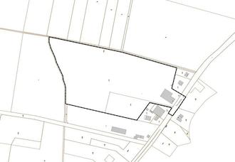
Geltungsbereich

Bebauungsplan Nr. 6 „Chausseesiedlung West“ der Gemeinde Hinrichshagen

Erneute öffentliche Auslegung des Entwurfs gemäß § 3 Abs. 2 BauGB i.V.m. § 4a Abs. 3 BauGB

Der geänderte Entwurf des Bauungsplans Nr. 6 „Chausseesiedlung West“ der Gemeinde Hinrichshagen bestehend aus der Planzeichnung (Teil A) und dem Text (Teil B) mit Stand 05/2022, die Begründung einschl. des Umweltberichts sowie den Fachgutachten wurde auf der Gemeindevertretersitzung am 12.04.2023 gebilligt und wird gemäß § 3 Abs. 2 BauGB i.V.m. § 4a Abs. 3 BauGB öffentlich ausgelegt.

Der Geltungsbereich umfasst vollständig das Flurstück 9/1 und teilweise die Flurstücke 8/5 und 11 der Flur 3 in der Gemarkung Hinrichshagen. Er befindet sich ganz im Nordosten des Gemeindegebietes und grenzt unmittelbar an die Nachbarstadt Greifswald. Des Weiteren grenzt im Norden, Westen und Süden an landwirtschaftliche Nutzflächen des Außenbereichs. Im Osten grenzt er an die Landestraße L 261 „Chausseestraße“ sowie straßenseitige Bestandsbebauung im Südosten bzw. Nordosten. Dabei handelt es sich um Wohnbebauung (Nordosten) und eine ehemalige Werkstatt für Kraftfahrzeuge, welche zum Wohnen umgenutzt wurde (Südosten).

Der Geltungsbereich umfasst eine Fläche von ca. 5,4 ha.

Ziele der angestrebten Planung sind:

  • Errichtung einer Tagespflege, eines Seniorenwohnheims und betreutem Wohnen

  • Errichtung eines Internats zur Unterbringung von Auszubildenden oder Studierenden als eigener Fachkräftenachwuchs mit 30 Plätzen

  • Errichtung eines Schullandheims mit Werkstätten mit ca. 25 Plätzen und Haltung therapeutischer Nutztiere

  • Errichtung eines Ärztehauses

  • Errichtung von ca. 14 Wohneinheiten in Form gemeinschaftlichen Wohnens als Mitarbeiterwohnen

  • die Schaffung qualifizierter Grünstrukturen zur Einhaltung umweltrechtlicher Belange und Aufwertung der Aufenthaltsqualität sowie als geeigneter Übergang in den Außenbereich

Die öffentliche Auslegung erfolgt

vom 30.05.2023 bis zum 15.06.2023

im Amt Landhagen, Fachbereich Bauen und Liegenschaften, Theodor-Körner-Straße 36, 17498 Neuenkirchen während folgender Zeiten zu jedermanns Einsicht:

montags:

08.00 Uhr bis 12.00 Uhr und 13.00 Uhr bis 15.30 Uhr

dienstags:

08.00 Uhr bis 12.00 Uhr und 13.00 Uhr bis 18.00 Uhr

mittwochs:

08.00 Uhr bis 12.00 Uhr

donnerstags:

08.00 Uhr bis 12.00 Uhr und 13.00 Uhr bis 17.00 Uhr

Die Einsichtnahme wird gemäß § 4a, Absatz 4 BauGB auch auf der lnternetseite des Amtes Landhagen: www.landhagen.de unter dem Menüpunkt „Bekanntmachungen und Ortsrecht“ sowie auf der Internetseite des Bau- und Planungsportals M-V: https://bplan.geodaten-mv.de/Bauleitplaene über den Menüpunkt „Gesamtsuche“ gewährleistet.

Folgende umweltrelevante Informationen liegen vor:

-

Stellungnahme des Staatlichen Amts für Landwirtschaft und Umwelt Vorpommern vom 15.12.2021 mit dem Hinweis, dass keine wasserwirtschaftlichen Anlagen und keine naturschutzrechtlichen Belange, die durch das Staatliche Amt für Landwirtschaft und Umwelt Vorpommern (StALU VP) zu vertreten sind, berührt werden.

Weitere Stellungnahme vom 25.08.2022: In Entfernungen zwischen 1.200 m bis ca. 2.000 m in Umgebung des Plangebiets befinden sich verschiedene bauliche Anlagen mit immissionsschutzrechtlicher Relevanz.

-

Stellungnahme des Wasser- und Bodenverbandes "Ryck-Ziese" vom 23.12.2021 mit Aussagen zu den an das Plangebiet angrenzenden Vorflutern (Gräben) und den Bestimmungen zur Einleitung von Regenwasser in diese.

Weitere Stellungnahme vom 05.09.2022: Vorflut 24 B/002 kann aufgrund der geplanten Hecke und des Bewuchses durch Bäume auf der gegenüberliegenden Seite nicht mehr unterhalten werden.

-

Stellungnahme der 50 Hertz Transmission GmbH mit dem Hinweis, dass von der in der Nähe befindlichen Hochspannungsleitung Schallemissionen ausgehen.

-

Stellungnahme des Naturschutzbundes Deutschland vom 14.01.2022 mit Hinweisen zur Erstellung von artenschutzrechtlichen Fachbeiträgen, Kartierungen und Empfehlungen für die Einbindung umweltfreundlicher Festsetzungen.

-

Stellungnahme vom Landkreis Vorpommern-Greifswald vom 20.10.2020, Sachgebiet Immissionsschutz: Prüfung von Emissionen durch benachbarte KfZ-Werkstatt

Weitere Stellungnahme vom Landkreis Vorpommern-Greifswald vom 10.01.2022, Sachgebiet Bodenschutz mit Hinweisen, dass keine Altlasten für das Plangebiet bekannt sind; Sachgebiet Wasserwirtschaft mit Hinweisen zur Prüfung rechtlicher Bestimmungen der angrenzenden Oberflächengewässer und Grundwässer, Hinweisen zu Wasserrückhalt und der Aufforderung nach Konkretisierung der Art und Anzahl an geplanten Tierbeständen auf dem Schulbauernhof; Sachgebiet Immissionsschutz mit Aufforderung zur Prüfung von evtl. Schallschutzmaßnahmen; Sachgebiet Katastrophenschutz mit Hinweis, dass keine Kampfmittelbelastung bekannt ist; Sachgebiet Naturschutz mit Aufforderung zur Erstellung eines Umweltberichts, Anforderungen an den Biotopschutz, Hinweisen zur Eingriffs- und Ausgleichsbilanzierung und rechtlichen Bestimmungen zum Artenschutz.

Weitere Stellungnahme vom 24.08.2022: Sachgebiet Untere Wasserbehörde; Die Entwässerung kann nach vorgelegtem Planungsstand nicht gewährleistet werden. Zu berücksichtigen sind ferner die Hinweise der Stellungnahme vom 10.01.2022 (siehe oben)

Weitere Stellungnahme vom 08.11.2022: Sachgebiet Untere Wasserbehörde mit Hinweisen auf besondere Aufmerksamkeit zur Herrichtung einer Dungplatte für den Schulbauernhof und damit verbundener rechtlicher Auflagen, vorhandener Drainagen im Plangebiet und deren Handhabung, verfahrenstechnische Regelungen bei Errichtung von Erdwärmesondenanlagen und der Gewässernutzung.

Weitere Stellungnahme vom 12.09.2022, Sachgebiet Untere Naturschutzbehörde: Ablehnung der vorgesehenen Kompensationsmaßnahme M 2 „Anlage eines naturnahen Standgewässers“, Hinweise zur Berücksichtigung einer Allee entlang der Straßenverkehrsfläche Landesstraße L 261 „Chausseestraße“.

Während der Auslegungsfrist können von jedermann Stellungnahmen zum Planentwurf während der Dienststunden zur Niederschrift erklärt oder schriftlich vorgebracht werden.

Hinweis: Gemäß § 3 Abs. 2 Satz 2 BauGB können nicht fristgerecht abgegebene Stellungnahmen bei der Beschlussfassung über den Bebauungsplan unberücksichtigt bleiben.

Hinrichshagen, den 27.04.2023

Veröffentlicht im „Amtlichen Mitteilungsblatt“ Nr. 5 vom 19.05.2023