Titel Logo
Malchiner Generalanzeiger
Ausgabe 10/2023
Amtliche Bekanntmachungen
Zurück zur vorigen Seite
Zurück zur ersten Seite der aktuellen Ausgabe

Amtliche Bekanntmachung der Stadt Malchin

Bekanntmachung der Satzung über den Bebauungsplan Nr. 30 „Salemer Höhe“ der Stadt Malchin gemäß § 10 Absatz 3 Baugesetzbuch (BauGB)

Die Stadtvertretung der Stadt Malchin hat am 07.12.2022 in öffentlicher Sitzung den Bebauungsplan Nr. 30 „Salemer Höhe“ der Stadt Malchin, bestehend aus der Planzeichnung (Teil A) und dem Text (Teil B) als Satzung beschlossen.

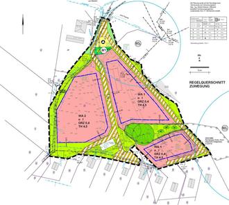
Der Geltungsbereich des Bebauungsplanes Nr. 30 „Salemer Höhe“ befindet sich im Nordosten der Stadt Malchin, im Zentrum der Ortslage Salem und umfasst südlich des unbefestigten öffentlichen Weges Grünflächen mit der Zweckbestimmung Parkanlagen.

Das Plangebiet befindet sich auf den Flurstücken 24/2, 25/11 (als Teilfläche), 35/17 und 35/18 in der Gemarkung Salem, Flur 1 umfasst eine Fläche von ca. 0,88 ha und wird wie folgt begrenzt:

Norden:

südliche Asphaltkante der Zufahrt zum Plangebiet von der öffentlichen Stadtstraße

Osten:

westliche Flurstücksgrenze des Flurstückes 23/2 in der Flur 1

Süden:

nördliche Flurstücksgrenze der Flurstücke 24/8, 24/23, 24/19, 24,30, 35/11 bis 35/14, 35/21 und 35/22 in der Flur 1

Westen:

östliche Flurstücksgrenze der Flurstücke 28, 30/2, 31/2 und 35/19 in der Flur 1

Die Satzung über den Bebauungsplan Nr. 30 „Salemer Höhe“ wird hiermit gemäß § 10 Abs. 3 BauGB ortsüblich bekannt gemacht.

Die Satzung über den Bebauungsplan Nr. 30 „Salemer Höhe“ der Stadt Malchin tritt i.V.m. der Hauptsatzung der Stadt Malchin mit Ablauf des Erscheinungstages dieser Bekanntmachung in Kraft.

Der Bebauungsplan Nr. 30 „Salemer Höhe“ der Stadt Malchin wird mit der Begründung, einschließlich dem Umweltbericht als gesonderten Teil der Begründung und der zusammenfassenden Erklärung, sowie die der Planung zugrunde liegenden Rechtsgrundlagen vom Tag der Veröffentlichung dieser Bekanntmachung in der Stadt Malchin, Rathaus / Amt für Bau-und Liegenschaften, Zimmer 308 in 17139 Malchin, Am Markt 1, während folgender Dienstzeiten:

Montag

08:30 Uhr bis 12:00 Uhr und von

13:30 Uhr bis 15:30 Uhr

Dienstag

08:30 Uhr bis 12:00 Uhr und von

13:30 Uhr bis 17:30 Uhr

Donnerstag

08:30 Uhr bis 12:00 Uhr und von

13:30 Uhr bis 15:30 Uhr

Freitag

08:30 Uhr bis 12:00 Uhr

zu jedermanns Einsicht bereitgehalten. Auf Verlangen wird über den Inhalt des Bebauungs-plans Nr. 30 „Salemer Höhe“ der Stadt Malchin Auskunft erteilt.

Gemäß § 10a Abs. 2 BauGB ist die Einsichtnahme des Bebauungsplanes Nr. 30 der Stadt Malchin ebenfalls über die Homepage der Satdt Malchin unter www.malchin.de unter der Rubrik „Wirtschaft & Bauen / Bauleitpläne / Rechtskräftig“ möglich.

Es wird gemäß § 215 Abs. 2 BauGB darauf hingewiesen, dass

unbeachtlich werden, wenn sie nicht innerhalb von einem Jahr seit dieser Bekanntmachung schriftlich gegenüber der Stadt Malchin, 17139 Malchin, Am Markt 1 geltend gemacht worden sind. Dabei ist der Sachverhalt, der die Verletzung oder den Mangel begründen soll, nach § 215 Abs. 1 BauGB darzulegen.

Auf die Vorschriften der § 44 Abs. 3 Satz 1 und 2 sowie Abs. 4 BauGB wird hingewiesen. Danach erlöschen Entschädigungsansprüche für nach den §§ 39 bis 42 BauGB eingetretene Vermögensnachteile, wenn nicht innerhalb von drei Jahren nach Ablauf des Kalenderjahres, in dem die Vermögensnachteile eingetreten sind, die Fälligkeit des Anspruches herbeigefügt wird.

Des Weiteren wird auf § 5 Abs 5 der Kommunalverfassung für das Land Mecklenburg-Vorpommern hingewiesen, wonach ein Verstoß gegen Verfahrens- und Formvorschriften, die in diesem Gesetz enthalten oder aufgrund dieses Gesetzes erlassen worden sind, nach Ablauf eines Jahres seit der öffentlichen Bekanntmachung nicht mehr geltend gemacht werden können. Eine Verletzung von Anzeige-, Genehmigungs- oder Bekanntmachungsvorschriften kann abweichend hiervon stets geltend gemacht werden.

Innerhalb der Jahresfrist muss der Verstoß schriftlich unter Bezeichnung der verletzten Vorschrift und der Tatsache, aus der sich der Verstoß ergibt, gegenüber der Stadt Malchin geltend gemacht werden.

Malchin, den 11.07.2023

Übersichtskarte Bebauungsplan Nr. 30 „Salemer Höhe“ der Stadt Malchin, unmaßstäblich

Bebauungsplan Nr. 30 „Salemer Höhe“ der Stadt Malchin, Planzeichnung unmaßstäblich