Titel Logo
Strelitzer Echo
Ausgabe 1/2026
Bekanntmachungen der Stadt Neustrelitz
Zurück zur vorigen Seite
Zurück zur ersten Seite der aktuellen Ausgabe

Ausschreibung der Baugrundstücke im Wohngebiet Littenstraße

Die Stadt Neustrelitz veräußert die folgenden Baugrundstücke im Wohngebiet Littenstraße:

Baugrundstück: Littenstraße Nr. 7

Gemarkung Neustrelitz, Flur 20, Flurstücke 138/27, 138/32 & Flur 21, Flurstücke 43/4 & 44/1

Grundstücksgröße:

735 m²

Kaufpreis (Grund & Boden):

36.750,00 €

Anteilige Vermessungskosten:

654,21 €

Erschließungsbeitrag:

23.686,85 €

Schmutz- & Niederschlagswasserbeitrag:

1.916,88 €

Baugrundstück: Littenstraße Nr. 8

Gemarkung Neustrelitz, Flur 20, Flurstück 138/30 & 138/64

Grundstücksgröße:

556 m²

Kaufpreis (Grund & Boden):

27.800,00 €

Anteilige Vermessungskosten:

521,12 €

Erschließungsbeitrag:

17.918,21 €

Schmutz- & Niederschlagswasserbeitrag:

1.358,77 €

Baugrundstück: Littenstraße Nr. 10

Gemarkung Neustrelitz, Flur 20, Flurstück 138/31 & 138/65

Grundstücksgröße:

714 m²

Kaufpreis (Grund & Boden):

35.700,00 €

Anteilige Vermessungskosten:

731,30 €

Erschließungsbeitrag:

23.010,08 €

Schmutz- & Niederschlagswasserbeitrag:

1.530,90 €

Baugrundstück: Littenstraße Nr. 31

Gemarkung Neustrelitz, Flur 20, Flurstück 138/58 & 138/63

Grundstücksgröße:

862 m²

Kaufpreis (Grund & Boden):

43.100,00 €

Anteilige Vermessungskosten:

793,34 €

Erschließungsbeitrag:

25.652,69 €

Schmutz- & Niederschlagswasserbeitrag:

2.248,10 €

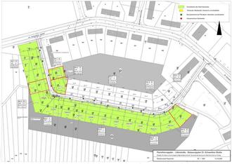
Weiterhin wird eine allgemeine Gebühr für die Vor- und Nachbereitung der gesamten Kaufabwicklung i.H.v. 150,60 € erhoben. Zusätzlich zum vorstehend benannten Kaufpreis trägt der Erwerber alle weiteren mit dem Ankauf verbundenen Kosten (Notar, Grundbucheintragungen, Grunderwerbsteuer etc.). Die Lage der Grundstücke ist aus dem anliegenden Lageplan ersichtlich. Das Baurecht ergibt sich aus dem Bebauungsplan Nr. „69(1)/12-19 Dr.-Schwentner-Straße“. Alle ausgeschriebenen Baugrundstücke sind mit einer Stadtvilla zu bebauen.

Außerdem weisen wir darauf hin, dass dieses Gebiet mit Fernwärme versorgt wird, woraus sich gemäß § 6 der Fernwärmesatzung der Stadt Neustrelitz grundsätzlich die Pflicht ergibt, sich an die diesbezügliche Leitung anzuschließen und den Wärmeenergiebedarf des Gebäudes vollständig daraus zu decken (Anschluss- und Benutzungszwang).

Die Baugrundstücke Nr. 1, 3 und 5 werden zu einem späteren Zeitpunkt, nach der Untersuchung durch den Munitionsbergungsdienst zur Veräußerung ausgeschrieben.

Den aktuellen Stand der Reservierungen und Verkäufe können Sie auf der Internetseite www.neustreliz.de unter dem Reiter „Bauland und Immobilien“ einsehen.

Ansprechpartner bei Rückfragen sind Herr Pust und Frau Werner vom Referat Liegenschaften.

Sie erreichen das Referat Liegenschaften unter der Mailadresse liegenschaften@neustrelitz.de oder unter den Rufnummern 03981 4534- 280 und – 284.