Titel Logo
Müritz-Anzeiger
Ausgabe 6/2023
Amtliche Bekanntmachungen
Zurück zur vorigen Seite
Zurück zur ersten Seite der aktuellen Ausgabe

Widmung einer öffentlichen Straße (An de Wisch) in der Stadt Röbel/Müritz

Verfügung der Stadt Röbel/Müritz

Mit Beschluss der Stadtvertretung Röbel/Müritz vom 07.03.2023 (Beschlussvorlage-Nr. 25-2022-059) verfügt die Stadt Röbel/Müritz nachfolgende Straßenwidmung:

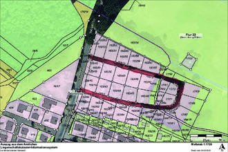
„Die Stadt Röbel/Müritz widmet gemäß § 7 Abs. 1 des Straßen- und Wegegesetzes des Landes Mecklenburg-Vorpommern (StrWG M-V) die Flurstücke 125/44, 125/49, 182/60, 183,41, 183/52, 183/59, 184/7, 184/12 der Flur 21 und die Flurstücke 17/60 und 17/70 der Flur 22 in der Gemarkung Röbel/Müritz dem öffentlichen Verkehr. Die benannten Flurstücke sind auf dem beiliegendem Lageplan rot gekennzeichnet.“

Die Straße wird entsprechend § 3 Abs. 3a StrWG M-V als Ortsstraße eingestuft. Träger der Straßenbaulast ist die Stadt Röbel/Müritz. Die oben aufgeführte Verfügung wird hiermit gemäß § 7 Abs. 2 StrWG M-V öffentlich bekanntgemacht. Der oben aufgeführte Beschluss der Stadtvertretung Röbel/Müritz einschließlich seiner Anlagen kann während der Sprechzeiten in der Stadtverwaltung Röbel/Müritz eingesehen werden.

Rechtsbehelfsbelehrung

Gegen diese Verfügung kann innerhalb eines Monats nach ihrer Bekanntgabe Widerspruch erhoben werden. Der Widerspruch ist bei der Stadt Röbel/Müritz, Marktplatz 1, 17207 Röbel/Müritz, schriftlich oder zur Niederschrift einzulegen.

i.A. M. Siegmund
Leiterin Ordnungsamt