Titel Logo
Recknitz-Trebeltal Kurier
Ausgabe 3/2025
Amtliche Bekanntmachungen
Zurück zur vorigen Seite
Zurück zur ersten Seite der aktuellen Ausgabe

Amtliche Bekanntmachung der Gemeinde Eixen

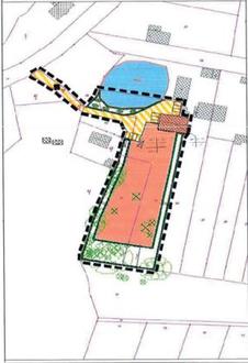
Bebauungsplan Nr. 2 „Am Dorfteich“ der Gemeinde Eixen für die Ortslage Eixen

hier:

Bekanntmachung des Bebauungsplanes Nr. 2 „Am Dorfteich“

Die Gemeindevertretung der Gemeinde Eixen hat in der Sitzung am 04.11.2021 den Bebauungsplan Nr. 2 „Am Dorfteich“ der Gemeinde Eixen für die Ortslage Eixen im beschleunigten Verfahren als Satzung beschlossen. Die Begründung wurde in der vorliegenden Fassung vom September 2021 gebilligt. Der Geltungsbereich ist der als Anlage beigefügten Übersichtskarte zu entnehmen.

Mit der Bekanntmachung tritt der Bebauungsplan Nr. 2 für die Ortslage Eixen im beschleunigten Verfahren gemäß § 10 Abs. 3 BauGB, § 13a i.V.m. § 13b BauGB und der Hauptsatzung der Gemeinde Eixen in Kraft.

Der Bebauungsplan Nr. 2 „Am Dorfteich“ der Gemeinde Eixen für die Ortlage Eixen wird mit der Begründung auf Dauer im Amt Recknitz-Trebeltal, Bauamt, Karl Marx Straße 18 in 18465 Tribsees während der Sprechzeiten zur jedermann Einsicht bereitgehalten und ist ebenfalls auf der Homepage des Amtes unter https://www.recknitz-trebeltal.de/seite/355752/bebauungspl%C3%A4ne.html und auf der Internetseite im Bau- und Planungsportal M-V und https://bplan.geodaten-mv.de/Bauleitplaene einsehbar. Auf Verlangen wird über den Bebauungsplan Nr. 2 „Am Dorfteich" der Gemeinde Eixen für die Ortlage Eixen im beschleunigten Verfahren Auskunft erteilt.

Es wird auf die Vorschriften des § 44 Abs. 3 Satz 1 und 2 sowie Abs. 4 BauGB hingewiesen. Danach erlöschen Entschädigungsansprüche für die nach den §§ 39 bis 42 BauGB eingetretene Vermögensnachteile, wenn nicht innerhalb von drei Jahren nach Ablauf des Kalenderjahres, in dem die Vermögensnachteile eingetreten sind, die Fälligkeit des Anspruchs herbeigeführt wird.

Unbeachtlich werden gemäß § 215 Abs. 1 BauGB:

-

eine nach § 214 Abs. 1 Satz 1 Nr. 1 bis 3 BauGB beachtliche Verletzung, der dort bezeichneten Form- und Verfahrensvorschriften,

-

eine unter Berücksichtigung des § 214 Abs. 2 BauGB beachtliche Verletzung der Vorschriften über das Verhältnis des Bebauungsplans Nr.2 „Am Dorfteich" der Gemeinde Eixen für die Ortslage Eixen und

-

nach § 214 Abs. 3 Satz 2 BauGB beachtliche Mängel des Abwägungsvorschlags, wenn sie nicht innerhalb eines Jahres seit Bekanntmachung schriftlich gegenüber der Gemeinde Eixen unter Darlegung des die Verletzung begründeten Sachverhalts geltend gemacht worden sind.

Des Weiteren wird auf § 5 Abs. 5 der Kommunalverfassung für das Land Mecklenburg-Vorpommern (KV M-V) hingewiesen, wonach ein Verstoß gegen Verfahrens- und Formvorschriften, die in diesem Gesetz enthalten oder aufgrund dieses Gesetzes erlassen worden sind, nach Ablauf eines Jahres seit der öffentlichen Bekanntmachung nicht mehr geltend gemacht werden können (außer bei Anzeige-, Genehmigungs- oder Bekanntmachungsvorschriften). Innerhalb der Jahresfrist muss der Verstoß schriftlich unter Bezeichnung der verletzten Vorschrift und der Tatsache, aus der sich der Verstoß ergibt, gegenüber der Gemeinde geltend gemacht werden.

Eixen, 25.02.2025