Titel Logo
Usedomer Amtsblatt
Ausgabe 3/2023
Amtliche Bekanntmachungen
Zurück zur vorigen Seite
Zurück zur ersten Seite der aktuellen Ausgabe

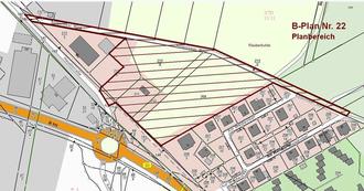
Bekanntmachung der Gemeinde Ostseebad Koserow über die Auslegung zur frühzeitigen Öffentlichkeitsbeteiligung gem. § 3 Abs. 1 BauGB zum Bebauungsplan Nr. 22 „Sondergebiet Einzelhandel und Wohnen am Kölpinseer Weg"

Die Gemeindevertretung hat in ihrer Sitzung am 24.10.2022 die Aufstellung des Bebauungsplanes Nr. 22 „Sondergebiet Einzelhandel und Wohnen am Kölpinseer Weg" beschlossen.

Der Geltungsbereich befindet sich im östlichen Siedlungsbereich der Gemeinde zwischen Kölpinseer Weg und Hauptstraße (nördlich des Kreisverkehrs B 111).

Er umfasst in der Gemarkung Koserow folgende Flurstücke der Flur 7: 209, 210, 211, 212/6 sowie 206/23, 207/17, 212/3, 212/5, 213/3 (je anteilig) sowie der Flur 8: 140 sowie 141/4, 143 (je anteilig).

Die frühzeitige Beteiligung der Öffentlichkeit erfolgt durch die Auslegung des Vorentwurfs zum Bebauungsplan sowie der Vorentwürfe zu den erforderlichen dazugehörigen Dokumenten (Begründung, Umweltbericht, u.a.).

Die Auslegung erfolgt

von Montag, den 27.03.2023 bis Freitag, den 28.04.2023

(jeweils einschließlich)

im Bauamt des Amtes Usedom Süd in 17406 Stadt Usedom, Markt 07, Zimmer 01.15, während folgender Zeiten:

montags bis dienstags

von 8.00 Uhr - 12.00 Uhr

donnerstags

von 8.00 Uhr - 12.00 Uhr

und 14.00 Uhr - 18.00 Uhr und

freitags

von 8.00 Uhr - 12.00 Uhr

Weiterhin kann die Bekanntmachung mit den vollständig zur Auslage bestimmten Unterlagen auf der Internetseite des Amtes Usedom Süd unter http://www.amtusedom.de und dort unter dem Link „Bekanntmachungen“ bei der Stadt Usedom eingesehen werden.

Sie erhalten die Gelegenheit zur Information über die allgemeinen Ziele und Zwecke der Planung sowie zu Hinweisen und Anregungen zur Planung. Hinweise und Anregungen können am Ort der Auslegung zur Niederschrift gebracht oder durch eine Stellungnahme, die an das Amt Usedom Süd, Fachdienst Bau zu richten ist, mitgeteilt werden.

René König
Bürgermeister