Titel Logo
Kleinseenlotse
Ausgabe 3/2025
Amtliche Bekanntmachungen
Zurück zur vorigen Seite
Zurück zur ersten Seite der aktuellen Ausgabe

Amtliche Bekanntmachung der Stadt Wesenberg gemäß dem Baugesetzbuch (BauGB), in der Fassung vom 3. November 2017 (BGBl. I S. 3634), zuletzt geändert durch Artikel 3 des Gesetzes vom 12.07.2023 (BGBl. I Nr. 184 vom 14.07.2023).

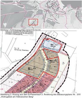
3. Änderung des Bebauungsplans Nr. 3/91 „Wohngebiet am Hölkowschen Berg“

hier:

Bekanntmachung der erneuten öffentlichen Auslegung des überarbeiteten Entwurfes nach § 3 Abs. 2 BauGB

Der von der Stadtvertretung der Stadt Wesenberg in der Sitzung am 13.07.2023 gebilligte und zur Auslegung bestimmte Entwurf der 3. Änderung des Bebauungsplans Nr. 3/91 „Wohngebiet am Hölkowschen Berg“ wurde in der Zeit vom 08.08.2023 bis zum 11.09.2023 im Amt Mecklenburgische Kleinseenplatte öffentlich ausgelegt. Zudem konnten die Unterlagen auf der Homepage des Amtes sowie auf dem Bau- und Planungsportal Mecklenburg-Vorpommern eingesehen werden. Aufgrund der eingegangenen Stellungnahmen wurde der Entwurf überarbeitet und der Geltungsbereich der 3. Änderung des Bebauungsplans Nr. 3/91 „Wohngebiet am Hölkowschen Berg“ erweitert. Der neue Entwurf des Bebauungsplans und die Begründung werden in der Zeit

vom 31.03.2025 bis zum 14.04.2025

erneut im Internet veröffentlicht. Der Inhalt dieser Bekanntmachung und die nach § 3 Abs. 2 Satz 1 BauGB auszulegenden Unterlagen sind unter der Adresse www.amt-mecklenburgische-kleinseenplatte.de/bekanntmachungen/f-und-b-plaene einzusehen und über das Bau- und Planungsportal Mecklenburg-Vorpommern zugänglich.

Zusätzlich liegen die Unterlagen nach § 3 Abs. 2 Satz 2 im Amt Mecklenburgische Kleinseenpatte, Rudolf-Breitscheid-Straße 24 in 17252 Mirow während der nachfolgenden Zeiten zu jedermanns Einsicht:

Dienstag

von 09:00 Uhr bis 12:00 Uhr und

von 13:00 Uhr bis 17:00 Uhr

Mittwoch

von 09:00 Uhr bis 12:00 Uhr und

Donnerstag

von 09:00 Uhr bis 12:00 Uhr und

von 13:00 Uhr bis 16:00 Uhr

Freitag

von 07:30 Uhr bis 12:00 Uhr

(außerhalb dieser Zeiten nach Vereinbarung) öffentlich aus.

Der räumliche Geltungsbereich der 3. Änderung des Bebauungsplans umfasst die Gemarkung Wesenberg Flur 15 Flurstücke 16/26 und 17/7, Flur 3 Flurstücke 90/8, 90/13, 90/15, 90/21 [teilweise], 90/23, 90/24, 90/26, 90/28 [teilweise], 90/29, 90/30, 90/34, 90/35, 90/36, 90/38, 90/39, 90/40, 90/41, 90/43, 90/44, 90/45, 90/46, 90/47, 90/48, 91/2, 91/5 [teilweise], 91/6, 91/10, 91/11, 91/12, 91/7, 91/14, 91/15, 91/16, 91/17, 91/18, 92/18 [teilweise], 92/30, 92/31, 92/32, 92/33 und 92/34.

Von einer Umweltprüfung wird abgesehen, weil der Bebauungsplan nach § 13a BauGB der Innenentwicklung dient.

Während der Dauer der Veröffentlichung können Stellungnahmen abgeben werden. Die Stellungnahmen sollen elektronisch übermittelt werden; können bei Bedarf aber auch auf anderem Weg abgegeben werden. Nicht fristgerecht abgegebene Stellungnahmen können bei der Beschlussfassung über 3. Änderung des Bebauungsplans Nr. 3/91 „Wohngebiet am Hölkowschen Berg“ unberücksichtigt bleiben, wenn die Gemeinde den Inhalt nicht kannte und nicht hätte kennen müssen und deren Inhalt für die Rechtmäßigkeit des Bebauungsplans nicht von Bedeutung ist.

Wesenberg, den 05.03.2025

Steffen Rißmann
Bürgermeister