Titel Logo
Wittenburger Stadt- und Landbote
Ausgabe 9/2023
Amtlicher Teil
Zurück zur vorigen Seite
Zurück zur ersten Seite der aktuellen Ausgabe

Amtliche Bekanntmachung der Stadt Wittenburg

Über den Verkauf von Gewerbeflächen im Geltungsbereichs des Bebauungsplans Nummer 18 der Stadt Wittenburg „Auf der Heide“

hier:

Aufforderung zur Angebotsabgabe

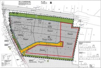
Die Stadt Wittenburg bietet im Rahmen eines Bieterverfahrens den Verkauf von Gewebeflächen an. Das Gewerbegebiet umfasst die Flurstücken 3/1, 4/7, 4/8, 5/4 und 5/5, der Flur 10 in der Gemarkung Wittenburg und befindet sich im Geltungsbereich des rechtskräftigen Bebauungsplans Nr. 18 der Stadt Wittenburg „Auf der Heide“ südlich der Bundesautobahn A24.

Zum Verkauf steht entweder eine insgesamt ca. 51.285 m² große, unbebaute Teilfläche oder weitere Teilflächen aus der ca. 51.285 m² großen Teilfläche des Bebauungsplans Nr. 18 (siehe Bild rot markiert). Noch kann eine freie Parzellierung und Anordnung zu der veräußernden Teilfläche vorgenommen werden.

Es wird an dieser Stelle darauf hingewiesen, dass es sich hierbei nicht um ein förmliches festgelegtes Vergabeverfahren handelt, sondern um ein Immobilienangebot der Stadt Wittenburg.

Interessenten werden geben, ihr schriftliches Angebot bis zum 30.09.2023 einzureichen.

Bitte beachten Sie, die im Exposé unter Punkt 5.1 und 5.3 (S. 7 - 9) aufgeführten Angaben und Bedingungen zu Ihrer Bewerbung.

Das Exposé kann auf der Internetseite des Amtes Wittenburg unter https://www.amt-wittenburg.de/Verwaltung/Bekanntmachungen/Allgemeine-Bekanntmachungen/ eingesehen werden.

Wittenburg, den 31.07.2023

Christian Greger
Bürgermeister
Stadt Wittenburg