Titel Logo
Grabower Amtsanzeiger
Ausgabe 11/2025
Amtlicher Teil
Zurück zur vorigen Seite
Zurück zur ersten Seite der aktuellen Ausgabe

Amtliche Bekanntmachung der Gemeinde Eldena

Vorhabenbezogener Bebauungsplan Nr. 3 „Biogasanlage Eldena“, Gemarkung Eldena; Flur 4

Hier: Bekanntmachung des Aufstellungsbeschlusses gem. § 2 Abs. 1 BauGB

Die Gemeindevertretung Eldena hat in ihrer öffentlichen Sitzung am 18.09.2025 die Aufstellung des vorhabenbezogenen Bebauungsplanes Nr. 3 „Biogasanlage Eldena“ mit Vorhaben- und Erschließungsplan, Gemarkung Eldena, Flur 4; Teilbereiche der Flurstücke 240/2; 240/17; 240/4, 240/16; 240/18; 240/19 und 240/24 beschlossen. Dieser Beschluss wird hiermit ortsüblich bekanntgemacht.

Ziel der Planung ist, die bauplanungsrechtlichen Voraussetzungen für die Erweiterung der bestehenden Biogasanlage und somit eine erhöhte Rohbiogasproduktion zu schaffen.

Der Bebauungsplan wird im Regelverfahren aufgestellt. Gemäß § 2 Abs. 4 BauGB ist für die Belange des Umweltschutzes eine Umweltprüfung durchzuführen, welche in einem Umweltbericht beschrieben und bewertet werden.

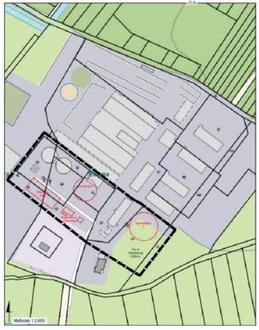
Die Abgrenzung des räumlichen Geltungsbereiches sowie die räumliche Lage ist dem nachfolgend abgebildeten Übersichtsplan zu entnehmen. Maßgebend für den Geltungsbereich ist allein die zeichnerische Festsetzung im Bebauungsplan selbst.

Elena, den 20.10.2025

gez. Oliver Kann
Bürgermeister
Gemeinde Eldena