Titel Logo
Grabower Amtsanzeiger
Ausgabe 11/2025
Amtlicher Teil
Zurück zur vorigen Seite
Zurück zur ersten Seite der aktuellen Ausgabe

Amtliche Bekanntmachung der Gemeinde Eldena

9. Änderung des Flächennutzungsplans i.V.m. dem vorhabenbezogenen Bebauungsplan Nr. 3 „Biogasanlage Eldena“, Gemarkung Eldena; Flur 4

Hier: Bekanntmachung des Aufstellungsbeschlusses gem. § 2 Abs. 1 BauGB

Die Gemeindevertretung Eldena hat in ihrer öffentlichen Sitzung am 18.09.2025 die 9. Änderung des Flächennutzungsplanes i.V.m. dem vorhabenbezogenen Bebauungsplanes Nr.

3 „Biogasanlage Eldena“ beschlossen. Dieser Beschluss wird hiermit ortsüblich bekanntgemacht.

Ziel der Planung ist, die bauplanungsrechtlichen Voraussetzungen für die Erweiterung der Biogasanlage zu schaffen.

Die 9. Änderung des Flächennutzungsplans wird im Regelverfahren durchgeführt. Der vorhabenbezogene Bebauungsplan sowie die Änderung des Flächennutzungsplanes werden im Parallelverfahren aufgestellt. Gemäß § 2 Abs. 4 BauGB ist für die Belange des Umweltschutzes eine Umweltprüfung durchzuführen, welche in einem Umweltbericht beschrieben und bewertet werden.

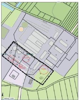
Die Abgrenzung des räumlichen Geltungsbereiches sowie die räumliche Lage ist dem nachfolgend abgebildeten Übersichtsplan zu entnehmen. Maßgebend für den Geltungsbereich ist allein die zeichnerische Festsetzung im Bebauungsplan respektive im Flächennutzungsplan selbst.

Eldena, den 20.10.2025

gez. Oliver Kann
Bürgermeister
Gemeinde Eldena