Titel Logo
Grabower Amtsanzeiger
Ausgabe 7/2025
Amtlicher Teil
Zurück zur vorigen Seite
Zurück zur ersten Seite der aktuellen Ausgabe

Amtliche Bekanntmachung der Gemeinde Gorlosen

Einstellung des Aufstellungsverfahrens zum Bebauungsplan „Solarpark Dadow“ der Gemeinde Gorlosen

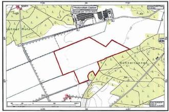
Die Gemeinde Gorlosen hat am 13.05.2025 in öffentlicher Sitzung beschlossen, den förmlichen Beschluss zur Aufstellung des Bebauungsplans „Solarpark Dadow“ vom 30.05.2022 (Beschluss-Nr.: GV-18 015/2022) aufzuheben. Das Planverfahren wird eingestellt. Der ehemalige Geltungsbereich ist im Übersichtsplan dargestellt.

Darstellung des Geltungsbereiches der Beschlussfassung vom 30.05.20022

Gorlosen, den 13.06.2025

gez. Bach
Bürgermeister der Gemeinde Gorlosen

Hinweis: In gleicher Sitzung wurde eine Neuaufstellung eines Bebauungsplanes für ein Gebiet zur Errichtung einer AGRI-PV-Freiflächenanlage beschlossen. Die formelle Bekanntmachung dazu erfolgt in einer späteren Ausgabe des Amtsanzeigers.