Titel Logo
Uns Amtsblatt
Ausgabe 5/2023
Amt Schönberger Land
Zurück zur vorigen Seite
Zurück zur ersten Seite der aktuellen Ausgabe

Bekanntmachung des Staatlichen Amtes für Landwirtschaft und Umwelt Westmecklenburg

Staatliches Amt

für Landwirtschaft und Umwelt

Westmecklenburg

-Flurbereinigungsbehörde-

Aktenzeichen: 5433.3-74-34507

Flurbereinigungsverfahren Maurine

Landkreis Nordwestmecklenburg

Gemeinden Roduchelstorf, Siemz-Niendorf und Stadt Schönberg

Öffentliche Bekanntmachung für die Gemeinden Roduchelstorf, Siemz-Niendorf und die Stadt Schönberg

Ausfertigung

Feststellung der Ergebnisse der Wertermittlung

In dem o. a. vereinfachten Flurbereinigungsverfahren werden gemäß § 32 Flurbereinigungsgesetz (FlurbG) vom 16. März 1976 (BGBI I S. 546) mit späteren Änderungen die Ergebnisse der Wertermittlung der Verfahrensgrundstücke in der Gestalt, die sie durch Änderungen aufgrund von begründeten Einwänden gefunden haben, festgestellt.

Gründe:
  1. Im Anhörungstermin am 29. März 2023 wurde den Teilnehmern der Wertermittlungsrahmen vorgestellt und die Ergebnisse der Wertermittlung an Hand der ausgelegten Unterlagen (Wertermittlungsrahmen, drei Wertermittlungskarten [alte Grundstücke], drei Bodenschätzungskarten, Grundstücksmarktbericht 2021 und Bodenrichtwertkarten 2021 des Landkreises Nordwestmecklenburg) erläutert.

  2. Von einem Beteiligten wurden begründete Einwände gegen die ausgelegten und erläuterten Wertermittlungsergebnisse vorgebracht und sind in Ergebnisse der Wertermittlung übernommen worden.

Die Änderungen betreffen die Grundstücke:

Diese Änderungen befinden sich in Form einer Kartendarstellung in der Anlage zu dieser Feststellung der Ergebnisse der Wertermittlung und sind Bestandteil dieser ebengenannten Feststellung.

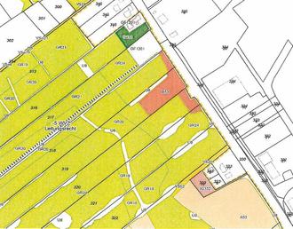
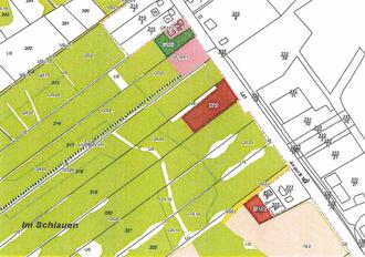
Am nordöstlichen Rand der Flurstücke 318, 320 und 321 Flur 1 Schönberg (an der Marienstraße) wurden Teilflächen der vorgenannten Flurstücke ursprünglich mit der Wertklassenbezeichnung „Landwirtschaftliche Betriebsfläche mit der Wertverhältniszahl (WVZ) 73 kurz „B73" bewertet. Die Wertermittlung wird dahingehend geändert, dass diese Bewertung in Grünland mit der WVZ 24 (kurz: „GR24") bei den obengenannten Flurstücken geändert wird.

Anordnung der sofortigen Vollziehung

Die sofortige Vollziehung der Feststellung der Ergebnisse der Wertermittlung wird angeordnet mit der Folge, dass Rechtsbehelfe gegen sie keine aufschiebende Wirkung haben.

Gründe:

Sie beruht auf § 80 Abs. 2 Satz 1 Nr. 4 Verwaltungsgerichtsordnung (VwGO) und soll vermeiden, dass durch Widersprüche der im öffentlichen Interesse und im Interesse der Mehrheit der Beteiligten liegende Fortgang des Flurbereinigungsverfahrens gehemmt wird, wodurch für die Mehrheit der Beteiligten schwerwiegende Nachteile entstehen könnten, indem u. a. Vorarbeiten für die Zuweisung der Abfindungsgrundstücke nicht in dem Maße gefördert würden, wie es für den angestrebten Erfolg in wirtschaftlicher und landeskultureller Hinsicht nötig ist.

Rechtsbehelfsbelehrung:

Gegen die Feststellung der Ergebnisse der Wertermittlung kann innerhalb eines Monats nach Bekanntgabe Widerspruch beim Staatlichen Amt für Landwirtschaft und Umwelt Westmecklenburg, Sitz Schwerin erhoben werden.

Gegen die sofortige Vollziehung kann gemäß § 80 Abs. 5 VwGO beim Oberverwaltungsgericht Mecklenburg-Vorpommern, Sitz Greifswald ein Antrag auf Wiederherstellung der aufschiebenden Wirkung gestellt werden.

Im Auftrag

gez. Wilfried Reiners

(LS)

Leiter der Abteilung integrierte ländliche Entwicklung
Ausfertigungsvermerk:

Die Ausfertigung stimmt mit der Urschrift überein und wurde zum Zwecke der Bekanntgabe erstellt.

Ausgefertigt:

Schwerin, den 4. Mai 2023

Anlage: Begründete Einwände

Auszug aus der geänderten Wertermittlungskarte 2 von 3 mit dem Stand der Wertermittlung zu einem Teil der Flur 1 von Schönberg vom 29.03.2023 (Auslegungszeitraum und Anhörungstermin)

Auszug aus der Wertermittlungskarte 2 von 3 mit dem Stand der Überarbeitung und hiermit festgestellten Wertermittlung zu einem Teil der Flur 1 von Schönberg, inhaltlich nur die Flurstücke 318, 320 und 321 betreffend (Stand: 4. Mai 2023)

Im Internet unter www.schoenberger-land.de/Bekanntmachungen mit Ablauf des 09.05.2023 bekannt gemacht.