Titel Logo
Hagenower Kommunalanzeiger
Ausgabe 1/2023
Bekanntmachung der Gemeinde Gammelin
Zurück zur vorigen Seite
Zurück zur ersten Seite der aktuellen Ausgabe

Bekanntmachung der Gemeinde Gammelin

über die Aufstellung des vorhabenbezogenen Bebauungsplans Nr. 2 „Photovoltaikanlage südöstlich von Bakendorf“ nach § 2 Abs. 1 BauGB und die Durchführung der frühzeitigen Öffentlichkeitsbeteiligung nach § 3 Abs. 1 BauGB

Die Gemeindevertretung der Gemeinde Gammelin hat auf ihrer Sitzung am 19.12.2022 die Aufstellung des vorhabenbezogenen Bebauungsplans Nr. 2 „Photovoltaikanlage südöstlich von Bakendorf“ gemäß § 12 BauGB i.V.m. § 2 Abs. 1 BauGB beschlossen.

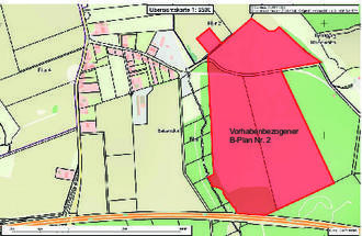
Das Plangebiet befindet sich nördlich der Bundesautobahn BAB 24 und südwestlich der Gemeindegrenze von Bandenitz auf Teilflächen der Flurstücke 145 und 148 sowie auf den Flurstücken 146, 147/3 und 149 der Flur 1 und auf einer Teilfläche des Flurstücks 18 sowie auf dem Flurstück 19 der Flur 2 der Gemarkung Bakendorf (siehe Übersichtskarte).

Es hat eine Größe von ca. 34 ha.

Die Trägerin des Vorhabens, die mea Solar GmbH, Obotritenring 40 in 19053 Schwerin, eine Tochtergesellschaft der WEMAG AG Schwerin, hat bei der Gemeinde Gammelin den Antrag auf Aufstellung des vorhabenbezogenen Bebauungsplans Nr. 2 "Photovoltaikanlage südöstlich von Bakendorf" gestellt. Mit der Aufstellung des vorhabenbezogenen Bebauungsplans Nr. 2 sollen die planungsrechtlichen Voraussetzungen zur geplanten Errichtung einer Freiflächenphotovoltaikanlage geschaffen werden.

Des Weiteren hat die Gemeindevertretung auf ihrer Sitzung am 19.12.2022 den Vorentwurf des vorhabenbezogenen Bebauungsplans Nr. 2 für die frühzeitige Beteiligung der Öffentlichkeit und die frühzeitige Behördenbeteiligung gemäß § 3 Abs. 1 BauGB und § 4 Abs. 1 BauGB bestimmt.

Die frühzeitige Beteiligung der Öffentlichkeit erfolgt im Rahmen einer öffentlichen Auslegung der Vorentwurfsunterlagen.

Der Vorentwurf des vorhabenbezogenen Bebauungsplans Nr. 2 „Photovoltaikanlage südöstlich von Bakendorf“ mit Begründung und Umweltbericht liegt in der Zeit

vom 23.01.2023 bis zum 24.02.2023

im Amt Hagenow-Land, Fachdienst Bauen und Planen, Zimmer 212, Bahnhofstraße 25 in 19230

Hagenow während der Dienststunden

Montag

nach Vereinbarung

Dienstag

8.30 - 12.00 Uhr und 14.00 - 18.00 Uhr

Mittwoch

nach Vereinbarung

Donnerstag

8.30 - 12.00 Uhr und 14.00 - 16.00 Uhr

Freitag

8.30 - 12.00 Uhr

für jede Person zur Einsicht öffentlich aus.

Die Vorentwurfsunterlagen sind zusätzlich während des o.g. Auslegungszeitraums im Internet, auf dem Bau- und Planungsportal des Landes Mecklenburg-Vorpommern, unter https://bplan.geodaten-mv.de/Bauleitplaene einsehbar. Jede Person kann Stellungnahmen mündlich, schriftlich oder zur Niederschrift im Amt Hagenow-Land, FD Bauen und Planung, Bahnhofstraße 25 in 19230 Hagenow sowie elektronisch (info@amt-hagenow-land.de) während der Auslegungsfrist bis zum 24.02.2023 abgeben.

Es wird darauf hingewiesen, dass nicht oder verspätet abgegebene Stellungnahmen bei der weiteren Beschlussfassung im Planverfahren zur Aufstellung des vorhabenbezogenen Bebauungsplans Nr. 2 gemäß § 4a Abs. 6 BauGB unberücksichtigt bleiben können, sofern die Gemeinde Gammelin deren Inhalt nicht kannte und nicht hätte kennen müssen und deren Inhalt für die Rechtmäßigkeit des vorhabenbezogenen Bebauungsplans Nr. 2 nicht von Bedeutung ist.

Die Verarbeitung personenbezogener Daten erfolgt auf Grundlage des § 3 BauGB in Verbindung mit Art. 6 Abs. 1 Buchstabe e Datenschutz-Grundverordnung (DSGVO) und dem Datenschutzgesetz für das Land Mecklenburg-Vorpommern (DSG M-V). Sofern Sie Ihre Stellungnahme ohne Absender abgeben, erhalten Sie keine Mitteilung über das Ergebnis der Abwägung.

Bürgermeister