Titel Logo
Uns Dörper
Ausgabe 25/2025
Gemeinde Geschendorf
Zurück zur vorigen Seite
Zurück zur ersten Seite der aktuellen Ausgabe

Bekanntmachung der Gemeinde Geschendorf

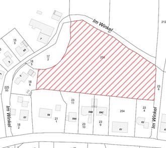
Aufstellung des Bebauungsplanes Nr. 11 für das Gebiet "Schmiedekoppel, nördlich der Grundstücke Dorfstraße 57 - 63, östlich des Grundstückes Im Winkel 2, südlich und westlich der Straße Im Winkel"

Die Gemeindevertretung der Gemeinde Geschendorf hat in ihrer Sitzung am 18.09.2025 beschlossen, den Bebauungsplan Nr. 11 für das Gebiet "Schmiedekoppel, nördlich der Grundstücke Dorfstraße 57 - 63, östlich des Grundstückes Im Winkel 2, südlich und westlich der Straße Im Winkel" aufzustellen.

Dieser Beschluss wird hiermit bekannt gemacht.

Die vorherige Bekanntmachung des Aufstellungsbeschlusses wird durch diese ersetzt.

Es wird darauf hingewiesen, dass die Gemeindevertretung der Gemeinde Geschendorf gleichzeitig beschlossen hat, den Bebauungsplan Nr. 11 im beschleunigten Verfahren nach § 13a BauGB ohne Durchführung einer Umweltprüfung aufzustellen.

Geschendorf, den 24.11.2025

Gemeinde Geschendorf
Der Bürgermeister
gez. Stefan Tiegs