Titel Logo
Informationen aus dem Amt Kirchspielslandgemeinden Eider
Ausgabe 24/2025
Amtlicher Teil
Zurück zur vorigen Seite
Zurück zur ersten Seite der aktuellen Ausgabe

Verkaufsanzeige

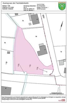
Gemeinde Barkenholm

Verkauft wird eine Grünfläche: Gemarkung Barkenholm, Flur 4, Flurstück 27/1 und 27/2.

Fläche ist insgesamt 1.771 qm. Leitungen der Versorger sind in der Straße verlegt.

Das Mindestgebot liegt bei 35.000 €.

Angebote können bis zum 31.01.2026 beim Amt KLG Eider – Frau Soldwedel – Mail: ulrike.soldwedel@amt-eider.de eingereicht werden.

Barkenholmer Bürgerinnen / Bürger oder Verwandtschaft bekommen Vorrang.

Bebauung muss binnen 36 Monaten erfolgen und binnen 48 Monaten fertig gestellt sein.

Erlaubt ist der Bau eines Einfamilienhauses, bebaubar gem. § 34 BauGB

Notarkosten trägt Käufer /-in