Titel Logo
Informationen aus dem Amt Kirchspielslandgemeinden Eider
Ausgabe 5/2026
Amtlicher Teil
Zurück zur vorigen Seite
Zurück zur ersten Seite der aktuellen Ausgabe

Örtliche Bekanntmachung der Gemeinde Krempel

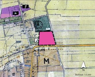
Die Abbildung zeigt die Änderung Flächennutzungsplan (neu).

Aufstellung der 24. Änderung des Flächennutzungsplanes der Gemeinden Lehe, Lunden und Krempel

Die Gemeindevertretung der Gemeinde Krempel hat in ihrer Sitzung am 10.02.2026 beschlossen, für das Gebiet der Gemeinde Lehe "nördlich der alten B5, östlich Schulstraße und Denkmal und südlich des Deichweges" die 24. Änderung des Flächennutzungsplanes aufzustellen. Es ist beabsichtigt, hier ein neues Dorfgemeinschaftshaus (Multifunktionsgebäude mit Feuerwehrgerätehaus) zu errichten. Es wird folgendes Planungsziel verfolgt: Ausweisung der Fläche als „Fläche für den Gemeinbedarf“.

Dieser Beschluss wird hiermit bekanntgemacht.

Hennstedt, 20.02.2026

Amt Kirchspielslandgemeinden Eider
Der Amtsdirektor
Im Auftrag
Ulrike Warda

Veröffentlicht im Info-Blatt des Amtes KLG Eider Nr. 5 am 06.03.2026 sowie auf der Homepage des Amtes KLG Eider – Amtliche Bekanntmachungen