Titel Logo
Informationen aus dem Amt Kirchspielslandgemeinden Eider
Ausgabe 6/2026
Amtlicher Teil
Zurück zur vorigen Seite
Zurück zur ersten Seite der aktuellen Ausgabe

Örtliche Bekanntmachung der Gemeinden Lehe, Lunden und Krempel

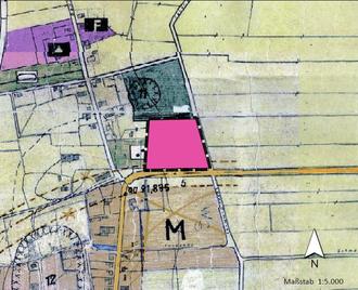
Öffentlichkeitsbeteiligung und Beteiligung von Kindern und Jugendlichen zur Aufstellung der 14. Änderung des Flächennutzungsplanes der Gemeinden Lehe, Lunden und Krempel für das Gebiet "nördlich der alten B5, östlich Schulstraße und Denkmal und südlich des Deichweges" für die Gemeinde Lehe (Multifunktionsgebäude mit Feuerwehrgerätehaus).

Die Gemeinden Lehe, Lunden und Krempel beabsichtigen die Aufstellung der 14. Änderung des gemeinsamen Flächennutzungsplanes der Gemeinden für das Gebiet " nördlich der alten B5, östlich Schulstraße und Denkmal und südlich des Deichweges " der Gemeinde Lehe. Ziel der Planung ist die Ausweisung der Fläche als „Fläche für den Gemeinbedarf“.

Gemäß § 3 Baugesetzbuch ist die Öffentlichkeit möglichst frühzeitig über die allgemeinen Ziele und Zwecke der Planung zu unterrichten; ihnen ist Gelegenheit zur Äußerung und Erörterung zu geben. Die Gemeinden Lehe, Lunden und Krempel lädt daher alle an der Bauleitplanung Interessierten (hierzu zählen nicht nur Erwachsene, sondern auch Kinder und Jugendliche) zu einer öffentlichen Versammlung ein am

Dienstag, den 24. März 2026, um 19.00 Uhr,

im Feuerwehrgerätehaus der Gemeinde Lehe,

Schulstraße 20, 25774 Lehe

Im Rahmen dieser Versammlung wird nach Darlegung der Ziele und Zwecke der Planvorstellungen der Gemeinden Lehe, Lunden und Krempel allen Interessierten Gelegenheit zur Äußerung und Erörterung gegeben. Erste Planungsunterlagen können bei dieser Versammlung eingesehen werden. Es wird darauf aufmerksam gemacht, dass diese Bürgerbeteiligung nur einmal durchgeführt wird. Nach entsprechender Beschlussfassung durch die Gemeindevertretung schließt sich zu einem späteren Zeitpunkt das öffentliche Auslegungsverfahren an, in dem ebenfalls Anregungen von jedermann vorgebracht werden können.

Hennstedt, 26.02.2026

Amt Kirchspielslandgemeinden Eider
Der Amtsdirektor
Im Auftrag
Gez. Ulrike Warda

Veröffentlicht im Info-Blatt des Amtes KLG Eider Nr. 6 am 20.03.2026 sowie auf der Internetseite des Amtes KLG – Amtliche Bekanntmachunge