Veröffentlichung im Internet und öffentliche Auslegung der Planunterlagen gem. § 3 Abs. 2 BauGB
Der Verbandsgemeinderat Daaden-Herdorf hat in seiner Sitzung am 20.03.2025 die Durchführung der Veröffentlichung im Internet und öffentliche Auslegung der Planunterlagen gem. § 3 Abs. 2 BauGB zur 5. Änderung des Flächennutzungsplanes für den Bereich „Friedhof Weitefeld-Oberdreisbach“ der Ortsgemeinde Weitefeld beschlossen.
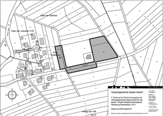
Inhalt der Flächennutzungsplanänderung ist die Darstellung einer „Grünfläche mit der Zweckbestimmung: Friedhof“ u. einer „Öffentlichen Parkfläche/Parkplatz“ statt derzeit ausgewiesenen landwirtschaftlichen Flächen.
Geltungsbereich der Flächennutzungsplanänderung
Der Geltungsbereich der Flächennutzungsplanänderung grenzt als unmittelbare Verlängerung an die vorhandene Wohnbebauung „Pudelwiese“ in der Gemarkung Oberdreisbach und liegt östlich des Gemeindegebietes. Das Planänderungsgebiet grenzt im Norden, Osten und Süden an landwirtschaftliche Nutz- und Grünlandflächen an.
Es sind sämtliche Grundstücke in der Flur 3 der Gemarkung Oberdreisbach betroffen, die im beigefügten Übersichtsplan dick gestrichelt umrandet sind.
Veröffentlichung im Internet und öffentliche Auslegung der Planunterlagen
Die Planunterlagen zur 5. Änderung des Flächennutzungsplanes (Übersichtsplan, Planzeichnung, Begründung mit integriertem Umweltbericht u. Anlagen) sowie die nach Einschätzung der Verbandsgemeinde wesentlichen, bereits vorliegenden umweltbezogenen Stellungnahmen werden gem. § 3 Abs. 2 BauGB auf der Homepage der Verbandsgemeindeverwaltung Daaden-Herdorf (www.daaden-herdorf.de - Bürgerservice - Bauen & Umwelt - Flächennutzungsplan -Flächennutzungsplanänderungen im Verfahren) von Montag, 17.11.2025 bis einschließlich Freitag, 19.12.2025 veröffentlicht. Darüber hinaus liegen die Planunterlagen in dieser Zeit durch eine öffentliche
Auslegung bei der Verbandsgemeindeverwaltung Daaden-Herdorf, Bahnhofstraße 4, 57567 Daaden (Fachbereich 3 - Bauen und Umwelt, 1. OG, Zimmer 106), von
| Montag bis Mittwoch | 08:00 Uhr bis 12:00 Uhr |
| und | 13:30 Uhr bis 16:00 Uhr, |
| Donnerstag | 08.00 Uhr bis 12:00 Uhr |
| und | 14:00 Uhr bis 18:00 Uhr, |
| Freitag | 08:00 Uhr bis 12:00 Uhr, |
zu jedermanns Einsicht aus.
Stellungnahmen aus der Öffentlichkeit können bis zum 19.12.2025 bei der Verbandsgemeindeverwaltung Daaden-Herdorf abgegeben werden.
Die nach Einschätzung der Gemeinde wesentlichen umweltbezogenen Stellungnahmen sowie die vorliegenden umweltbezogenen Informationen liegen bereits vor:
| Art der Umweltinformation/ Schutzgut | Quelle |
| 1. Begründung mit integriertem Umweltbericht (Stand 11/2025) mit Aussagen zur Berücksichtigung umweltbezogener Auswirkungen auf die Schutzgüter Mensch, menschliche Gesundheit, Tiere, Pflanzen, Biologische Vielfalt, Fläche u. Boden, Wasser, Luft u. Klima, Landschaft, Kultur- u. Sachgüter, Schutzgebiete u. Schutzobjekte sowie Wirkungsgefüge; Artenschutz allgemein und Darstellung der naturschutzfachlichen Eingriffs- und Ausgleichsregelung | Planunterlagen Stadt-Land-plus GmbH, Boppard |
| 2. Naturschutz Natura 2000-Verträglichkeitsvorprüfung (Stand 10/2025) mit Aussagen zu den mögl. Konflikten des FFH-Gebietes „Feuchtgebiete und Heiden des Hohen Westerwaldes“ u. des Vogelschutzgebietes „Westerwald“ Biotop- u. Nutzungstypenplan (Stand 10/2025) mit Darstellung u. Abgrenzung der versch. Biotoptypen Ergebnis der Wiesenkartierung (Stand 10/2025) | Planunterlagen Stadt-Land-plus GmbH, Boppard |
| 3. Artenschutz | Stellungnahme Kreisverwaltung Altenkirchen vom 27.02.2023 |
| 4. Biotopschutz | Stellungnahme Kreisverwaltung Altenkirchen vom 27.02.2023 |
| 5. Wasserwirtschaft | Stellungnahme Kreisverwaltung Altenkirchen vom 27.02.2023, Verbandsgemeindewerke Daaden vom 07.02.2023 |
| 6. Boden, Baugrund sowie Bergbau | Stellungnahmen Kreisverwaltung Altenkirchen vom 27.02.2023, Landesamt für Geologie u. Bergbau vom 01.03.2023 |
| 7. Archäologie | Stellungnahme Generaldirektion Kulturelles Erbe, Direktion Landesarchäologie, Außenstelle Koblenz vom 01.02.2023 |
| 8. Trassen/Leitungen | Stellungnahmen Deutsche Telekom Technik GmbH vom 22.02.2023, PLEdoc GmbH vom 01.02.2023, Amprion GmbH vom 09.02.2023 |
Die aufgeführten Stellungnahmen und Informationen werden zusammen mit den Planunterlagen veröffentlicht.
In Anwendung des § 3 Abs. 2 S. 5 BauGB sind der Inhalt der Bekanntmachung und die nach § 3 Abs. 2 S. 1 BauGB zu veröffentlichen Unterlagen ebenso über das zentrale Internetportal des Landes „GeoPortal.rlp“ zugänglich.
Alle DIN-Normen und Vorschriften (Gesetze, Verordnungen, Erlasse), auf die in den Planunterlagen verwiesen wird, werden bei der Verbandsgemeindeverwaltung Daaden-Herdorf zu jedermanns Einsicht bereitgehalten.
Hinweise:
| a) | Während der Dauer der Veröffentlichungsfrist können Stellungnahmen zu der Planung abgegeben werden. Gem. § 3 Abs. 2 S. 4 Nr. 2 BauGB sollen diese elektronisch abgegeben werden. Bei Bedarf können Stellungnahmen jedoch auch schriftlich, mündlich, zur Niederschrift oder in sonstiger geeigneter Textform (z.B. Fax) bei der Verbandsgemeindeverwaltung Daaden-Herdorf abgegeben werden. |
| b) | Nicht fristgerecht abgegebene Stellungnahmen können bei der Beschlussfassung über die Flächennutzungsplanänderung unberücksichtigt bleiben, sofern die Verbandsgemeinde deren Inhalt nicht kannte und nicht hätte kennen müssen und deren Inhalt für die Rechtmäßigkeit des Bauleitplans nicht von Bedeutung ist (§ 3 Abs. 2 S. 4 BauGB, § 4a Abs. 5 BauGB). |
| c) | Ebenfalls wird darauf hingewiesen, dass gem. § 3 Abs. 3 BauGB eine Vereinigung im Sinne des § 4 Abs. 3 S. 1 Nr. 2 des Umwelt-Rechtsbehelfsgesetzes (UmwRG) in einem Rechtsbehelfsverfahren nach § 7 Abs. 2 UmwRG gem. § 7 Abs. 3 S. 1 UmwRG mit allen Einwendungen ausgeschlossen ist, die sie im Rahmen der Auslegungsfrist nicht oder nicht rechtzeitig geltend gemacht hat, aber hätte geltend machen können. |