Titel Logo
Mitteilungsblatt Hamm Sieg
Ausgabe 5/2024
Bekanntmachungen und Nachrichten aus der Verbandsgemeinde und den Ortsgemeinden
Zurück zur vorigen Seite
Zurück zur ersten Seite der aktuellen Ausgabe

Öffentliche Bekanntmachung

gemäß § 2 Abs.1 Satz 2 und § 3 Abs. 2 Satz 2 Baugesetzbuch (BauGB) i.V.m. § 13 a Abs. 2 Nr. 1 und § 13 Abs. 2 und 3 (BauGB) in der Fassung der Bekanntmachung vom 03.11.2017 (BGBl. I S. 3634), zuletzt geändert durch Artikel 3 des Gesetzes vom 12.07.2023 (BGBl. I Nr. 184), über die Durchführung der öffentlichen Auslegung und der Veröffentlichung der Entwurfsunterlagen im Internet zur 1. Änderung des Bebauungsplans Nr. 22 „Ortsmitte II“ der Ortsgemeinde Hamm (Sieg).

Der Ortsgemeinderat der Ortsgemeinde Hamm (Sieg) fasste in seiner Sitzung am 27.03.2023 den Beschluss zur 1. Änderung des Bebauungsplans Nr. 22 „Ortsmitte II“ im beschleunigten Verfahren gemäß § 13 a Abs. 1 Satz 1 i.V.m. § 2 Abs. 1 Satz 1 BauGB ohne Durchführung einer Umweltprüfung gemäß § 2 Abs. 4 BauGB. Dieser Beschluss wird hiermit gemäß § 2 Abs. 1 Satz 2 BauGB öffentlich bekannt gemacht. Darüber hinaus wurde die Durchführung der öffentlichen Auslegung gemäß § 3 Abs. 2 BauGB beschlossen.

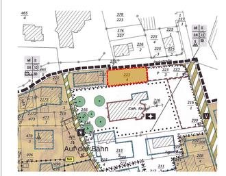
Die Gebietsabgrenzung für dieses Verfahren ergibt sich aus dem beigefügten Übersichts-plan durch eine rot-unterbrochene Umrandung.

Von der Änderung ist lediglich das Grundstück Gemarkung Hamm, Flur 4, Flurstück 223/4 betroffen. Dieses Grundstück wurde bei der Aufstellung des Bebauungsplans in den 1990er Jahren offenbar irrtümlich als Gemeinbedarfsfläche mit der Zweckbestimmung “Kirche” festgesetzt. Seitens der Eigentümer ist die Bebauung mit einem Wohnhaus geplant. Diesem Ansinnen möchte der Ortsgemeinderat entsprechen und durch diese Änderung die bauplanungsrechtlichen Voraussetzungen schaffen.

Die öffentliche Auslegung der Entwurfsunterlagen, bestehend aus dem Entwurf der Planurkunde, der textlichen Festsetzungen und als Anlage hierzu die Begründung, erfolgt gemäß § 3 Abs. 2 Satz 2 BauGB für die Zeit vom 12. Februar 2024 bis 14. März 2024 einschließlich.

Die genannten Unterlagen können im Büro der Verbandsgemeindeverwaltung Hamm (Sieg), Fachbereich Bauen, Zimmer 44, Lindenallee 2, 57577 Hamm (Sieg) eingesehen werden.

Die Einsichtnahme kann während der nachfolgenden Öffnungszeiten der Verbandsgemeindeverwaltung Hamm (Sieg) erfolgen:

montags, dienstags, mittwochs, donnerstags und freitags von 8:30 Uhr bis 12 Uhr

sowie montags von 14 Uhr bis 16 Uhr und

donnerstags von 14 Uhr bis 18 Uhr.

Dienstags und mittwochs ist in der Zeit von 14 Uhr bis 16 Uhr eine Einsichtnahme nach Terminabsprache mit der Bauverwaltung möglich.

Gemäß § 3 Abs. 2 Satz 1 BauGB sind die auszulegenden Unterlagen und nach § 3 Abs. 2 Satz 5 BauGB zusätzlich der Inhalt dieser Bekanntmachung im Internet zu veröffentlichen.

Diese Bekanntmachung und die auszulegenden Unterlagen sind während der Auslegungsdauer vom 12. Februar 2024 bis 14. März 2024 einschließlich, im Internet auf der Seite der Verbandsgemeinde Hamm (Sieg) veröffentlicht und können unter der Adresse

https://www.hamm-sieg.de/Bauleitplanung

eingesehen werden.

Es wird darauf hingewiesen, dass Stellungnahmen während der Dauer der Veröffentlichungsfrist per E-Mail an rathaus@hamm-sieg.de gerichtet werden können. Die Stellungnahmen können aber auch schriftlich oder zur Niederschrift vorgebracht werden.

Gemäß § 4a Abs. 5 BauGB wird darauf hingewiesen, dass nicht fristgerecht abgebebene Stellungnahmen bei der Beschlussfassung über den Bebauungsplan unberücksichtigt bleiben können, sofern die Verbandsgemeinde deren Inhalt nicht kannte und nicht hätte kennen müssen und deren Inhalt für die Rechtmäßigkeit des Bauleitplans nicht von Bedeutung ist.

Während der Veröffentlichungsfrist im Internet wird gem. § 4 a Abs. 2 BauGB gleichzeitig die Beteiligung der Behörden und der sonstigen Träger öffentlicher Belange nach § 4 Abs. 2 BauGB durchgeführt.

Hamm (Sieg), den 02.02.2024
Ortsgemeinde Hamm (Sieg)
Bernd Niederhausen
-Ortsbürgermeister-