Titel Logo
Aktuell - Mitteilungsblatt für die VG Kirchen (Sieg)
Ausgabe 1/2025
Amtliche Bekanntmachungen
Zurück zur vorigen Seite
Zurück zur ersten Seite der aktuellen Ausgabe

Ortsübliche Bekanntmachung

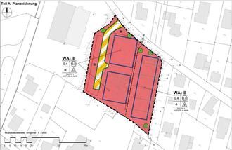
Skizze Übersichtsplan Geltungsbereich Bebauungsplan „Wohnanlage Barbarastraße“

Bebauungsplan Nr. 24 „Wohnanlage Barbarastraße“ (finaler Stand zum Satzungsbeschluss)

Inkrafttreten des Bebauungsplans gem. § 10 Abs. 3 Baugesetzbuch (BauGB) Nr. 24 „Wohnanlage Barbarastraße“ der Ortsgemeinde Mudersbach

Der Rat der Ortsgemeinde Mudersbach in öffentlicher Sitzung am 12.12.2024 aufgrund von § 2 Abs. 1 BauGB, den im Regelverfahren aufgestellten Bebauungsplan Nr. 24 „Wohnanlage Barbarastraße“ als Satzung beschlossen.

Planbereich

Der geplante Geltungsbereich ergibt sich aus dem als Anlage beigefügten Lageplan und wird im Norden und im Osten durch die Barbarastraße und im Süden durch das Gelände der kommunalen Kindertagesstätte begrenzt. Es handelt sich um eine innerörtliche Brachfläche, die sich für eine zusätzliche innerörtliche Bebauung sehr gut anbietet.

Der Bebauungsplan Nr. 24 „Wohnanlage Barbarastraße“ und die örtlichen Bauvorschriften treten gem. § 10 Abs. 3 BauGB mit dieser Bekanntmachung in Kraft.

Hinweise zur Einsichtnahme in die Planunterlagen:

Die Unterlagen zur Aufstellung des Bebauungsplans werden nach Veröffentlichung dieser Bekanntmachung in Zimmer 429, dem Fachbereich 5 der Verbandsgemeindeverwaltung Kirchen, Lindenstraße 1 während der Dienstzeiten bereitgehalten. Jedermann kann den Bebauungsplan sowie seine Bestandteile (Begründung, Ziele, textliche Festsetzungen) einsehen und über ihren Inhalt Auskunft verlangen.

Weiterhin kann der Bebauungsplan mit dessen Planunterlagen zukünftig im Internet über die Homepage der Verbandsgemeinde Kirchen und im zentralen Internetportal des Landes Rheinland-Pfalz (Geoportal RLP) aufgerufen werden.

Homepage Verbandsgemeinde Kirchen:

https://www.kirchen-sieg.de/verwaltung-gremien/gemeinden/ortsgemeinde-mudersbach

Reiter: „Bebauungspläne in der Ortsgemeinde Mudersbach“

Geoportal RLP:

https://www.geoportal.rlp.de/map?LAYER[visible]=1&LAYER[querylayer]=1&WMC=20938

Hinweise auf die Verfahrens- und Formvorschriften:

Auf die Vorschriften des § 44 Abs. 3 Satz 1 und 2 BauGB über die Fälligkeit etwaiger Entschädigungsansprüche im Falle der in den §§ 39 bis 42 BauGB bezeichneten Vermögensnachteile, deren Leistung schriftlich beim Entschädigungspflichtigen zu beantragen ist, und des § 44 Abs. 4 BauGB über das Erlöschen von Entschädigungsansprüchen, wenn der Antrag nicht innerhalb der Frist von drei Jahren gestellt ist, wird hingewiesen.

Es wird weiter darauf hingewiesen, dass eine Verletzung der in § 214 Abs. 1 Satz 1 Nr. 1 bis 3 BauGB bezeichneten Verfahrens- und Formvorschriften, eine unter Berücksichtigung des § 214 Abs. 2 BauGB beachtliche Verletzung der Vorschriften über das Verhältnis des Bebauungsplans und des Flächennutzungsplans oder aber ein nach § 214 Abs. 3 Satz 2 BauGB beachtlicher Mangel des Abwägungsvorgangs nur beachtlich werden, wenn sie innerhalb eines Jahres seit dieser Bekanntmachung schriftlich gegenüber der Gemeinde unter Darlegung des die Verletzung begründenden Sachverhalts geltend gemacht worden sind.

Ferner wird darauf aufmerksam gemacht, dass Satzungen, die unter Verletzung von Verfahrens- oder Formvorschriften der rheinland-pfälzischen Gemeindeordnung (GemO RLP) zustande gekommen sind, gemäß § 24 Abs. 6 GemO ein Jahr nach der Bekanntmachung als von Anfang an als gültig zustande gekommen gelten, wenn sie nicht innerhalb dieses Jahres schriftlich, unter Bezeichnung der Tatsachen, die eine solche Rechtsverletzung begründen können, gegenüber der Ortsgemeinde Brachbach geltend gemacht worden ist.

Adresse der Ortsgemeinde Mudersbach:

Ortsgemeinde Mudersbach

Hüttenweg 2-4

57555 Mudersbach

Mudersbach, den 17.12.2024
Gez. Christian Peter
Bürgermeister der Ortsgemeinde Mudersbach