Titel Logo
Aktuell - Mitteilungsblatt für die VG Kirchen (Sieg)
Ausgabe 22/2024
Amtliche Bekanntmachungen
Zurück zur vorigen Seite
Zurück zur ersten Seite der aktuellen Ausgabe

Öffentliche Bekanntmachung Aufstellung eines Bebauungsplans Nr. 24 „Wohnanlage Barbarastraße“ der Ortsgemeinde Mudersbach

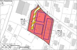
Skizze Übersichtsplan Geltungsbereich Bebauungsplan „Wohnanlage Barbarastraße“

Frühzeitige Beteiligung nach § 3 Abs. 1 Baugesetzbuch (BauGB); hier: Bürgerversammlung

Der Ortsgemeinderat Mudersbach hat am 09.02.2023 in öffentlicher Sitzung aufgrund von § 2 Abs. 1 BauGB die Aufstellung des oben genannten Bebauungsplans beschlossen und die Verwaltung beauftragt die erforderlichen Verfahrensschritte einzuleiten.

Der vorhabenbezogene Bebauungsplan wird in einem beschleunigten Verfahren nach § 13 a BauGB durchgeführt.

Im Rahmen der Aufstellung des Bebauungsplanes wird im beschleunigten Verfahren von einer Umweltprüfung nach § 2 Ab. 4 BauGB, von einem Umweltbericht nach § 2 a BauGB und von der Angabe welche Arten umweltbezogener Informationen verfügbar sind, sowie der zusammenfassenden Erklärung nach § 10a BauGB abgesehen.

Planbereich:

Der geplante Geltungsbereich ergibt sich aus dem als Anlage beigefügten Lageplan und wird im Norden und im Osten durch die Barbarastraße und im Süden durch das Gelände der kommunalen Kindertagesstätte begrenzt. Es handelt sich um eine innerörtliche Brachfläche, die sich für eine zusätzliche innerörtliche Bebauung sehr gut anbietet.

Ziel des Bebauungsplans:

Seitens der Ortsgemeinde Mudersbach besteht das Ziel, in der Gemarkung Mudersbach südlich der „Barbarastraße“ und östlich der Giebelwaldhalle eine bestehende innerörtliche Brachfläche zu überplanen, um eine an diesem Standort sinnvolle Innenentwicklung zu unterstützen.

Durch die Aufstellung des vorhabenbezogenen Bebauungsplanes Nr. 24 „Wohnanlage Barbarstraße“ sollen die Voraussetzungen zur Herstellung des geplanten neuen Wohnraums in Form von Reihenhäusern und Mehrfamilienhäusern geschaffen werden.

Das Vorhaben soll ermöglicht werden, um das Angebot an unterschiedlichen Wohnformen in der Ortsgemeinde Mudersbach verbessern zu können. Die Aufstellung des Bebauungsplanes ist zu veranlassen, um eine geordnete städtebauliche Entwicklung zu gewährleisten.

Frühzeitige Öffentlichkeitsbeteiligung

Im Zuge der frühzeitigen Öffentlichkeitsbeteiligung nach § 3 Abs. 1 BauGB wird der Entwurf des Bebauungsplans Nr. 24 „Wohnanlage Barbarastraße“ im Rahmen einer Bürgerversammlung durch den Investor und das Planungsbüro vorgestellt. Diese findet wie folgt statt:

Donnerstag, 13.06.2024 um 18 Uhr in der Giebelwaldhalle (Barbarastraße 21, 57555 Mudersbach).

Die Veranstaltung wird ca. 2 Stunden andauern. Je nach Verlauf kann es zeitlich aber auch darüber hinaus gehen. An diesem Termin besteht für jedermann die Möglichkeit Eingaben mündlich oder schriftlich einzureichen.

Wir weisen darauf hin, dass auch zu einem späteren Zeitpunkt noch Eingaben von Bürgern möglich sind. Im weiteren Verlauf erfolgt nämlich noch eine förmliche Beteiligung gem. § 3 Abs. 2 BauGB, wo noch einmal allen die Möglichkeit geboten wird Einwendungen einzubringen. Dazu wird auch wieder eine Bekanntmachung im Mitteilungsblatt erfolgen.

Mudersbach, den 22.05.2024
Gez. Christian Peter
Bürgermeister der Ortsgemeinde Mudersbach