Titel Logo
Aktuell - Mitteilungsblatt für die VG Kirchen (Sieg)
Ausgabe 38/2022
Amtliche Bekanntmachungen
Zurück zur vorigen Seite
Zurück zur ersten Seite der aktuellen Ausgabe

Ortsübliche Bekanntmachung

Inkrafttreten des Bebauungsplans gem. § 10 Abs.3 Baugesetzbuch (BauGB)

Nr. 8.1 „1. Änderung Kreiskrankenhaus und Umgebung“ der Stadt Kirchen (Sieg) im beschleunigten Verfahren nach § 13a BauGB

Der Rat der Stadt Kirchen hat am 12.09.2022 in öffentlicher Sitzung aufgrund von § 2 Abs. 1 BauGB, den im beschleunigten Verfahren nach § 13a BauGB aufgestellten Bebauungsplan „1. Änderung Kreiskrankenhaus und Umgebung“ als Bebauungsplan der Innenentwicklung mit den örtlichen Bauvorschriften als Satzung beschlossen.

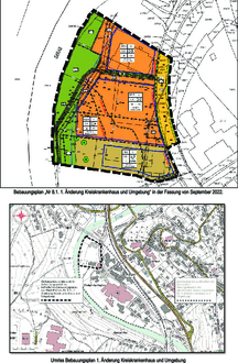
Die Planänderung betrifft den nördlichen Teilbereich des vorhandenen Bebauungsplans.

Planbereich

Das Plangebiet liegt innerhalb der Stadt Kirchen. Westlich des Plangebietes verläuft die „Sieg“ als ein Gewässer erster Ordnung. Im Osten umfasst des Plangebiet die Bahnhofstraße als bereits hergestellte und an das überörtliche Verkehrsnetz angebundene Straße, an die ein Radweg und eine Bahntrasse angrenzen. Im Norden grenzt der Vorhabenbereich an eine Gehölzfläche mit Bäumen und an den Radweg „2 Länder-Tour“ an, der auf einem ehemaligen Bahndamm liegt. Südlich schließt sich das Areal des DRK-Klinikums an.

Momentan befinden sich innerhalb des ca. 1,3 ha großen Plangebiet eine große Parkplatzfläche, die dem DRK-Klinikum dient und drei Gebäude. Bei einem der Gebäude handelt es sich um eine leerstehende Heizzentrale, die zurückgebaut werden soll. Im Westen und Süden ist das Plangebiet durch eine parkartige Grünanlage mit Rasenflächen, Einzelbäumen und dem bewachsenen Uferrandstreifen der Sieg geprägt.

Der Geltungsbereich umfasst die Grundstücke Gemarkung Kirchen, Flur 6, die Flurstücke 235/6, 235/7, 237/8, 238/19, 238/20, 238/21, 238/26, 238/29, 238/30, 238/31, , 240/3, 240/4, 240/5, 240/6, 240/7, 240/8, 241/28 tlw. und 844/240 tlw.

In der nachfolgenden Übersicht ist die genaue Lage zur 1. Änderung des Bebauungsplanes „Kreiskrankenhaus und Umgebung“ durch eine gestrichelte Linie gekennzeichnet.

Die 1. Änderung des Bebauungsplan und die örtlichen Bauvorschriften „1. Änderung Kreiskrankenhaus und Umgebung treten gem. § 10 Abs. 3 BauGB mit dieser Bekanntmachung in Kraft.

Hinweise zur Einsichtnahme in die Planunterlagen:

Die Unterlagen zur Aufstellung des Bebauungsplans werden nach Veröffentlichung dieser Bekanntmachung in Zimmer 306, dem Fachbereich 5 der Verbandsgemeindeverwaltung Kirchen, Lindenstraße 1 während der Dienstzeiten bereitgehalten. Jedermann kann den Bebauungsplan sowie seine Bestandteile (Begründung, Ziele, textliche Festsetzungen) einsehen und über ihren Inhalt Auskunft verlangen.

Für die Besucher des Rathauses gilt ab dem 16.05.2022 lediglich die Empfehlung zum Tragen einer Maske zur Bedeckung von Mund und Nase. Bitte beachten Sie die aktuell gültigen Bestimmungen.

Weiterhin kann der Bebauungsplan mit dessen Planunterlagen zukünftig im Internet über die Homepage der Verbandsgemeinde Kirchen und im zentralen Internetportal des Landes Rheinland-Pfalz (Geoportal RLP) aufgerufen werden.

Homepage Verbandsgemeinde Kirchen:

https://www.kirchen-sieg.de/verwaltung-gremien/gemeinden/stadt-kirchen Reiter: „Bebauungspläne in der Stadt Kirchen“

Geoportal RLP:

https://www.geoportal.rlp.de/mapLAYER[visible]=1&LAYER[querylayer]=1&WMC=21396

Hinweise auf die Verfahrens- und Formvorschriften:

Auf die Vorschriften des § 44 Abs. 3 Satz 1 und 2 BauGB über die Fälligkeit etwaiger Entschädigungsansprüche im Falle der in den §§ 39 bis 42 BauGB bezeichneten Vermögensnachteile, deren Leistung schriftlich beim Entschädigungspflichtigen zu beantragen ist, und des § 44 Abs. 4 BauGB über das Erlöschen von Entschädigungsansprüchen, wenn der Antrag nicht innerhalb der Frist von drei Jahren gestellt ist, wird hingewiesen.

Es wird weiter darauf hingewiesen, dass eine Verletzung der in § 214 Abs. 1 Satz 1 Nr. 1 bis 3 BauGB bezeichneten Verfahrens- und Formvorschriften, eine unter Berücksichtigung des § 214 Abs. 2 BauGB beachtliche Verletzung der Vorschriften über das Verhältnis des Bebauungsplans und des Flächennutzungsplans oder aber ein nach § 214 Abs. 3 Satz 2 BauGB beachtlicher Mangel des Abwägungsvorgangs nur beachtlich werden, wenn sie innerhalb eines Jahres seit dieser Bekanntmachung schriftlich gegenüber der Gemeinde unter Darlegung des die Verletzung begründenden Sachverhalts geltend gemacht worden sind.

Ferner wird darauf aufmerksam gemacht, dass Satzungen, die unter Verletzung von Verfahrens- oder Formvorschriften der rheinland-pfälzischen Gemeindeordnung (GemO RLP) zustande gekommen sind, gemäß § 24 Abs. 6 GemO ein Jahr nach der Bekanntmachung als von Anfang an als gültig zustande gekommen gelten, wenn sie nicht innerhalb dieses Jahres schriftlich, unter Bezeichnung der Tatsachen, die eine solche Rechtsverletzung begründen können, gegenüber der Stadt Kirchen (Sieg) geltend gemacht worden ist.

Adresse der Stadt Kirchen (Sieg):

Stadt Kirchen (Sieg) Lindenstraße 7

57548 Kirchen

Kirchen, den 19.09.2022  —  Gez. Andreas Hundhausen, Bürgermeister der Stadt Kirchen