Titel Logo
Aktuell - Mitteilungsblatt für die VG Kirchen (Sieg)
Ausgabe 42/2024
Amtliche Bekanntmachungen
Zurück zur vorigen Seite
Zurück zur ersten Seite der aktuellen Ausgabe

Öffentliche Bekanntmachung Aufstellung eines Bebauungsplans Nr. 24 „Wohnanlage Barbarastraße“   der Ortsgemeinde Mudersbach

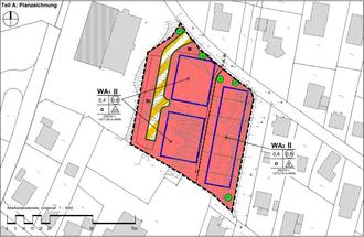
Skizze Übersichtsplan Geltungsbereich Bebauungsplan „Wohnanlage Barbarastraße“

Aufstellung eines Bebauungsplans Nr. 24 „Wohnanlage Barbarastraße“ der Ortsgemeinde Mudersbach

Öffentliche Auslegung des Bebauungsplanentwurfs nach § 3 Abs.2 Baugesetzbuch (BauGB)

Der Ortsgemeinderat Mudersbach hat am 09.02.2023 in öffentlicher Sitzung aufgrund von § 2 Abs. 1 BauGB die Aufstellung des oben genannten Bebauungsplans beschlossen und die Verwaltung beauftragt die erforderlichen Verfahrensschritte einzuleiten.

Der vorhabenbezogene Bebauungsplan wird in einem beschleunigten Verfahren nach § 13 a BauGB durchgeführt.

Im Rahmen der Aufstellung des Bebauungsplanes wird im beschleunigten Verfahren von einer Umweltprüfung nach § 2 Ab. 4 BauGB, von einem Umweltbericht nach § 2 a BauGB und von der Angabe welche Arten umweltbezogener Informationen verfügbar sind, sowie der zusammenfassenden Erklärung nach § 10a BauGB abgesehen.

Planbereich:

Der geplante Geltungsbereich ergibt sich aus dem als Anlage beigefügten Lageplan und wird im Norden und im Osten durch die Barbarastraße und im Süden durch das Gelände der kommunalen Kindertagesstätte begrenzt. Es handelt sich um eine innerörtliche Brachfläche, die sich für eine zusätzliche innerörtliche Bebauung sehr gut anbietet.

Es wird darauf hinwiesen, dass sich die Planunterlagen im Vergleich zur vorgestellten Planung innerhalb der Bürgerversammlung verändert haben. Die zuvor vorgesehenen Reihenhausbebauung wurde durch die aktuelle Planung umgeplant. So sollen nun drei Doppelhäuser auf dem östlichen Teil des Plangebiets entstehen. Zum Vergleich:

Ziel des Bebauungsplans:

Seitens der Ortsgemeinde Mudersbach besteht das Ziel, in der Gemarkung Mudersbach südlich der „Barbarastraße“ und östlich der Giebelwaldhalle eine bestehende innerörtliche Brachfläche zu überplanen, um eine an diesem Standort sinnvolle Innenentwicklung zu unterstützen.

Durch die Aufstellung des vorhabenbezogenen Bebauungsplanes Nr. 24 „Wohnanlage Barbarstraße“ sollen die Voraussetzungen zur Herstellung des geplanten neuen Wohnraums in Form von Doppelhäusern und Mehrfamilienhäusern geschaffen werden.

Das Vorhaben soll ermöglicht werden, um das Angebot an unterschiedlichen Wohnformen in der Ortsgemeinde Mudersbach verbessern zu können. Die Aufstellung des Bebauungsplanes ist zu veranlassen, um eine geordnete städtebauliche Entwicklung zu gewährleisten.

Folgende Arten umweltbezogener Informationen sind gemäß § 3 Abs. 2 Satz 2 BauGB verfügbar:

1) Behördliche Eingaben

Stellungnahme des Landesbetriebs Mobilität aus Diez im Hinblick auf die klassifizierte Straße B 62 mit Aussagen bezüglich zum Schutz vor schädlichen Umwelteinwirkungen im Sinne des Bundesimmissionsschutzgesetztes sowie zum Schutz vor solchen Einwirkungen oder zur Vermeidung bzw. Minderung solcher Einwirkungen für die zu treffenden baulichen und sonstigen technischen Vorkehrungen im Innen- und Außenwohnbereich.

Stellungnahme der Struktur- und Genehmigungsdirektion Nord, Regionalstelle Montabaur mit Aussagen zu den vom Land kartierten Sturzflutgefahren, sowie zu Versickerung des durch Starkregenereignisses hervorgerufenen Oberflächenwassers und zu den bodenschutzrechtlichen Belangen, wie Altlasten und Gefahren durch Altbergbau.

Stellungnahme des Landesamts für Geologie und Bergbau in Mainz mit Hinweisen auf die mögliche Betroffenheit des Plangebiets durch Relikte des Altbergbaus und den dazu verliehenen Bergwerksfeldern zum Abbau von Eisenerzen, den in Verbindung mit ehemaligem Bergbau häufig vorzufindenden gesundheitsschädlichen Kontaminationen und Schadstoffspektren.

Stellungnahme der Kreisverwaltung Altenkirchen mit Hinweisen zu Belangen des Klimaschutzes, der Klimafolgenanpassung und der Sturzflutgefahren, sowie zu Versickerung des durch Starkregenereignisses hervorgerufenen Oberflächenwassers und der Altlasten.

2) Stellungnahmen aus der Öffentlichkeit in Form einer Versammlung mit Bezug auf umweltbezogene Belange sind nicht eingegangen.

3) Gutachten

Begründung zum Bebauungsplan mit grundlegender Beschreibung der vorzufindenden Ausgangssituation inklusive den umweltbezogenen Themen Schmutzwasser und Oberflächenwasser, dem Brandschutz, der Natur, Landschaft und Umwelt im Plangebiet und in dessen Umfeld, der Landschaftsplanung, dem Schallschutz, den getroffenen Maßnahmen zum Schutz, zur Pflege und zur Entwicklung von Natur und Landschaft inklusive der Maßnahmen zum Anpflanzen von Bäumen,, den geplanten planinternen Ausgleichsmaßnahmen und Maßnahmen zur Nutzung erneuerbarer Energien.

Artenschutzrechtliche Vorprüfung Büro: BNL.baubkus, Hofstraße 6, 56244 Arnshöfen mit Aussagen zu den gegebenen ökologisch relevanten Strukturen, den vorkommenden Arten und bestehenden Biotopen und einer Entwicklungsprognose, der Beschreibung des geplanten Vorhabens und der Wirkfaktoren.

Schalltechnische Immissionsprognose Büro: Ingenieurbüro A. Pfeiffer, Birkenweg 6, 35630 Ehringshausen, von September 2023 bezüglich Einhaltung der Immissionsrichtwerte für das allgemeine Wohngebiet und die Auswirkungen des zukünftig entstehenden Verkehrslärms.

Formelle Öffentlichkeitsbeteiligung

Im Zuge der Öffentlichkeitsbeteiligung nach § 3 Abs. 2 BauGB wird der Entwurf des Bebauungsplans „Wohnanlage Barbarastraße“ mit Begründung sowie den wesentlichen bereits vorliegenden umweltbezogenen Stellungnahmen in der Zeit von von Freitag, den 25.10.2024 bis Montag, den 25.11.2024 während der üblichen Öffnungszeiten bei der nachfolgenden Stelle im Eingangsbereich des Rathauses ausgelegt und kann von der Öffentlichkeit eingesehen werden.

Verbandsgemeindeverwaltung Kirchen, Lindenstraße 1, 57548 Kirchen,

Telefonnummer: 02741/688-0

Faxnummer: 02741/688-255

E-Mail-Adresse: vg-kirchen@kirchen-sieg.de

Die Öffnungszeiten belaufen sich üblicherweise montags bis donnerstags von 8:00 Uhr bis 12:00 Uhr und von 14:00 Uhr bis 16:00 Uhr sowie freitags von 8:00 Uhr bis 12:00 Uhr.

Neben der Möglichkeit der Einsichtnahme im Rathaus der Verbandsgemeinde Kirchen ist der Inhalt der ortsüblichen Bekanntmachung sowie die auszulegenden Unterlagen zusätzlich im Internet auf der Homepage der Verbandsgemeinde Kirchen unter der Internetadresse

https://www.kirchen-sieg.de/verwaltung-gremien/gemeinden/ortsgemeinde-mudersbach

abrufbar. („Beteiligungsverfahren der Bauleitplanung und der Satzung nach dem BauGB“)

Der Inhalt der ortsüblichen Bekanntmachung sowie die auszulegenden Unterlagen sind zudem gemäß § 4a Abs. 4 BauGB über das zentrale Internetportal des Landes Rheinland-Pfalz („Geoportal RLP“) aufrufbar. Die auszulegenden Unterlagen sind über folgenden Link zugänglich:

https://www.geoportal.rlp.de/map?LAYER[visible]=1&LAYER[querylayer]=1&WMC=20938

Stellungnahmen können während der o.a. Veröffentlichungs- bzw. Auslegungsfrist abgegeben werden. Sie sollen elektronisch übermittelt werden (E-Mail-Adresse der Verbandsgemeindeverwaltung Kirchen: bauamt@kirchen-sieg.de), können aber auch bei der Verbandsgemeindeverwaltung Kirchen, Fachbereich 5 Kommunalentwicklung, schriftlich eingereicht oder zur Niederschrift erklärt werden.

Stellungnahmen die nicht fristgerecht abgegeben worden sind, können bei der Beschlussfassung über den Bebauungsplan unberücksichtigt bleiben (vgl. § 3 Abs. 2 BauGB).

Mudersbach, den 11.10.2024
Gez. Christian Peter
Bürgermeister der Ortsgemeinde Mudersbach