Titel Logo
Aktuell - Mitteilungsblatt für die VG Kirchen (Sieg)
Ausgabe 46/2023
Amtliche Bekanntmachungen
Zurück zur vorigen Seite
Zurück zur ersten Seite der aktuellen Ausgabe

Ortsübliche Bekanntmachung

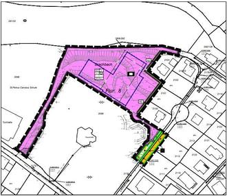
Skizze Übersichtsplan Geltungsbereich Bebauungsplan „Häslich II, 3. Änderung“

Bebauungsplan „Nr. 4.3 3. Änderung Häslich II“ in der Fassung von November 2022

Inkrafttreten des Bebauungsplans gem. § 10 Abs.3 Baugesetzbuch (BauGB)

Nr. 4.3 „Häslich II, 3. Änderung“ der Ortsgemeinde Brachbach im beschleunigten Verfahren nach § 13a BauGB

Der Rat der Ortsgemeinde Brachbach hat in öffentlicher Sitzung vom 09.11.2023 den im beschleunigten Verfahren nach § 13a BauGB aufgestellten Bebauungsplan „Nr. 4.3 Häslich II, 3. Änderung“ gem. § 10 Abs. 1 BauGB als Bebauungsplan der Innenentwicklung mit den örtlichen Bauvorschriften als Satzung beschlossen.

Planbereich

Der Planbereich der 3. Änderung des Bebauungsplans der Ortsgemeinde Brachbach liegt nördlich des Friedhofs Konrad-Adenauer-Straße und nord-östlich der St. Petrus-Canisius Grundschule Brachbach. Der Geltungsbereich der Bebauungsplanänderung ist Bestandteil des Flurstücks 2099 teilweise und 2176 teilweise (Straßenfläche „Lerchenweg“) in der Flur 8, Gemarkung Brachbach.

Für den räumlichen Geltungsbereich des Bebauungsplans ist der Lageplan von November 2022 maßgebend.

Die 3. Änderung des Bebauungsplans und die örtlichen Bauvorschriften „Häslich II, 3. Änderung“ treten gem. § 10 Abs. 3 BauGB mit dieser Bekanntmachung in Kraft.

Hinweise zur Einsichtnahme in die Planunterlagen:

Die Unterlagen zur Aufstellung des Bebauungsplans werden nach Veröffentlichung dieser Bekanntmachung in Zimmer 429, dem Fachbereich 5 der Verbandsgemeindeverwaltung Kirchen, Lindenstraße 1 während der Dienstzeiten (Mo.- Do. 08:00 bis 12:00 Uhr und 13:30 bis 16:00 Uhr, Fr. 08:00 bis 12:00 Uhr) bereitgehalten. Jedermann kann den Bebauungsplan sowie seine Bestandteile (Begründung, Ziele, textliche Festsetzungen) einsehen und über ihren Inhalt Auskunft verlangen.

Weiterhin kann der Bebauungsplan mit dessen Planunterlagen zukünftig im Internet über die Homepage der Verbandsgemeinde Kirchen und im zentralen Internetportal des Landes Rheinland-Pfalz (Geoportal RLP) aufgerufen werden.

Homepage Verbandsgemeinde Kirchen:

https://www.kirchen-sieg.de/verwaltung-gremien/gemeinden/ortsgemeinde-brachbach

Reiter: „Bebauungspläne in der Ortsgemeinde Brachbach“

Geoportal RLP:

https://www.geoportal.rlp.de/map?LAYER[visible]=1&LAYER[querylayer]=1&WMC=20938

Hinweise auf die Verfahrens- und Formvorschriften:

Auf die Vorschriften des § 44 Abs. 3 Satz 1 und 2 BauGB über die Fälligkeit etwaiger Entschädigungsansprüche im Falle der in den §§ 39 bis 42 BauGB bezeichneten Vermögensnachteile, deren Leistung schriftlich beim Entschädigungspflichtigen zu beantragen ist, und des § 44 Abs. 4 BauGB über das Erlöschen von Entschädigungsansprüchen, wenn der Antrag nicht innerhalb der Frist von drei Jahren gestellt ist, wird hingewiesen.

Es wird weiter darauf hingewiesen, dass eine Verletzung der in § 214 Abs. 1 Satz 1 Nr. 1 bis 3 BauGB bezeichneten Verfahrens- und Formvorschriften, eine unter Berücksichtigung des § 214 Abs. 2 BauGB beachtliche Verletzung der Vorschriften über das Verhältnis des Bebauungsplans und des Flächennutzungsplans oder aber ein nach § 214 Abs. 3 Satz 2 BauGB beachtlicher Mangel des Abwägungsvorgangs nur beachtlich werden, wenn sie innerhalb eines Jahres seit dieser Bekanntmachung schriftlich gegenüber der Gemeinde unter Darlegung des die Verletzung begründenden Sachverhalts geltend gemacht worden sind. Vorstehender Satz gilt entsprechend, wenn Fehler nach § 214 Abs. 2a beachtlich sind.

Ferner wird darauf aufmerksam gemacht, dass Satzungen, die unter Verletzung von Verfahrens- oder Formvorschriften der rheinland-pfälzischen Gemeindeordnung (GemO RLP) zustande gekommen sind, gemäß § 24 Abs. 6 GemO ein Jahr nach der Bekanntmachung als von Anfang an als gültig zustande gekommen gelten, wenn sie nicht innerhalb dieses Jahres schriftlich, unter Bezeichnung der Tatsachen, die eine solche Rechtsverletzung begründen können, gegenüber der Ortsgemeinde Brachbach geltend gemacht worden ist.

Adresse der Ortsgemeinde Brachbach:

Ortsgemeinde Brachbach

Bahnhofstraße 2a

57555 Brachbach

Brachbach, den 10.11.2023
Steffen Kappes
Bürgermeister der Ortsgemeinde Brachbach