Titel Logo
Mitteilungsblatt Wissen - Wisserland...mehr wissen!
Ausgabe 31/2023
Öffentliche Bekanntmachungen
Zurück zur vorigen Seite
Zurück zur ersten Seite der aktuellen Ausgabe

Öffentliche Bekanntmachung

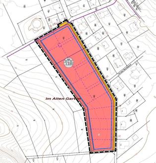
Entwurf des Bebauungsplans „Böhmerstraße“, Datengrundlage: Geobasisinformation der Vermessungs- und Katasterverwaltung RLP, (Zustimmung vom 15.10.2002)

Aufstellung des Bebauungsplans „Böhmerstraße“ gemäß § 13a Baugesetzbuch (BauGB)

Öffentlichkeitsbeteiligung gem. § 3 Abs. 1 BauGB

Der Stadtrat der Stadt Wissen hat am 20.09.2022 in öffentlicher Sitzung beschlossen, den Bebauungsplan „Böhmerstraße“ als Bebauungsplan der Innenentwicklung im beschleunigten Verfahren gemäß § 13 a BauGB aufzustellen und eine frühzeitige Beteiligung der Öffentlichkeit nach § 3 Abs. 1 BauGB durchzuführen. Ziel der Planung ist die Entwicklung einer Wohnbaufläche zur Deckung des Wohnraumbedarfs Wissens. Die Planung erfolgt entlang der bereits vorhandenen Erschließungsstraße Böhmerstraße. Der Planbereich ergibt sich aus folgendem Kartenausschnitt:

Der Entwurf des Bebauungsplans „Böhmerstraße“ wird mit den textlichen Festsetzungen, der Begründung, der Landschaftspflegerischen Einschätzung mit artenschutzrechtlichem Fachbeitrag in der Zeit vom 03.08.2023 bis einschließlich 04.09.2023 bei der Verbandsgemeindeverwaltung Wissen, Zimmer 59, von Montag bis Freitag, vormittags von 08:30 Uhr bis 12:00 Uhr, Montag bis Mittwoch nachmittags von 14:00 Uhr bis 16:00 Uhr und Donnerstag 14:00 Uhr bis 18:00 Uhr, öffentlich ausgelegt. Während der Auslegungsfrist können schriftlich oder mündlich zur Niederschrift Stellungnahmen abgegeben werden. Gleichzeitig können Anregungen auch an die E-Mail Adresse behoerdenbeteiligung@rathaus-wissen.de gesendet werden. Der Entwurf des Bebauungsplans „Böhmerstraße“ kann auf der Homepage der Verbandsgemeinde unter folgendem Link eingesehen werden: https://www.wissen.eu/Gemeinden-Rathaus/Rathaus/Bekanntmachungen

Wissen, den 28.07.2023
gez. Berno Neuhoff, Stadtbürgermeister