Titel Logo
Mitteilungsblatt Wissen - Wisserland...mehr wissen!
Ausgabe 32/2025
Öffentliche Bekanntmachungen
Zurück zur vorigen Seite
Zurück zur ersten Seite der aktuellen Ausgabe

Öffentliche Bekanntmachung der Ortsgemeinde Birken-Honigsessen  

Inkrafttreten des Bebauungsplans„Hauptstraße 177“ der Ortsgemeinde Birken-Honigsessen

Der Ortsgemeinderat Birken-Honigsessen hat in seiner öffentlichen Sitzung am 29.07.2025 den Bebauungsplan „Hauptstraße 177“ gemäß § 10 Baugesetzbuch (BauGB) als Satzung beschlossen.

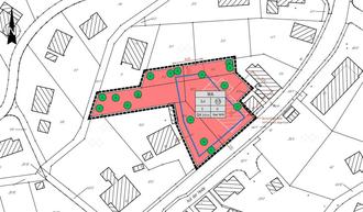
Der räumliche Geltungsbereich des Bebauungsplans geht aus dem nachstehend abgedruckten Übersichtsplan hervor.

Der Bebauungsplan „Hauptstraße 177“ kann einschließlich der Textfestsetzungen, der Begründung und dem Freiflächenplan bei der Verbandsgemeinde Wissen, Fachbereich 3 - Bauen und Infrastruktur, Zimmer 63, Rathausstraße 75, 57537 Wissen, in den Kernarbeitszeiten (montags bis mittwochs von 8.30 - 12.00 und 14.00 - 16.00 Uhr, donnerstags von 8.30 - 12.00 und 14.00 - 18.00 Uhr und freitags von 8.00 - 12.00 Uhr) von jedermann eingesehen werden. Jedermann kann über den Inhalt des Bebauungsplans Auskunft verlangen.

Die Satzung über den Bebauungsplan „Hauptstraße 177“ wird hiermit öffentlich bekannt gemacht. Mit dieser Bekanntmachung tritt der Bebauungsplan „Hauptstraße 177“ in Kraft.

Hinweise:

1.

Gemäß § 215 Abs. 1 BauGB werden unbeachtlich

1. eine nach § 214 Abs. 1 Satz 1 Nr. 1 bis 3 beachtliche Verletzung der dort bezeichneten Verfahrens- und Formvorschriften

2. eine unter Berücksichtigung des § 214 Abs. 2 beachtliche Verletzung der Vorschriften über das Verhältnis des Bebauungsplanes und des Flächen­nutzungsplanes

3. nach § 214 Abs. 3 Satz 2 beachtliche Mängel des Abwägungsvorganges,

wenn diese Verletzungen nicht innerhalb von zwei Jahren seit Bekanntmachung des Bebauungsplanes oder der Satzung schriftlich gegenüber der Ortsgemeinde Birken-Honigsessen unter Darlegung des die Verletzung begründenden Sachverhalts geltend gemacht worden sind.

2.

Gemäß § 24 Abs. 6 Gemeindeordnung für Rheinland-Pfalz (GemO) gelten Satzungen, die unter Verletzung von Verfahrens- oder Formvorschriften der Gemeindeordnung oder auf Grund dieses Gesetzes zustande gekommen sind, ein Jahr nach der Bekanntmachung als von Anfang an gültig zustande gekommen. Dies gilt nicht, wenn

1. die Bestimmungen über die Öffentlichkeit der Sitzung, die Genehmigung, die Ausfertigung oder die Bekanntmachung der Satzung verletzt worden sind, oder

2. vor Ablauf der in Satz 1 genannten Frist die Aufsichtsbehörde den Beschluss beanstandet oder jemand die Verletzung der Verfahrens- oder Formvorschriften gegenüber der Ortsgemeinde Birken-Honigsessen unter Bezeichnung des Sachverhaltes, der die Verletzung begründen soll, schriftlich geltend gemacht hat.

Hat jemand eine Verletzung nach Satz 2 Nr. 2 geltend gemacht, so kann auch nach Ablauf der in Satz 1 genannten Frist jedermann diese Verletzung geltend machen (§ 24 Absatz 6 GemO).

3.

Auf die Vorschriften des § 44 Abs. 3 Satz 1 und 2 BauGB über die Fälligkeit etwaiger Entschädigungsansprüche, deren Leistung schriftlich beim Entschädigungspflichtigen zu beantragen ist, und des § 44 Abs. 4 BauGB über das Erlöschen von Entschädigungsansprüchen wird hingewiesen.

Birken-Honigsessen, 30.07.2025
Hubert Wagner, Ortsbürgermeister