Titel Logo
INFORM - Wochenzeitung der Verbandsgemeinde Hachenburg
Ausgabe 21/2023
Aus den Gemeinden
Zurück zur vorigen Seite
Zurück zur ersten Seite der aktuellen Ausgabe

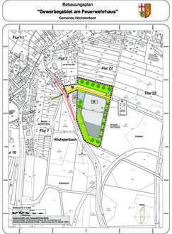
Offenlage des Bebauungsplanes „Gewerbegebiet am Feuerwehrhaus“ gemäß § 3 Abs. 1 Baugesetzbuch – vorzeitige Bürgerbeteiligung –

Der Ortsgemeinderat Höchstenbach hat beschlossen, für den Bereich „Gewerbegebiet am Feuerwehrhaus“ einen Bebauungsplan aufzustellen und den Entwurf öffentlich auszulegen. Durch die Ausweisung des Gewerbegebietes soll unter anderem die Voraussetzung für die benötigte Expansion einer ortsansässigen Bäckerei geschaffen werden, um somit eine Abwanderung des mittelständigen Unternehmens zu verhindern und Arbeitsplätze zu sichern.

Nach § 3 Abs. 1 Baugesetzbuch ist die Öffentlichkeit möglichst frühzeitig über die allgemeinen Ziele und Zwecke der Planung öffentlich zu unterrichten; ihr ist Gelegenheit zur Äußerung und Erörterung zu geben. Wir geben hiermit zur Kenntnis, dass die Planunterlagen demnach in der Zeit vom 05. Juni 2023 bis einschl. 23. Juni 2023 bei der Verbandsgemeindeverwaltung Hachenburg, Gartenstraße 11, Fachbereich Bauen und Regionalentwicklung, Zimmer 317, während der Dienststunden (montags und mittwochs 8.00 Uhr bis 12.00 Uhr, dienstags 8.00 Uhr bis 12.00 Uhr und 13.30 Uhr bis 16.00 Uhr, donnerstags von 8.00 Uhr bis 12.00 Uhr und 13.30 Uhr bis 18.30 Uhr und freitags von 8.00 bis 13.00 Uhr) zu jedermanns Einsicht öffentlich ausliegen.

Während dieser Zeit können die Planunterlagen eingesehen und Stellungnahmen schriftlich oder zur Niederschrift vorgebracht werden. Etwaige Stellungnahmen sind bis zum Ablauf der Frist bei der Verbandsgemeindeverwaltung Hachenburg einzureichen. Nicht fristgerecht abgegebene Stellungnahmen können bei der Beschlussfassung über den Bebauungsplan unberücksichtigt bleiben. Zudem können die Planunterlagen ab Beginn der Offenlage auf der Internetseite der Verbandsgemeinde Hachenburg unter folgendem Link eingesehen werden:

https://www.hachenburg-vg.de/unsere-verbandsgemeinde/bebauungsplaene-bauleitplanung

Eine Umweltverträglichkeitsprüfung wird gemäß § 3 UVPG in Verbindung mit Ziffer 18 der Anlage 1 zum UVPG nicht durchgeführt.

Fuchs
Ortsbürgermeisterin