Titel Logo
Wochenblatt der Verbandsgemeinde Montabaur
Ausgabe 1/2024
Montabaur
Zurück zur vorigen Seite
Zurück zur ersten Seite der aktuellen Ausgabe

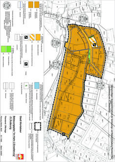
Öffentliche Bekanntmachung der Stadt Montabaur Satzungsbeschluss zur IV. Änderung des Bebauungsplanes „Im Hahn-Erweiterung“ der Stadt Montabaur

Satzungsbeschluss zur IV. Änderung des Bebauungsplanes „Im Hahn-Erweiterung“ der Stadt Montabaur

Der Stadtrat von Montabaur hat in seiner Sitzung am 14.06.2022 die IV. Änderung des Bebauungsplanes „Im Hahn-Erweiterung“ gemäß § 10 Abs. 1 Baugesetzbuch (BauGB) als Satzung beschlossen.

Gemäß § 10 Abs. 3 Satz 1 BauGB in der Fassung der Bekanntmachung vom 03.11.2017 (BGBl. I S. 3634), in der zurzeit gültigen Fassung, wird dieser Beschluss hiermit ortsüblich bekanntgemacht.

Mit der heutigen Bekanntmachung tritt die IV. Änderung des Bebauungsplanes „Im Hahn-Erweiterung“ gem. § 10 Abs. 3 Satz 4 BauGB in Kraft. Gleichzeitig treten die entgegenstehenden zeichnerischen sowie textlichen Festsetzungen der Ursprungs- bzw. der Änderungsplanungen außer Kraft.

Die Planunterlagen zu o.g. Bebauungsplan können von jedermann bei der Verbandsgemeindeverwaltung Montabaur, Bauverwaltung, Zimmer 201, Konrad-Adenauer-Platz 8, 56410 Montabaur, während der Dienststunden

montags, dienstags und mittwochs

von 08:00 bis 12:30 Uhr

und

von 14:00 bis 16:00 Uhr

donnerstags

von 08:00 bis 12:30 Uhr

und

von 14:00 bis 18:00 Uhr

freitags

von 08:00 bis 12:30 Uhr

nach vorheriger Terminvereinbarung eingesehen werden. Jede Person kann über den Inhalt des Bebauungsplanes Auskunft verlangen.

Die Planunterlagen bestehen aus:

Planzeichnung

Textlichen Festsetzungen

Begründung

Der Geltungsbereich des Bebauungsplans wird wie folgt begrenzt:

Im Norden durch die Hohe Straße und die Südgrenzen der Grundstücke Flur 22, Parzellen 5082/9 – 3928/2,

Im Süden durch die Alleestraße

Im Westen durch die Bahnhofstraße,

Im Osten durch die Wegeparzelle Flur 22, Flurstück 3957/5

Der Geltungsbereich umfasst sämtliche Grundstücke in der Flur 22 der Gemarkung Montabaur, die in dem beigefügten Abdruck der Planzeichnung ersichtlich sind.

In Anwendung des § 10a Abs. 2 BauGB wird der in Kraft getretene Bebauungsplan mit der Begründung auf der Internetseite der Verbandsgemeinde Montabaur unter nachfolgender Internetadresse/ Rubrik eingestellt:

www.vg-montabaur.de > Rubrik Leben & Erleben > Bauen & Wohnen > Bebauungspläne & Satzungen > Stadt Montabaur

Darüber hinaus werden die Planunterlagen in Kürze über das zentrale Internetportal des Landes „GeoPortal.rlp“ zugänglich gemacht.

Alle DIN-Normen und Vorschriften (Gesetze, Verordnungen, Erlasse), auf die in den Planunterlagen verwiesen wird, werden bei der Verbandsgemeindeverwaltung Montabaur zu jedermanns Einsicht bereitgehalten.

Hinweise:

1.

Auf die Vorschriften des § 44 Abs. 3 Sätze 1 und 2 sowie Abs. 4 BauGB wird hingewiesen. Hiernach können Entschädigungsansprüche verlangt werden, wenn infolge des Bebauungsplanes die in §§ 39 – 42 BauGB bezeichneten Vermögensnachteile eingetreten sind. Die Fälligkeit des Anspruches kann dadurch herbeigeführt werden, dass die Leistung der Entschädigung schriftlich beim Entschädigungspflichtigen (§ 44 Abs. 1 und 2 BauGB) beantragt wird. Der Entschädigungsanspruch erlischt, wenn nicht innerhalb von 3 Jahren nach Ablauf des Kalenderjahres, in dem der Vermögensnachteil eingetreten ist, die Fälligkeit des Anspruches herbeigeführt wird (§ 44 Abs. 4 BauGB).

2.

Nach § 215 Abs. 1 BauGB werden unbeachtlich:

a)

eine nach § 214 Abs. 1 Satz 1 Nr. 1 bis 3 BauGB beachtliche Verletzung der dort bezeichneten Verfahrens- und Formvorschriften,

b)

eine unter Berücksichtigung des § 214 Abs. 2 BauGB beachtliche Verletzung der Vorschriften über das Verhältnis des Bebauungsplanes und des Flächennutzungsplanes und

c)

nach § 214 Abs. 3 Satz 2 BauGB beachtliche Mängel des Abwägungsvorgangs,

wenn sie nicht innerhalb eines Jahres seit Bekanntmachung der Satzung schriftlich gegenüber der Verbandsgemeindeverwaltung Montabaur, Konrad-Adenauer-Platz 8, 56410 Montabaur oder der Stadt Montabaur, Konrad-Adenauer-Platz 8, 56410 Montabaur, unter Darlegung des die Verletzung begründenden Sachverhalts geltend gemacht worden sind.

Satz 1 gilt entsprechend, wenn Fehler nach § 214 Abs. 2 a BauGB beachtlich sind.

3.

Gemäß § 24 Abs. 6 Gemeindeordnung für Rheinland-Pfalz (GemO) vom 31.01.1994 (GVBl. S. 153) einschl. der erfolgten Änderungen wird auf folgendes hingewiesen:

Satzungen, die unter Verletzung von Verfahrens- oder Formvorschriften dieses Gesetzes oder auf Grund dieses Gesetzes zustande gekommen sind, gelten ein Jahr nach der Bekanntmachung als von Anfang an gültig zustande gekommen.

Dies gilt nicht, wenn

1.

die Bestimmungen über die Öffentlichkeit der Sitzung, die Genehmigung, die Ausfertigung oder die Bekanntmachung der Satzung verletzt worden sind, oder

2.

vor Ablauf der in Satz 1 genannten Frist die Aufsichtsbehörde den Beschluss beanstandet oder jemand die Verletzung der Verfahrens- oder Formvorschriften gegenüber der Verbandsgemeindeverwaltung Montabaur, Konrad-Adenauer-Platz 8, 56410 Montabaur unter Bezeichnung des Sachverhalts, der die Verletzung begründen soll, schriftlich geltend gemacht hat.

Hat jemand eine Verletzung nach Satz 2 Nr. 2 geltend gemacht, so kann auch nach Ablauf der in Satz 1 genannten Frist jedermann diese Verletzung geltend machen.

Montabaur, 28.12.2023
Gabi Wieland
Stadtbürgermeisterin