Titel Logo
Mitteilungsblatt Verbandsgemeinde Asbach
Ausgabe 15/2025
Amtliche Bekanntmachungen
Zurück zur vorigen Seite
Zurück zur ersten Seite der aktuellen Ausgabe

Satzung über die Beseitigung eines Wirtschaftsweges

Aufgrund des § 24 der Gemeindeordnung für Rheinland-Pfalz (GemO), in der derzeit gültigen Fassung, hat der Gemeinderat der Ortsgemeinde Neustadt (Wied) am 27.03.2025 folgende Satzung beschlossen, die hiermit öffentlich bekannt gemacht wird:

Satzung

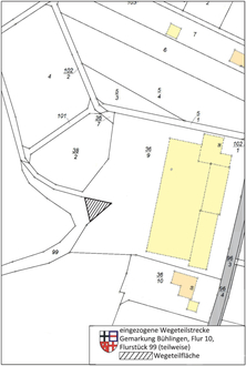
der Ortsgemeinde Neustadt (Wied) über die Beseitigung des Wegeteilstückes in der Gemarkung Bühlingen, Flur 10, Flurstück 99 (teilweise), Ortslage Bühlingen

vom 27.03.2025

§ 1

Das in der Gemarkung Bühlingen, Flur 10, Flurstück 99 (teilweise), gelegene Wegeteilstück wird hiermit eingezogen. Die einzuziehende Wegestrecke ist aus dem beiliegenden Lageplan, der Bestandteil dieser Satzung ist, ersichtlich.

Grundlage dieser Einziehungen ist auch § 58 Abs. 4 des Flurbereinigungsgesetzes in der derzeit gültigen Fassung.

§ 2

Diese Satzung tritt mit dem auf die Veröffentlichung folgenden Tag in Kraft.

Ausgefertigt:
Ortsgemeinde Neustadt (Wied)
Neustadt, den 02.04.2025
gez. Thomas Junior  —  (Siegel)
(Ortsbürgermeister)

Es besteht die Möglichkeit zur Einsichtnahme der Satzung, des dazugehörigen Gemeinderatsbeschlusses sowie der Lagepläne während der allgemeinen Öffnungszeiten des Rathauses der Verbandsgemeinde Asbach (montags bis freitags von 8:00 Uhr bis 12:00 Uhr, zusätzlich mittwochs von 14:00 Uhr bis 16:00 Uhr sowie donnerstags von 14:00 Uhr bis 18:00 Uhr), Flammersfelder Straße 1, Tiefbauamt, 53567 Asbach.

Hinweis:

Satzungen, die unter Verletzung von Verfahrens- und Formvorschriften dieses Gesetzes oder aufgrund dieses Gesetzes zustande gekommen sind, gelten gemäß § 24 Absatz 6 der Gemeindeordnung ein Jahr nach der Bekanntmachung als von Anfang an gültig zustande gekommen.

Dies gilt nicht, wenn

1.

die Bestimmungen über die Öffentlichkeit der Sitzung, die Genehmigung, die Ausfertigung oder die Bekanntmachung der Satzung verletzt worden sind,

oder

2.

vor Ablauf der in Satz 1 genannten Frist die Aufsichtsbehörde den Beschluss beanstandet oder jemand die Verletzung der Verfahrens- und Formvorschriften gegenüber der Gemeindeverwaltung unter Bezeichnung des Sachverhalts, der die Verletzung begründen soll, schriftlich geltend gemacht hat.

Hat jemand eine Verletzung nach Satz 2 Nr. 2 geltend gemacht, so kann auch nach Ablauf der in Satz 1 genannten Frist jedermann diese Verletzung geltend machen.

Asbach, den 09.04.2025
gez. Michael Christ  —  (Siegel)
(Bürgermeister)