Titel Logo
Mitteilungsblatt Verbandsgemeinde Asbach
Ausgabe 25/2023
Sonstige amtliche Mitteilungen
Zurück zur vorigen Seite
Zurück zur ersten Seite der aktuellen Ausgabe

Verkauf von zwei Baugrundstücken der Ortsgemeinde Windhagen im Neubaugebiet „Grabenbitze / Auf dem Sack“ (Ortslage Windhagen)

im Neubaugebiet „Grabenbitze / Auf dem Sack“ (Ortslage Windhagen)

Die Ortsgemeinde Windhagen ist im Neubaugebiet „Grabenbitze/Auf dem Sack“ (Ortslage Windhagen, Straße „Grabenbitze“) Eigentümerin von 2 Baugrundstücken.

Bezeichnung:

Gemarkung Windhagen, Flur 25,

a.) Flurstück 111 (Größe 677 m²) – Plan Nr. 47 und

b.) Flurstück 104 (572 m²) – Plan Nr. 24

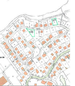
Lage der zwei Grundstücke (blau umrandet):

Übersichtsplan:

Detailplan:

Die zwei gemeindlichen Grundstücke sollen zum Zwecke einer Wohnbebauung über ein festgelegtes Bewerbungsverfahrens wie folgt verkauft werden:

1.

Die Bewerbung für den Kauf eines der beiden Grundstücke ist schriftlich (mit Unterschrift) in einem verschlossenen Umschlag bei der Verbandsgemeindeverwaltung, 53567 Asbach, Flammersfelder Str. 1 (z.H. Herrn Höfflin), bis zum 20.07.2023 (Ausschlussfrist) abzugeben.

Das Angebot muss die genaue Nennung des zu erwerbenden Grundstückes (Nr. 24 oder Nr. 47 lt. abgedruckter Pläne) enthalten. Ebenso sind die genauen Kontaktdaten (Name, Adresse u. Tel-Nr.) in der Bewerbung mit aufzuführen.

2.

Die Bewerbung muss ein Angebot über die Höhe des Kaufpreises enthalten. Das Mindestgebot liegt bei 180,-- €/m² (Bodenrichtwert).

3.

Bei der Bewerbung ist eine Finanzierungsbestätigung eines Kreditinstitutes beizufügen, dass die Finanzierung des Vorhabens (Kauf des Grundstückes einschl. Nebenkosten) gesichert ist.

4.

Die Bauverpflichtung (Wohnbebauung) beträgt 3 Jahre.

Mit dem Kauf erfolgt auch die Verpflichtung zur Eigennutzung (5 Jahre mit Hauptwohnsitz) und eine Veräußerungsbeschränkung innerhalb des Zeitraums der Eigennutzungsverpflichtung. Sofern mehr als eine Wohneinheit errichtet wird, muss der Anteil der eigengenutzten Wohnfläche an der Gesamtwohnfläche mindestens 60% betragen.

Die Bauverpflichtung, die Eigennutzungsverpflichtung und die Veräußerungsbeschränkung werden durch Eintragungen im Grundbuch gesichert (durch Eintragung einer Rückauflassungsvormerkung/Rückkaufsrecht zu Gunsten der Ortsgemeinde).

Der Zuschlag erfolgt für je Grundstück an den Höchstbietenden.

Der entsprechende Bebauungsplan kann auf der Homepage der Verbandsgemeinde Asbach eingesehen werden.

Für telefonische Rückfragen steht Herr Höfflin, Bauabteilung Verbandsgemeindeverwaltung Asbach, unter 02683/912-149 zur Verfügung.