Titel Logo
Mitteilungsblatt Verbandsgemeinde Asbach
Ausgabe 35/2025
Amtliche Bekanntmachungen
Zurück zur vorigen Seite
Zurück zur ersten Seite der aktuellen Ausgabe

Bekanntmachung über das 1. Änderungsverfahren zum Bebauungsplan „Industrie- und Gewerbepark Süd, Teilbereich Fernthal/Neschen, I. Abschnitt“ der Ortsgemeinde Neustadt (Wied)



hier:

1.

Bekanntmachung des Aufstellungsbeschlusses gem. § 2 Absatz 1 Baugesetzbuch (BauGB) sowie

2.

Frühzeitige Beteiligung der Öffentlichkeit nach § 3 Absatz 1 BauGB

Der Gemeinderat der Ortsgemeinde Neustadt (Wied) hat mit Beschluss vom 21.08.2025 die Einleitung des Verfahrens zur Aufstellung des 1. Änderungsverfahrens des Bebauungsplanes „Industrie- und Gewerbepark Süd, Teilbereich Fernthal/Neschen, I. Abschnitt“ beschlossen. Die Aufstellung erfolgt im beschleunigten Verfahren nach § 13a BauGB. Gemäß § 13a Abs. 2 BauGB sind beim beschleunigten Verfahren die Verfahrensvorschriften des § 13 BauGB entsprechend anzuwenden; hiernach entfallen u.a. die Umweltprüfung nach § 2 Abs. 4 BauGB, der Umweltbericht nach § 2a BauGB, die Angabe nach § 3 Abs. 2 BauGB, welche Arten umweltbezogener Informationen verfügbar sind, eine zusammenfassende Erklärung nach § 10 Abs. 4 BauGB sowie das Monitoring nach § 4c BauGB.

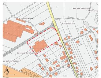
Die Lage der von der Planung betroffenen Grundstücke kann aus dem nachfolgenden Kartenausschnitt entnommen werden (Datengrundlage: Geobasisinformationen der Vermessungs- und Katasterverwaltung Rheinland-Pfalz; Zustimmung v. 15.1.2002).

Planungsanlass und -ziele:

Im Geltungsbereich des Bebauungsplanes "Industrie- und Gewerbepark Süd, Teilbereich Fernthal/Neschen, I. Abschnitt" beabsichtigt eine Investorin den Neubau eines nicht großflächigen Lebensmitteldiscounters. Der maßgebliche Grundstücksteil ist aktuell nicht bebaut. Im Wege des Änderungsverfahrens sollen die planungsrechtlichen Voraussetzungen zur Umsetzung des geplanten Vorhabens geschaffen werden.

Der Geltungsbereich umfasst die Grundstücke Gemarkung Neustadt (Wied), Flur 36, Flurstücke 24, 25/1 und 27/2.

Der Aufstellungsbeschluss wird hiermit ortsüblich nach § 2 Abs. 1 Satz 2 BauGB i.V.m. der Hauptsatzung der Ortsgemeinde Neustadt (Wied) bekannt gemacht.

Zur Erfüllung der gemäß § 3 Abs. 1 BauGB vorgeschriebenen frühzeitigen Beteiligung der Öffentlichkeit an der Bauleitplanung wird mitgeteilt, dass die ersten Planentwürfe und Planunterlagen zu diesem Bebauungsplan in der Zeit von

Freitag, den 05.09.2025 bis Mittwoch, den 08.10.2025

bei der Verbandsgemeindeverwaltung Asbach,

Flammersfelder Str. 1, 53567 Asbach, Gebäude B, 1. Obergeschoss im Bereich der Bauverwaltung, Flur gegenüber Büro 41

während der Dienststunden

(montags bis mittwochs von 8.00 Uhr bis 12.00 Uhr und von 14.00 Uhr bis 16.00 Uhr, donnerstags von 8.00 Uhr bis 12.00 Uhr und 14.00 Uhr bis 18.00 Uhr, freitags von 8.00 Uhr bis 12.00 Uhr).

öffentlich ausliegen, um über die Planungen öffentlich zu unterrichten.

Mit dem frühzeitigen Beteiligungsverfahren besteht für die Öffentlichkeit Gelegenheit zur Äußerung und Erörterung. Anregungen und Stellungnahmen zum Bebauungsplan können bei der Verbandsgemeinde Asbach schriftlich oder zur Niederschrift abgegeben werden.

Die oben beschriebenen Planunterlagen sind in diesem Zeitraum auch auf der Homepage der Verbandsgemeinde Asbach unter: www.vg-asbach.de (hier Bebauungsplan online {{gt}} OG Neustadt (Wied)) eingestellt.

Ortsgemeinde Neustadt (Wied),den 21.08.2025

Gez.

-Thomas Junior-

Ortsbürgermeister