Titel Logo
Mitteilungsblatt Verbandsgemeinde Asbach
Ausgabe 40/2023
Amtliche Bekanntmachungen
Zurück zur vorigen Seite
Zurück zur ersten Seite der aktuellen Ausgabe

Bekanntmachung

über das 7. Änderungsverfahren zum Bebauungsplan „Sportpark Asbach“ der Ortsgemeinde Asbach

hier:

1.

Bekanntmachung des Aufstellungsbeschlusses gemäß § 2 Absatz 1 Baugesetzbuch (BauGB) sowie

2.

Bekanntmachung über die Auslegung der Verfahrensunterlagen gemäß § 3 Abs. 2 BauGB

Der Ortsgemeinderat Asbach hat mit Beschluss vom 10.11.2022 die Einleitung des Verfahrens zur Aufstellung des 7. Änderungsverfahrens des Bebauungsplanes „Sportpark Asbach“ im beschleunigten Verfahren nach § 13a BauGB beschlossen.

Das Planvorhaben der Ortsgemeinde Asbach wird hiermit gemäß § 2 Abs. 1 BauGB bekannt gemacht.

In der Gemeinderatsitzung vom 14.09.2023 wurde der Bebauungsplanentwurf gebilligt und beschlossen die Planunterlagen öffentlich auszulegen.

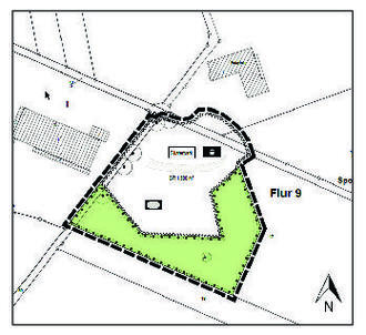
Die Lage der von der Planung betroffenen Grundstücke kann aus dem nachfolgenden Kartenausschnitt entnommen werden (Datengrundlage: Geobasisinformationen der Vermessungs- und Katasterverwaltung Rheinland-Pfalz; Zustimmung v. 15.1.2002).

Planinhalte und Planungsanlass:

Mit der 7. Änderung des Bebauungsplans „Sportpark Asbach“ soll die bereits vorhandene Nutzung als Sportpark erweitert werden. Beabsichtigt ist die Erweiterung des vorhandenen Skateparks auf einem derzeit ungenutzten Bereich innerhalb des Geltungsbereichs des Bebauungsplans „Sportpark Asbach“, 1. Änderung. Die vorgesehene Fläche war bereits als Erweiterungsfläche berücksichtigt, so dass sich die Planung aus der Ursprungskonzeption ableiten lässt.

Gemäß § 3 Abs. 2 BauGB in Verbindung mit § 1 der Hauptsatzung der Ortsgemeinde Asbach wird hiermit bekannt gemacht, dass folgende Planunterlagen öffentlich ausliegen:

-

die Planurkunde

-

textliche Festsetzungen mit einer Begründung und Anlagen.

Die Auslegung findet statt in der Zeit von

Freitag, den 13.10.2023 bis Montag, den 13.11.2023

bei der Verbandsgemeindeverwaltung Asbach,

Flammersfelder Str. 1, 53567 Asbach,

im Empfangsbereich des Rathauses,

während der Dienststunden

(montags bis mittwochs von 8.00 Uhr bis 12.00 Uhr und von 14.00 Uhr bis 16.00 Uhr, donnerstags von 8.00 Uhr bis 12.00 Uhr und 14.00 Uhr bis 18.00 Uhr, freitags von 8.00 Uhr bis 12.00 Uhr).

Die oben beschriebenen Planunterlagen sind zudem auch im o.a. Zeitraum auf der Homepage der Verbandsgemeinde Asbach unter: www.vg-asbach.de (hier Aktuelles > Bekanntmachungen) zu finden oder über das zentrale Landesportal www.geoportal.rlp.de (veröffentlichte Offenlagen zu Bauleitplänen) zugänglich.

Im vereinfachten Verfahren entfallen nach § 13 Abs. 3 BauGB

-

eine Umweltprüfung nach § 2 Abs. 4 BauGB

-

der Umweltbericht nach § 2a BauGB

-

die Angabe nach § 3 Abs. 2 BauGB, welche Arten umweltbezogener Informationen verfügbar sind

-

zusammenfassende Erklärung nach § 10 Abs. 4 BauGB

-

das Monitoring nach § 4c BauGB

Während der oben genannten Auslegungsfrist können Anregungen und Stellungnahmen zur Änderung des Bebauungsplanes bei der Verbandsgemeinde Asbach schriftlich oder zur Niederschrift abgegeben werden. Nicht fristgerecht abgegebene Stellungnahmen können bei der Beschlussfassung über die Änderung des Bebauungsplanes unberücksichtigt bleiben.

Ortsgemeinde Asbach, den 21.09.2023
gez. Franz-Peter Dahl
- Ortsbürgermeister -