Titel Logo
Mitteilungsblatt der Verbandsgemeinde Dierdorf
Ausgabe 40/2022
Aus den Gemeinden
Zurück zur vorigen Seite
Zurück zur ersten Seite der aktuellen Ausgabe

Aufstellung eines Bebauungsplanes „Vor dem Löh II“

Ortsgemeinde Kleinmaischeid, gemäß § 13b Baugesetzbuch (BauGB) im beschleunigten Verfahren nach § 13a BauGB

- Bekanntmachung des Aufstellungsbeschlusses gemäß § 2 (1) BauGB

- frühzeitige Beteiligung der Öffentlichkeit gemäß § 3 (1) BauGB

Da in Kleinmaischeid keine unbebauten Grundstücke in nennenswerter Anzahl mehr zur Verfügung stehen beabsichtigt die Ortsgemeinde Kleinmaischeid, zur Deckung der Nachfrage nach Baugrundstücken im Rahmen einer geordneten und maßvollen Ortsentwicklung ein neues Wohngebiet östlich der Ortslage, angrenzend an den rechtskräftigen Bebauungsplan „Vor dem Löh“, auszuweisen. Es handelt sich um Flächen, die sich derzeit im Außenbereich gemäß § 35 BauGB befinden, so dass die notwendigen baurechtlichen Grundlagen über die Aufstellung eines Bebauungsplanes zu schaffen sind.

Entsprechend wurde in der öffentlichen Sitzung des Ortsgemeinderates am 07.09.2022 der Beschluss zur Aufstellung eines Bebauungsplanes „Vor dem Löh II“ nach § 13b BauGB gefasst.

Der Beschluss über die Aufstellung des Bebauungsplanes „Vor dem Löh II“ wird hiermit gemäß § 2 (1) BauGB öffentlich bekannt gemacht. Die Aufstellung des Bebauungsplanes erfolgt entsprechend den Vorschriften des § 13b im beschleunigten Verfahren nach § 13a BauGB in Verbindung mit § 13 (3) Satz 1 BauGB ohne Durchführung einer Umweltprüfung nach § 2 (4) BauGB.

Ungeachtet der gesetzlichen Möglichkeit, im beschleunigten Verfahren gemäß § 13a (2) Nr. 1 i.V.m. § 13 (2) Nr. 1 BauGB von einer frühzeitigen Beteiligung der Öffentlichkeit und der Behörden abzusehen, soll in einem ersten Schritt eine frühzeitige Beteiligung der Öffentlichkeit gemäß § 3 (1) BauGB sowie der Behörden und sonstigen Träger öffentlicher Belange gemäß § 4 (1) BauGB erfolgen, um so eine Abschätzung des zu erwartenden Abwägungsmaterials zu erhalten und dies bereits vor der formellen Auslegung in der Planung oder ggf. als Entscheidungsgrundlage, ob das Verfahren weitergeführt werden soll, zu berücksichtigen.

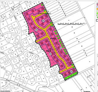
Die Planbereichsgrenzen des räumlichen Geltungsbereiches des Bebauungsplanes „Vor dem Löh II“ sind dem abgebildeten unmaßstäblichen Bebauungsplanentwurf zu entnehmen.

Die bislang vorliegenden Unterlagen zum Bebauungsplan „Vor dem Löh II“ (Planentwurf sowie textliche Erläuterung zum Vorverfahren) liegen gemäß § 3 (1) BauGB in der Zeit vom 10.10.2022 bis einschließlich 11.11.2022 bei der Verbandsgemeindeverwaltung Dierdorf, Neuwieder Str. 7, 56269 Dierdorf, Fachbereich 2, 1. OG, Zimmer 118, während der allgemeinen Dienststunden (Mo. - Mi.: 8:00 - 12:00 und 14:00 - 16:00 Uhr, Do.: 8:00 - 12:00 und 14:00 - 18:00 Uhr, Fr.: 8:00 - 12:30 Uhr) sowie nach gesonderter Terminvereinbarung öffentlich aus.

Darüber hinaus sind der Inhalt dieser Bekanntmachung sowie die Planunterlagen während des Auslegungszeitraums auch auf der Internetseite der Verbandsgemeinde Dierdorf unter www.vg-dierdorf.de im Bereich „Verwaltung“ - „Bauleitplanungen“ - „laufende Verfahren“ - „Vor dem Löh II Kleinmaischeid“ oder unter dem Link vg-dierdorf.de/-BL2022008 einsehbar. Ein Zugriff über das zentrale Landesportal „GeoPortal Rheinland-Pfalz“ (https://www.geoportal.rlp.de) ist ebenfalls möglich.

Falls Sie keinen Zugang zu den Daten erlangen, können die Bebauungsplanunterlagen auch telefonisch (Frau Lied’l, Tel.-Nr.: 02689/291-2105) oder per E-Mail (bettina.liedl@vg-dierdorf.de) in Papierform angefordert werden.

Anregungen zur Planung können im Rahmen der frühzeitigen Beteiligung schriftlich oder zur Niederschrift bis einschließlich vorgebracht werden. An die Unterrichtung und Erörterung schließt sich gemäß § 3 (1) letzter Satz BauGB die im Verfahren vorgeschriebene öffentliche Auslegung gemäß § 3 (2) BauGB auch an, wenn die Erörterung zu einer Änderung der Planung führt. Auf nachfolgende Bekanntmachungen wird in diesem Zusammenhang hingewiesen.

Ortsgemeinde Kleinmaischeid, 27.09.2022  —  Philipp Rasbach
Ortsbürgermeister