Titel Logo
Unsere Verbandsgemeinde Linz am Rhein
Ausgabe 31/2024
Amtliche Bekanntmachungen
Zurück zur vorigen Seite
Zurück zur ersten Seite der aktuellen Ausgabe

Vettelschoß

Bekanntmachung des Satzungsbeschlusses gemäß § 10 Abs. 3 Baugesetzbuch (BauGB)

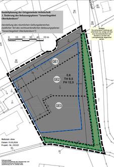
Der Rat der Ortsgemeinde Vettelschoß hat in seiner öffentlichen Sitzung am 22.05.2024 die 2. Änderung des Bebauungsplanes „Gewerbegebiet Oberkalenborn“ gemäß § 10 Abs. 1 BauGB als Satzung beschlossen. Der räumliche Geltungsbereich des Bebauungsplanes ist im nachstehenden Planauszug gestrichelt dargestellt.

Mit dieser Bekanntmachung tritt die 2. Änderung des Bebauungsplanes „Gewerbegebiet Oberkalenborn“ der Ortsgemeinde Vettelschoß gemäß § 10 Abs. 3 BauGB in Kraft.

Die Unterlagen des Bebauungsplanes können vom Tag der Bekanntmachung an bei der Verbandsgemeindeverwaltung Linz am Rhein, Fachbereich 2 - Natürliche Lebensgrundlagen, Hochbau und Bauhöfe -, Am Schoppbüchel 5, 53545 Linz am Rhein während der allgemeinen Dienststunden wochentags von 8.00 - 12.30 Uhr, freitags

von 8.00 - 12.00 Uhr sowie zusätzlich montags und dienstags von 14.00 - 16.00 Uhr und donnerstags von 14.00 - 18.00 Uhr von jedermann eingesehen werden. Über den Inhalt wird auf Verlangen Auskunft erteilt. Darüber hinaus besteht die Möglichkeit, die vollständigen Planunterlagen auf der Homepage der Verbandsgemeinde Linz am Rhein unter

https://www.vg-linz.de/region/bauen-und-wohnen/bauleitplaene

-{{gt}} Ortsgemeinde Vettelschoß -{{gt}} 2. Änderung des Bebauungsplanes „Gewerbegebiet Oberkalenborn“

einzusehen.

Hinweise:

1.

Gemäß § 44 Abs. 5 BauGB wird auf die Vorschriften des § 44 Abs. 3 S. 1 und 2 sowie des § 44 Abs. 4 BauGB hingewiesen. Demnach kann der Entschädigungsberechtigte Entschädigung verlangen, wenn die in den §§ 39 bis 42 bezeichneten Vermögensnachteile eingetreten sind. Er kann die Fälligkeit des Anspruchs dadurch herbeiführen, dass er die Leistung der Entschädigung schriftlich bei dem Entschädigungspflichtigen, der Ortsgemeinde Vettelschoß, beantragt. Darüber hinaus erlischt ein Entschädigungsanspruch, wenn nicht innerhalb von drei Jahren nach Ablauf des Kalenderjahres, in dem die in § 44 Abs. 3 S. 1 bezeichneten Vermögensnachteile eingetreten sind, die Fälligkeit des Anspruchs herbeigeführt wird.

2.

Auf die Voraussetzungen für die Geltendmachung der Verletzung von Verfahrens- und Formvorschriften, von Mängeln der Abwägung sowie die Rechtsfolgen des § 215 Abs. 1 BauGB wird hingewiesen:

Unbeachtlich werden demnach

(1) eine nach § 214 Abs. 1 S. 1 Nr. 1-3 BauGB beachtliche Verletzung der dort bezeichneten Verfahrens- und Formvorschriften,

(2) eine unter Berücksichtigung des § 214 Abs. 2 BauGB beachtliche Verletzung der Vorschriften über das Verhältnis des Bebauungsplanes und des Flächennutzungsplanes und

(3) nach § 214 Abs. 3 S. 2 BauGB beachtliche Mängel des Abwägungsvorgangs, wenn sie nicht innerhalb eines Jahres seit Bekanntmachung der Satzung schriftlich gegenüber der Ortsgemeinde Vettelschoß, unter Darlegung des Verletzung begründenden Sachverhaltes, geltend gemacht worden sind.

3.

Gemäß § 24 Abs. 6 Gemeindeordnung für Rheinland-Pfalz (GemO RLP) vom 31.01.1994, in der derzeit geltenden Fassung, wird darauf hingewiesen, dass Satzungen, die unter Verletzung von Verfahrens- oder Formvorschriften der GemO oder auf Grund der GemO erlassener Vorschriften zustande gekommen sind, ein Jahr nach der Bekanntmachung als von Anfang an gültig zustande gekommen gelten.

Dies gilt nicht, wenn

(1) die Bestimmungen über die Öffentlichkeit der Sitzung, die Genehmigung, die Ausfertigung oder die Bekanntmachung der Satzung verletzt worden sind oder

(2) vor Ablauf der in Satz 1 genannten Frist die Aufsichtsbehörde den Beschluss beanstandet oder jemand die Verletzung der Verfahrens- oder Formvorschriften gegenüber der Gemeindeverwaltung unter Bezeichnung des Sachverhalts, der die Verletzung begründen soll, schriftlich geltend gemacht hat.

Hat jemand eine Verletzung nach vorstehender Nr. 2 geltend gemacht, so kann auch nach Ablauf der Jahresfrist jedermann diese Verletzung geltend machen.

53545 Linz am Rhein, den 25.07.2024 — 
Verbandsgemeindeverwaltung Linz am Rhein — Ortsgemeinde Vettelschoß
Frank Becker  — Norbert Rohringer
Bürgermeister  —  Ortsbürgermeister