Titel Logo
Puderbacher Land aktuell
Ausgabe 20/2025
Aus den Ortsgemeinden
Zurück zur vorigen Seite
Zurück zur ersten Seite der aktuellen Ausgabe

Öffentliche Bekanntmachung

über das Inkrafttreten des Bebauungsplans,,Gewerbegebiet Talstraße - südlich des Holzbachs‘‘ der Ortsgemeinde Raubach

Gemarkung Raubach, Flur 6, Verbandsgemeinde Puderbach, Landkreis Neuwied

Allgemeines:

Der Gemeinderat der Ortsgemeinde Raubach hat in seiner Sitzung am 29.11.2023 beschlossen, den Bebauungsplan „Gewerbegebiet Talstraße - südlich des Holzbachs‘‘ gem. §§ 1, 2 ff. BauGB unter Abschluss eines städtebaulichen Vertrages aufzustellen.

Die Aufstellung des Bebauungsplanes dient unter anderem dazu, die beiden Obergeschosse des seit über einem Jahr leerstehenden Bürogebäudes in der Talstraße 2 als Wohnungen nutzen zu können. Diese sollen entweder im Sinne von Betriebswohnungen von Beschäftigten oder auch vom Betrieb losgelöst genutzt werden können. Gleiches gilt auch für die vorhandene Betriebswohnung im Untergeschoss. Aktuell ist die Nutzungsänderung des zuvor als Büro genutzten Gebäudes nicht möglich, da sich dieses im Außenbereich befindet. Daneben sollten auch die übrigen Gewerbeflächen überplant werden, um zu regeln, wie und in welchem Maß diese baulich genutzt werden können.

In seiner Sitzung am 27.03.2025 hat der Gemeinderat der Ortsgemeinde Raubach die Annahme des Bebauungsplanes „Gewerbegebiet Talstraße - südlich des Holzbachs“ als Satzung mit all ihren Bestandteilen gemäß § 10 Abs. 1 BauGB beschlossen.

Der Ortsbürgermeister der Ortsgemeinde Raubach hat die beschlossene Satzung, die Bebauungsplanurkunde mit den textlichen Festsetzungen und der Begründung am 08.04.2025 ausgefertigt.

Gemäß § 10 Abs. 3 BauGB wird der Satzungsbeschluss hiermit ortsüblich bekannt gemacht. Mit dieser Bekanntmachung tritt der Bebauungsplan,,Gewerbegebiet Talstraße - südlich des Holzbachs‘‘ gemäß § 10 Abs. 3 S. 4 BauGB in Kraft.

Geltungsbereich:

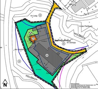
Das Plangebiet liegt südlich der Ortsgemeinde Raubach und ist von der Ortslage durch den Holzbach getrennt. Es befindet sich in der Flur 6, Gemarkung Raubach. Es schließt sich im Osten an den Teil der Talstraße an, der südlich des Holzbaches gelegen ist. Im Süden, Westen und Norden schließen sich überwiegend Waldflächen an dieses an. Eine externe Ausgleichsfläche befindet sich auf dem Flurstück 77/2, Flur 2, Gemarkung Raubach (teilweise). Die Grenzen des räumlichen Geltungsbereichs des Bebauungsplanes werden in der verbindlichen Planzeichnung durch eine unterbrochene, schwarze Linie festgelegt.

Zur Verdeutlichung des Geltungsbereichs des Bebauungsplanes ist das Plangebiet in der Anlage 1 zu dieser öffentlichen Bekanntmachung unmaßstäblich durch eine unterbrochene schwarze Linie dargestellt bzw. schwarz eingekreist.

Bestandteile:

Bestandteile der Satzung sind die Bebauungsplanurkunde und die textlichen Festsetzungen. Dem Bebauungsplan sind gemäß § 9 Abs. 8 BauGB eine Begründung mit Umweltbericht nach § 2a BauGB als gesonderten Bestandteil der Begründung, sowie eine zusammenfassende Erklärung gemäß § 10a BauGB beigefügt. Ferner liegen als Anlagen zur Begründung die artenschutzrechtliche Vorprüfung vom Büro für Landschaftsökologie, Dr. Claus Mückschel, vom 28.04.2024 sowie das schalltechnische Prognosegutachten von Graner + Partner Ingenieure, vom 24.05.2024 bei.

Inkrafttreten:

Der Bebauungsplan „Gewerbegebiet Talstraße - südlich des Holzbachs“ tritt gemäß § 10 Abs. 3 Satz 4 BauGB mit dieser ortsüblichen Bekanntmachung in Kraft.

Einsichtnahme:

Die Satzung mit der Bebauungsplanurkunde, den Textfestsetzungen, der Begründung mit ihren Anlagen und dem Umweltbericht sowie der zusammenfassenden Erklärung wird vom Tage der Bekanntmachung an bei der Verbandsgemeindeverwaltung Puderbach, Fachbereich 3 (Natürliche Lebensgrundlagen und Bauen), Hauptstraße 13, 56305 Puderbach, während der allgemeinen Öffnungszeiten zur Einsicht und Auskunft bereitgehalten.

Öffnungszeiten:

Montag bis Freitag

08.00 Uhr -12.00 Uhr

Montag bis Mittwoch

14.00 Uhr - 16.00 Uhr

Donnerstag

14.00 Uhr - 17.30 Uhr

Ebenfalls werden die nachfolgend genannten, für die Einhaltung der textlichen Festsetzungen des Bebauungsplanes maßgeblichen DIN-Vorschriften und Richtlinien am vorbezeichneten Ort zur Einsicht und Auskunft bereitgehalten:

-

DIN 4109-1: Schallschutz im Hochbau - Teil 1: Mindestanforderungen, Januar 2018

-

DIN 4109-2: Schallschutz im Hochbau - Teil 2: Rechnerische Nachweise der Erfüllung der Anforderungen, Januar 2018

-

DIN 18005: Schallschutz im Städtebau, Grundlagen und Hinweise für die Planung, Juli 2023

-

DIN 18005, Beiblatt 1: Schallschutz im Städtebau, Schalltechnische Orientierungswerte für die städtebauliche Planung, Juli 2023

-

DIN 45691: Geräuschkontingentierung, Dezember 2006

-

DIN 45641: Mittelung von Schallpegeln, Juni 1990

-

DIN 1320: Akustik - Begriffe, Dezember 2009

-

RLS 19: Richtlinie für den Lärmschutz an Straßen, Ausgabe 2019

-

TA Lärm (1998): 6. Allgemeine Verwaltungsvorschrift zum Bundesimmissionsschutzgesetz, Technische Anleitung zum Schutz gegen Lärm - Bundesministerium für Umwelt, Naturschutz und Reaktorsicherheit, 26.08.1998, geändert am 01.06.2017

-

Schall 03 (2014): Anlage 2 zu § 4 der 16. Verordnung zur Durchführung des Bundesimmissionsschutzgesetzes: Berechnung des Beurteilungspegels für Schienenwege (Schall 03), 2014

Es wird darauf hingewiesen, dass der in Kraft getretene Bebauungsplan mit der Begründung und der zusammenfassenden Erklärung auch in das Internet unter

https://www.puderbach.de/rathaus-und-gemeinden/dienstleistungen-behoerden/bauleitplanung/

eingestellt werden und über das GeoPortal Rheinland-Pfalz als zentrales Internetportal des Landes (http://www.geoportal.rlp.de) zugänglich gemacht werden wird.

Hinweise:

I.

Auf die Vorschriften des § 44 Abs. 3 Sätze 1 und 2 sowie Abs. 4 BauGB über die Entschädigung von durch Festsetzungen des Bebauungsplanes oder seiner Durchführung entstandener Vermögensnachteilen sowie über die Fälligkeit und das Erlöschen entsprechender Entschädigungsansprüche wird hingewiesen.

Gem. § 44 Abs. 4 BauGB erlischt ein Entschädigungsanspruch, wenn nicht innerhalb von 3 Jahren nach Ablauf des Kalenderjahres, in dem die in § 44 Abs. 3 Satz 1 BauGB bezeichneten Vermögensnachteile eingetreten sind, die Fälligkeit des Anspruchs herbeigeführt wird.

II.

Auf die Vorschriften zur Beachtlichkeit der Verletzung von Vorschriften über die Aufstellung dieses Bebauungsplans gemäß § 214 BauGB wird wie folgt gemäß § 215 Abs. 2 i.V.m. § 233 Abs. 2 Satz 1 BauGB hingewiesen:

Nach § 215 Abs. 1 BauGB werden

1. eine nach § 214 Abs. 1 Satz 1 Nr. 1 bis 3 BauGB beachtliche Verletzung der dort bezeichneten Verfahrens- und Formvorschriften,

2. eine unter Berücksichtigung des § 214 Abs. 2 BauGB beachtliche Verletzung der Vorschriften über das Verhältnis des Bebauungsplans und des Flächennutzungsplanes und

3. nach § 214 Abs. 3 Satz 2 BauGB beachtliche Mängel des Abwägungsvorganges

unbeachtlich, wenn sie nicht innerhalb eines Jahres seit Bekanntmachung der Satzung schriftlich gegenüber der Ortsgemeinde Raubach unter Darlegung des die Verletzung begründenden Sachverhalts geltend gemacht worden sind. Satz 1 gilt entsprechend, wenn Fehler nach § 214 Abs. 2a BauGB beachtlich sind.

III.

Gemäß § 24 Abs. 6 der Gemeindeordnung für Rheinland-Pfalz (GemO) wird darauf hingewiesen, dass Satzungen, die unter Verletzung von Verfahrens- oder Formvorschriften der Gemeindeordnung oder aufgrund der Gemeindeordnung zustande gekommen sind, ein Jahr nach der Bekanntmachung als von Anfang an gültig zustande gekommen gelten.

Dies gilt nicht, wenn

1. die Bestimmungen über die Öffentlichkeit der Sitzung, die Genehmigung, die Ausfertigung oder die Bekanntmachung der Satzung verletzt worden sind, oder

2. vor Ablauf der genannten Frist die Aufsichtsbehörde den Beschluss beanstandet oder jemand die Verletzung der Verfahrens- oder Formvorschriften gegenüber der Verbandsgemeindeverwaltung Puderbach, Hauptstraße 13, 56305 Puderbach, unter Bezeichnung des Sachverhaltes, der die Verletzung begründen soll, schriftlich geltend gemacht hat.

Hat jemand eine Verletzung nach § 24 Abs. 6 Satz 2 Nr. 2 GemO geltend gemacht, so kann auch nach Ablauf der genannten Frist jedermann diese Verletzung geltend machen.

Verbandsgemeindeverwaltung Puderbach, den 07.05.2025
Volker Mendel, Bürgermeister

Anlage 1:

Plangebiet:

Externe Ausgleichsfläche:

Übersichtsplan: