Titel Logo
Puderbacher Land aktuell
Ausgabe 30/2025
Aus den Ortsgemeinden
Zurück zur vorigen Seite
Zurück zur ersten Seite der aktuellen Ausgabe

Öffentliche Bekanntmachung nach § 3 I BauGB

Bebauungsplan,,Sondergebiet Photovoltaik-Freiflächenanlage Breibach - Auf der Rotbitz‘‘ der Ortsgemeinde Niederwambach

Bekanntmachung des Aufstellungsbeschlusses gem. §§ 1, 2 ff. BauGB

sowie

des Beschlusses über die Durchführung der frühzeitigen Beteiligung

der Öffentlichkeit gemäß § 3 Abs. 1 BauGB

vom 28.07.2025 bis einschließlich 05.09.2025

Der Gemeinderat der Ortsgemeinde Niederwambach hat am 13.03.2024 beschlossen, den Bebauungsplan ,,Sondergebiet Photovoltaik-Freiflächenanlage Breibach - Auf der Rotbitz‘‘ im Regelverfahren gem. §§ 1, 2, ff. BauGB aufzustellen. Ziel des Bebauungsplanes ist es, die planungsrechtlichen Zulässigkeitsvoraussetzungen für die Errichtung einer Photovoltaik - Freiflächenanlage mit Batteriegroßspeicher auf dem gemeindeeigenen Flurstück 10/6, Flur 31, Gemarkung Niederwambach zu schaffen. Die Aufstellung des Bebauungsplanes erfolgt unter Abschluss eines städtebaulichen Vertrages zwischen der Ortsgemeinde und dem Projektträger der Photovoltaik-Freiflächenanlage.

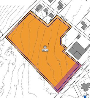
Das Plangebiet umfasst nach derzeitigem Planstand die Parzelle 10/6, Flur 31, Gemarkung Niederwambach und ist im Ortsteil Breibach (Gebiet um die Straße,,Auf der Rotbitz“) gelegen. Nordöstlich des Plangebietes schließt sich die mit drei Wohngebäuden und einem Gewerbebetrieb bebaute Straße,,Auf der Rotbitz‘‘ sowie südwestlich Waldflächen an dieses an.

Der Geltungsbereich des Bebauungsplanes ist in der Anlage unmaßstäblich durch eine schwarze, gestrichelte Linie bzw. auf der Übersichtskarte durch eine rote Markierung gekennzeichnet.

Im Flächennutzungsplan der Verbandsgemeinde Puderbach ist das Plangebiet teilweise als gewerbliche Baufläche, teilweise als landwirtschaftliche Fläche dargestellt.

Ferner hat der Gemeinderat der Ortsgemeinde Niederwambach am 17.06.2025 den vorgelegten Planentwurf des Bebauungsplanes gebilligt und die Einleitung der frühzeitigen Beteiligung der Öffentlichkeit nach § 3 Absatz 1 BauGB und der Behörden und sonstigen Träger öffentlicher Belange nach § 4 Absatz 1 BauGB beschlossen.

Die frühzeitige Beteiligung der Öffentlichkeit gemäß § 3 Abs. 1 BauGB findet in der Zeit vom 28.07.2025 bis einschließlich 05.09.2025 statt.

Um die Öffentlichkeit über die Planung öffentlich zu unterrichten, kann in dieser Zeit der Entwurf des Bebauungsplans mit seiner Planzeichnung, den textlichen Festsetzungen, der Begründung und dem Umweltbericht bei der Verbandsgemeindeverwaltung Puderbach, Fachbereich 3 (Natürliche Lebensgrundlagen und Bauen), Hauptstraße 13, 56305 Puderbach, Zimmer 113, während der allgemeinen Öffnungszeiten

Montag-Freitag

08.00 Uhr bis 12.00 Uhr

Montag-Mittwoch

14.00 Uhr bis 16.00 Uhr

Donnerstag

14.00 Uhr bis 17.30 Uhr

von jedermann eingesehen werden.

Darüber hinaus können die Entwürfe der Planunterlagen während der Beteiligungsfrist auf der Internetseite der Verbandsgemeinde Puderbach unter folgender Internetadresse eingesehen werden:

www.puderbach.de

Wählen Sie auf der Startseite im Auswahlfeld „Direkt zu“ den Button „Bauleitplanung“. Anschließend können sie auf der rechten Seite der Homepage unter der Rubrik „Laufende Bauleitplanverfahren“ die Planunterlagen im PDF-Format downloaden.

Während des frühzeitigen Beteiligungsverfahrens besteht für die Öffentlichkeit die Gelegenheit, sich zur Planung zu äußern und diese zu erörtern. Anregungen und Stellungnahmen zu der Planung können während der Beteiligungsfrist bei der Verbandsgemeindeverwaltung Puderbach abgegeben werden. Nicht fristgerecht abgegebene Stellungnahmen können bei der Beschlussfassung über den Bebauungsplan unberücksichtigt bleiben.

Verbandsgemeindeverwaltung Puderbach, den 15.07.2025
Volker Mendel, Bürgermeister

Anlage:

Plangebiet