Titel Logo
Puderbach aktuell
Ausgabe 42/2022
Aus den Ortsgemeinden
Zurück zur vorigen Seite
Zurück zur ersten Seite der aktuellen Ausgabe

Öffentliche Bekanntmachung des Bebauungsplans,,Ortskern - Kreuzung L 265 / L 267‘‘

Gemarkung Puderbach, Teilbereiche der Flure 3, 5 und 7, Verbandsgemeinde Puderbach, Landkreis Neuwied

Allgemeines:

Der Gemeinderat der Ortsgemeinde Puderbach hat am 23.02.2000 gemäß § 2 Abs. 1 Baugesetzbuch (BauGB) beschlossen, den Bebauungsplan „Ortskern - Kreuzung L 265 / L 267“ aufzustellen. Das Verfahren dient dabei der Umgestaltung der Kreuzung L 265 (Mittelstraße bzw. Steimeler Straße) und der L 267 (Hauptstraße).

Nach mehrfachen Änderungen der Planung und insgesamt fünf Beteiligungsverfahren wurde der Bebauungsplan am 07.09.2011 gemäß § 10 Abs. 1 BauGB als Satzung beschlossen und am 19.04.2012 durch öffentliche Bekanntmachung in Kraft gesetzt.

Aufgrund eines formellen Fehlers hat das Oberverwaltungsgericht Rheinland-Pfalz den Bebauungsplan mit Normenkontrollurteil vom 31.10.2013 für unwirksam erklärt. Unter dem 13.07.2016 beschloss der Ortsgemeinderat, diesen Fehler gem. § 214 Abs. 4 BauGB in einem ergänzenden Verfahren zu heilen und eine sechste Beteiligung der Öffentlichkeit sowie der Behörden und Träger öffentlicher Belange durchzuführen, die vom 10.10.2016 bis einschließlich 14.11.2016 stattfand.

Im Anschluss an diese sechste Beteiligung hat sich ein neuer städtebaulicher Umstand ergeben: Die Ortsgemeinde war aufgrund einer Einigung mit den Eigentümern des Bereichs der ehemaligen Mühle in der Lage, das gesamte Areal mit finanzieller Unterstützung des Landes für die Kreuzungsneugestaltung zu erwerben. Dieser Umstand ermöglicht die technische Realisierung eines Kreisverkehrsplatzes, der bisher nicht Gegenstand der Planung war. Die Kreisverkehrslösung soll zu einer nachhaltigen Verbesserung der Verkehrssituation im Kreuzungsbereich beitragen.

Vor diesem Hintergrund wurde der Bebauungsplan nochmals angepasst und seitens des Ortsgemeinderates in seiner Sitzung am 25.10.2021 beschlossen, eine erneute, nunmehr siebte Beteiligung der Öffentlichkeit und der Behörden und sonstigen Träger öffentlicher Belange durchzuführen, die in der Zeit vom 21.02.2022 bis einschließlich 31.03.2022 stattfand.

Im Anschluss daran hat der Gemeinderat der Ortsgemeinde Puderbach am 04.07.2022 den Abwägungsbeschluss über die im Rahmen der siebten Offenlage nach §§ 4 a Abs. 3 i. V. m. 3 Abs. 2, 4 Abs. 2 BauGB eingegangenen Stellungnahmen gefasst und die Annahme des Bebauungsplanes als Satzung gem. § 10 Abs. 1 BauGB beschlossen.

Der Bebauungsplan ist noch nicht aus dem Flächennutzungsplan der Verbandsgemeinde Puderbach entwickelt. Gem. § 10 Abs. 2 BauGB i. V. m. § 8 Abs. 3 Satz 2 BauGB ist der Bebauungsplan daher der Kreisverwaltung Neuwied als höhere Verwaltungsbehörde zur Genehmigung vorzulegen. Die Kreisverwaltung genehmigte den Bebauungsplan mit Verfügung vom 06.09.2022.

Der Ortsbürgermeister der Ortsgemeinde Puderbach hat die beschlossene Satzung, die Bebauungsplanurkunde mit den Textfestsetzungen und der Begründung am 30.09.2022 ausgefertigt.

Geltungsbereich:

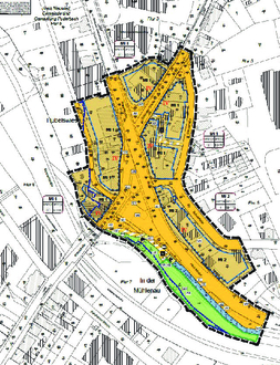
Das Plangebiet liegt im Zentrum der Ortsgemeinde Puderbach. Das Plangebiet umfasst die Kreuzung der L 265 (Mittelstraße bzw. Steimeler Straße) mit der L 267 (Hauptstraße), einschließlich der im Kreuzungsbereich liegenden Grundstücksflächen zwischen dem Holzbach im Südwesten und der Schulstraße im Nordosten. Der räumliche Geltungsbereich des Bebauungsplanes umfasst eine Vielzahl an Grundstücke in der Gemarkung Puderbach, in Teilbereichen der Flure 3, 5 und 7. Das Plangebiet ist in beigefügtem Übersichtsplan unmaßstäblich durch eine hervorgehobene, gestrichelte Linie dargestellt.

Der Geltungsbereich des Bebauungsplanes „Ortskern - Kreuzung L 265 / L 267“ umfasst eine Größe von ca. 2,4 ha. Die betroffenen Flächen befinden sich teilweise im Privatbesitz. Als externe Kompensationsflächen sind die Parzellen 392/5 und 387/10, Flur 6, Gemarkung Puderbach, festgesetzt.

Bestandteile:

Bestandteile der Satzung sind die Bebauungsplanurkunde und die textlichen Festsetzungen. Dem Bebauungsplan sind gemäß § 9 Abs. 8 BauGB eine Begründung mit Umweltbericht als gesonderten Bestandteil der Begründung, sowie eine zusammenfassende Erklärung gemäß § 10a BauGB beigefügt.

Inkrafttreten:

Der Bebauungsplan „Ortskern - Kreuzung L 265 / L 267“ tritt gemäß § 10 Abs. 3 Satz 4 BauGB mit der ortsüblichen Bekanntmachung in Kraft.

Einsichtnahme:

Die Bebauungsplanurkunde mit der Satzung, den Textfestsetzungen, der Begründung mit Umweltbericht und der zusammenfassenden Erklärung wird vom Tage der Bekanntmachung an bei der Verbandsgemeindeverwaltung Puderbach, Fachbereich 3 (Natürliche Lebensgrundlagen und Bauen), Zimmer 115, Hauptstraße 13, 56305 Puderbach, während der allgemeinen Öffnungszeiten (aktuelle Öffnungszeiten siehe unten) zur Einsicht und Auskunft bereit gehalten.

Ebenfalls werden die nachfolgend genannten, für die Einhaltung der Festsetzungen des Bebauungsplanes maßgeblichen DIN-Vorschriften und Richtlinien am vorbezeichneten Ort zur Einsicht und Auskunft bereitgehalten:

Zu Textfestsetzung Nr. 5:,,Maßnahmen zum Schutz, zur Pflege und zur Entwicklung von Boden, Natur und Landschaft‘‘:

- DIN 18920 „Vegetationstechnik im Landschaftsbau - Schutz von Bäumen, Pflanzenbeständen und Vegetationsflächen bei Baumaßnahmen‘‘ aus Juli 2014

- DIN 18915 „Vegetationstechnik im Landschaftsbau - Bodenarbeiten‘‘ aus Juni 2018

- RAS-LP 4 „Richtlinie für die Anlage von Straßen - Teil Landschaftspflege - Abschnitt 4: Schutz von Bäumen, Vegetationsbeständen und Tieren bei Baumaßnahmen‘‘ aus 1999

Zu Textfestsetzung Nr. 6:,,Festsetzung von Vorkehrungen zum Lärmimmissionsschutz‘‘

- DIN 4109-1 “Schallschutz im Hochbau - Teil 1: Mindestanforderungen‘‘ aus Januar 2018,

- DIN 4109-2 „Schallschutz im Hochbau - Teil 2: Rechnerische Nachweise der Erfüllung der Anforderungen‘‘ aus Januar 2018

Öffnungszeiten:

Montag bis Freitag 08.00 Uhr -12.00 Uhr

Montag bis Mittwoch 14.00 Uhr - 16.00 Uhr

Donnerstag 14.00 Uhr - 17.30 Uhr

Hinweise:

I.

Auf die Vorschriften des § 44 Abs. 3 Satz 1 und 2 sowie Abs. 4 BauGB über die fristgerechte Geltendmachung etwaiger Entschädigungsansprüche für Eingriffe in eine bisher zulässige Nutzung durch diesen Bebauungsplan und das Erlöschen von Entschädigungsansprüchen wird hingewiesen.

Ein Entschädigungsanspruch erlischt, wenn nicht innerhalb von 3 Jahren nach Ablauf des Kalenderjahres, in dem die in § 44 Abs. 3 Satz 1 BauGB bezeichneten Vermögensnachteile eingetreten sind, die Fälligkeit des Anspruchs herbeigeführt wird.

II.

Auf die Vorschriften zur Beachtlichkeit der Verletzung von Vorschriften über die Aufstellung dieses Bebauungsplans gemäß § 214 BauGB wird wie folgt gemäß § 215 Abs. 2 i.V.m. § 233 Abs. 2 Satz 1 BauGB hingewiesen:

Nach § 215 Abs. 1 BauGB sind

1. eine nach § 214 Abs. 1 Satz 1 Nr. 1 bis 3 beachtliche Verletzung der dort bezeichneten Verfahrens- und Formvorschriften,

2. eine unter Berücksichtigung des § 214 Abs. 2 beachtliche Verletzung der Vorschriften über das Verhältnis des Bebauungsplans und des Flächennutzungsplanes und

3. nach § 214 Abs.3 Satz 2 beachtliche Mängel des Abwägungsvorganges

dann unbeachtlich, wenn sie nicht innerhalb eines Jahres seit Bekanntmachung der Satzung schriftlich gegenüber der Ortsgemeinde Puderbach unter Darlegung des die Verletzung begründenden Sachverhalts geltend gemacht worden sind. Satz 1 gilt entsprechend, wenn Fehler nach § 214 Abs. 2 a beachtlich sind.

III.

Gemäß § 24 Abs. 6 der Gemeindeordnung für Rheinland-Pfalz (GemO) wird darauf hingewiesen, dass Bebauungspläne, die unter Verletzung von Verfahrens- oder Formvorschriften der Gemeindeordnung oder auf Grund der Gemeindeordnung zustande gekommen sind, ein Jahr nach der Bekanntmachung als von Anfang an gültig zustande gekommen gelten.

Dies gilt nicht, wenn

1. die Bestimmungen über die Öffentlichkeit der Sitzung, die Genehmigung, die Ausfertigung oder die Bekanntmachung des Bebauungsplanes verletzt worden sind, oder

2. vor Ablauf der genannten Frist die Aufsichtsbehörde den Beschluss beanstandet oder jemand die Verletzung der Verfahrens- oder Formvorschriften gegenüber der Ortsgemeinde Puderbach, oder der Verbandsgemeindeverwaltung Puderbach, Hauptstraße 13, 56305 Puderbach, unter Bezeichnung des Sachverhaltes, der die Verletzung begründen soll, schriftlich geltend gemacht hat.

Hat jemand eine Verletzung nach Satz 2 Nr. 2 geltend gemacht, so kann auch nach Ablauf der genannten Frist jedermann diese Verletzung geltend machen.

Puderbach, den 13.10.2022  —  Volker Mendel
Bürgermeister

Übersichtsplan:

Externe Kompensationsfläche: